瀬戸内市牛窓町牛窓の中古戸建
NEW 12.05掲載情報更新日:2025年12月05日 次回更新予定日:2025年12月19日
- 1,460万円
-
- 借入ご希望金額
万円 - 借入期間
年 - 借入金利
% - 月々のお支払い金額
円
- 借入ご希望金額
※ 月々のお支払例は目安の試算となりますので、実際の金額とは異なる場合がございます。詳しくは店舗までお問合わせください。
- 瀬戸内市牛窓町牛窓
-
JR赤穂線『邑久』 車17分(約9.9km)
瀬戸内市牛窓町牛窓一戸建て | 物件情報
夏は海水浴、春秋は散歩…季節を五感で楽しめる暮らしを。海沿いながらも高台で安心感のある立地です。
住まい全体をフルリノベーションし、細部まで新しく美しく仕上げました。水まわり設備もほぼ新品で、安心して長く住めるクオリティ。トレンドを取り入れつつも、長く愛される落ち着いたデザインです。
海のすぐ近くに位置する特別な一邸。暮らしに癒しを求める方にも、アクティブに過ごしたい方にもおすすめの“海が身近にある暮らし”を実現できる住まいです。
物件の設備
- 電気
- 公営水道
- 公共下水
- プロパンガス
- 個別プロパン
- 給湯
- コンロ三口
- システムキッチン
- バス
- 追焚機能
- トイレ2箇所
- 温水洗浄便座
- 室内洗濯機置場
- 洗髪洗面化粧台
- 火災警報器/報知機
- LDK20畳以上
- 和室8畳以上
- 網戸
- クローゼット3箇所
- 床下収納
- 屋根裏収納
- シューズボックス
- 庭
- 縁側
物件の特徴
- 南向
- 海に近い
- 周辺交通量少なめ
- 2階建
- 即入居可
物件詳細情報
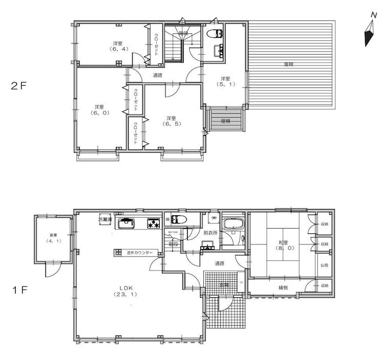
| 価格 | 1,460万円 | 間取り | 5LDK |
|---|---|---|---|
| 物件種別 | 中古一戸建て | ||
| 所在地 | 岡山県瀬戸内市牛窓町牛窓 | ||
| アクセス |
|
||
| 建物面積 | 139.95㎡ | 駐車場 | あり 普通:3台 |
| 築年月 | 1988年(昭和63年)03月築 | ||
| 建物構造 | 軽量鉄骨 セメント瓦・亜鉛メッキ鋼板葺 2階建 | 工法 | |
| 主要採光 | 南向 | バルコニー | |
| 保証・評価 | |||
| リフォーム | |||
| 土地面積 | 公232.09㎡(70.20坪) | 接道 | 南西側(公道)幅 約4.0m 間口 約4.00m |
| 私道 | セットバック | ||
| 地目 | 宅地 | 地勢 | |
| 権利 | 所有権 |
||
| 都市計画 | 区域外 |
用途地域 | 指定無 |
| 建ぺい/容積率 | 60% / 200% | 土地国土法 | |
| 許可番号 | 建築基準法 | ||
| 法令制限 | |||
| 小学区 | 牛窓東小学校 徒歩13分 (約1000m) | 中学区 | 牛窓中学校 徒歩9分 (約680m) |
| 現況 | 空 | 引渡 | 即 |
| その他費用 | |||
| 周辺環境 | ゴダイドラッグ牛窓店 徒歩5分 (約390m) 瀬戸内立牛窓中学校 徒歩9分 (約680m) 瀬戸内警察署 徒歩14分 (約1120m) 牛窓郵便局 徒歩10分 (約750m) 瀬戸内市立牛窓東小学校 徒歩13分 (約1000m) 瀬戸内市邑久スポーツ公園 徒歩100分 (約7980m) 長田病院 徒歩139分 (約11080m) ハローズ 邑久店 徒歩108分 (約8570m) ローソン 岡山邑久町店 徒歩108分 (約8570m) 西松屋 瀬戸内邑久店 徒歩113分 (約9000m) |
||
| 備考 | ◆リフォーム(2025年11月) 内装:全室クロス張替え、床、畳、障子、襖 外部;玄関ドア塗装、物置塗装、波板交換 水回り:システムキッチン、浴室、トイレ、洗面化粧台 その他:クローゼット新設、スイッチ類交換、火災報知器、網戸張替え、ハウスクリーニング、給湯器交換 他 |
||
| 物件番号 | 4515223 | 取引態様 | 一般 |
取扱店舗情報
ハウスドゥ 岡山西大寺松崎 日笠REC株式会社 店舗詳細ページへ
| 電話番号 | 086-230-1702 |
|---|---|
| 所在地 | 〒704-8183 岡山県岡山市東区西大寺松崎162-5 |
| 営業時間 | 10:00~18:00 |
| 定休日 | 水曜日、年末年始 |
| 宅建免許番号 | 岡山県知事(1)第6175号 |
| アクセス | 店舗への地図はこちら |

来店ご予約
- 岡山県
マイページ物件数 - 4,469件
最近見た物件
-
-

-
- 中古マンション
- 2,480万円
-
大阪市平野区平野南1丁目
-
大阪市谷町線平野
-
-
-

-
- 中古一戸建て
- 1,850万円
-
姫路市飯田3丁目
-
山陽電鉄本線亀山
-
-
-

-
- 中古一戸建て
- 3,180万円
-
松戸市新松戸南3丁目
-
JR千代田・常磐緩行線新松戸
-
岡山県中古一戸建て新着物件
- お近くの店舗を探す
-
おすすめ物件
-
-

-
- 中古一戸建て
- 1,099万円
-
津山市中村
-
JR因美線高野
-
-
-

-
- 中古一戸建て
- 3,050万円
-
倉敷市二日市
-
JR山陽本線倉敷
-
-
-

-
- 中古一戸建て
- 4,090万円
-
総社市門田
-
JR伯備線総社
-
-
-

-
- 中古一戸建て
- 700万円
-
赤磐市河田原
-
JR山陽本線熊山
-
-
-

-
- 中古一戸建て
- 1,980万円
-
倉敷市児島通生
-
JR本四備讃線児島
-
-
-

-
- 中古一戸建て
- 2,850万円
-
倉敷市広江7丁目
-
JR本四備讃線木見
-
-
-

-
- 中古一戸建て
- 2,000万円
-
岡山市中区湊
-
岡山電軌東山本線東山岡電ミュージアム
-
-
-

-
- 中古一戸建て
- 450万円
-
倉敷市児島柳田町
-
JR本四備讃線上の町
-
-
-

-
- 中古一戸建て
- 2,800万円
-
岡山市北区今保
-
JR山陽本線北長瀬
-
-
-

-
- 中古一戸建て
- 2,620万円
-
岡山市北区中撫川
-
JR山陽本線庭瀬
-





















