鎌ケ谷市中央2丁目の中古戸建
掲載情報更新日:2026年01月16日 次回更新予定日:2026年01月30日
- 3,880万円
-
- 借入ご希望金額
万円 - 借入期間
年 - 借入金利
% - 月々のお支払い金額
円
- 借入ご希望金額
※ 月々のお支払例は目安の試算となりますので、実際の金額とは異なる場合がございます。詳しくは店舗までお問合わせください。
- 鎌ケ谷市中央2丁目
-
東武野田線『新鎌ヶ谷』 徒歩14分 (約1110m)
鎌ケ谷市中央2丁目一戸建て | 物件情報
☆HouseDo薬園台駅前のアピールポイント☆
戸建て・マンション・土地など どんな物件でもご紹介可能!
ローンに不安がある方も安心、資金計画から丁寧にサポートさせて頂きます!
外国籍のお客様もご相談ください、安心してお取引いただけます。
地域密着ならではの最新情報と豊富な実績で、理想のお住まい探しをお手伝いします!
☆HouseDo薬園台駅前の営業内容☆
新築戸建・中古戸建・中古マンションの売買仲介
不動産の買取・査定・資産活用のご相談
住宅ローン相談・リフォーム提案
物件の設備
- 電気
- 公営水道
- 公共下水
- 給湯
- コンロ三口
- システムキッチン
- バス
- 追焚機能
- トイレ2箇所
- 室内洗濯機置場
- 洗面所独立
- 2面バルコニー
物件の特徴
- 2階建
物件詳細情報
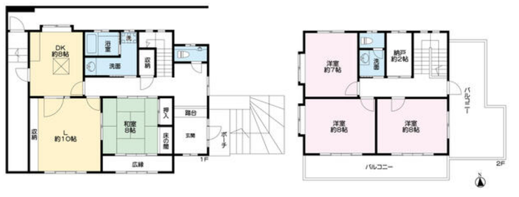
| 価格 | 3,880万円 | 間取り | 4LDK+S |
|---|---|---|---|
| 物件種別 | 中古一戸建て | ||
| 所在地 | 千葉県鎌ケ谷市中央2丁目 | ||
| アクセス |
|
||
| 建物面積 | 公162.78㎡ | 駐車場 | あり |
| 築年月 | 1983年(昭和58年)10月築 | ||
| 建物構造 | RC 2階建 | 工法 | |
| 主要採光 | 南向 | バルコニー | |
| 保証・評価 | |||
| リフォーム | |||
| 土地面積 | 公241.13㎡(72.94坪) | 接道 | |
| 私道 | セットバック | ||
| 地目 | 宅地 | 地勢 | |
| 権利 | 所有権 |
||
| 都市計画 | 市街化区域 |
用途地域 | 1種低層 |
| 建ぺい/容積率 | 50% / 100% | 土地国土法 | |
| 許可番号 | 建築基準法 | ||
| 法令制限 | |||
| 小学区 | 鎌ケ谷小学校 徒歩5分 (約380m) | 中学区 | 鎌ケ谷中学校 徒歩18分 (約1430m) |
| 現況 | 空 | 引渡 | 相談 |
| その他費用 | |||
| 周辺環境 | 鎌ケ谷市立鎌ケ谷小学校 徒歩5分 (約380m) 初富駅 徒歩8分 (約610m) 鎌ケ谷市立鎌ケ谷中学校 徒歩18分 (約1430m) |
||
| 備考 | |||
| 物件番号 | 4515394 | 取引態様 | 媒介 |
取扱店舗情報
ハウスドゥ 薬園台駅前 合同会社ネクステージ 店舗詳細ページへ
| 電話番号 | 047-401-0440 |
|---|---|
| 所在地 | 〒274-0077 千葉県船橋市薬円台6丁目5-1 |
| 営業時間 | 10:00~18:00 |
| 定休日 | 火曜日、水曜日 |
| 宅建免許番号 | 千葉県知事(1)第18892号 |
| アクセス | 店舗への地図はこちら |

来店ご予約
- 千葉県
マイページ物件数 - 2,812件
最近見た物件
-
-

-
- 新築一戸建て
- 6,690万円
-
葛飾区柴又7丁目
-
京成金町線柴又
-
-
-

-
- 中古マンション
- 990万円
-
大阪市住之江区南港中4丁目
-
南港ポートタウン線(ニュートラム)ポートタウン東
-
千葉県中古一戸建て新着物件
-
-

-
- 中古一戸建て
- 2,599万円
-
松戸市古ケ崎3丁目
-
JR千代田・常磐緩行線北松戸駅
-
-
-

-
- 中古一戸建て
- 4,680万円
-
松戸市六高台7丁目
-
京成電鉄松戸線元山駅
-
-
-

-
- 中古一戸建て
- 1,680万円
-
鎌ケ谷市東道野辺3丁目
-
東武野田線鎌ヶ谷駅
-
-
-

-
- 中古一戸建て
- 8,980万円
-
流山市大字東深井
-
東武野田線運河駅
-
-
-

-
- 中古一戸建て
- 2,680万円
-
柏市高柳
-
東武野田線高柳駅
-
-
-

-
- 中古一戸建て
- 2,099万円
-
松戸市日暮8丁目
-
JR武蔵野線新八柱駅
-
-
-

-
- 中古一戸建て
- 2,350万円
-
八千代市八千代台北17丁目
-
京成本線京成大和田駅
-
- お近くの店舗を探す
-
おすすめ物件
-
-

-
- 中古一戸建て
- 2,380万円
-
成田市玉造2丁目
-
JR成田線成田
-
-
-

-
- 中古一戸建て
- 780万円
-
松戸市平賀
-
JR千代田・常磐緩行線北小金
-
-
-

-
- 中古一戸建て
- 3,499万円
-
取手市井野
-
JR常磐線取手
-
-
-

-
- 中古一戸建て
- 1,180万円
-
松戸市上本郷
-
JR千代田・常磐緩行線北松戸
-
-
-

-
- 中古一戸建て
- 5,380万円
-
柏市西山1丁目
-
京成電鉄松戸線常盤平
-
-
-

-
- 中古一戸建て
- 980万円
-
柏市南逆井3丁目
-
京成電鉄松戸線五香
-
-
-

-
- 中古一戸建て
- 3,780万円
-
成田市はなのき台2丁目
-
JR成田線成田
-
-
-

-
- 中古一戸建て
- 2,380万円
-
柏市東中新宿1丁目
-
東武野田線新柏
-
-
-

-
- 中古一戸建て
- 1,480万円
-
松戸市古ケ崎
-
JR常磐線松戸
-
-
-

-
- 中古一戸建て
- 5,980万円
-
市川市八幡5丁目
-
京成本線鬼越
-












担当エージェント:むぎちゃん
★先着10組限定!今だけ!弊社独自キャンペーン★
物件内覧、弊社アンケートにご記入でギフトカード1,000円分プレゼントキャンペーン開催中!
※ご希望物件の内覧と弊社指定アンケートへのご記入をして頂いたお客様がキャンペーンの対象になります。
※弊社へのお問合せご利用が初めてのお客様に限ります。
※お客様の方から担当者に事前に必ずキャンペーンを見ましたとお伝え下さい。(こちらからのご案内はしませんのでご理解宜しくお願い致します。)
■当日見学OK■
営業時間内(10:00~18:00)は、下記電話フォームよりお電話をして頂けるとスムーズにご内覧のご案内ができます。