裾野市茶畑の中古戸建
掲載情報更新日:2026年04月12日 次回更新予定日:2026年04月26日
- 3,350万円
-
- 借入ご希望金額
万円 - 借入期間
年 - 借入金利
% - 月々のお支払い金額
円
- 借入ご希望金額
※ 月々のお支払例は目安の試算となりますので、実際の金額とは異なる場合がございます。詳しくは店舗までお問合わせください。
- 裾野市茶畑
-
JR御殿場線『裾野』 徒歩33分 (約2640m)
裾野市茶畑一戸建て | 物件情報
内覧予約、柔軟に対応中!お気軽にお申し付け下さい。
リフォームのご相談も、お任せ下さい。
ピンポイントリフォームからフルリフォームや間取を変えるフルリノベまでお気軽にご相談下さい。またご予算に応じました様々なプランもご用意致します。快適な家づくり・住み心地の良い家づくり、お手伝い致します。
物件の設備
- 電気
- 公営水道
- 浄化槽
- プロパンガス
- 集中プロパン
- 給湯
- 浄水器
- 食器洗浄乾燥機
- IHクッキングヒータ
- コンロ三口
- グリル
- カウンターキッチン
- システムキッチン
- バス
- ユニットバス
- 追焚機能
- 浴室乾燥機
- 浴室に窓
- トイレ
- トイレ2箇所
- 温水洗浄便座
- 室内洗濯機置場
- 洗面所独立
- ダウンライト
- 太陽光発電システム
- カードキー
- ディンプルキー
- 火災警報器/報知機
- 全居室複層ガラス
- フローリング
- クッションフロア
- シャッター雨戸
- 網戸
- クローゼット
- ウォークインクローゼット
- 床下収納
- 全居室収納
- シューズボックス
- 庭
- ウッドデッキ
物件の特徴
- 緑豊かな住宅地
- 閑静な住宅街
- 周辺交通量少なめ
- 山が見える
- 眺望良好
- 通風良好
- 陽当り良好
- 2階建
- 角地
- 開発分譲地内
物件詳細情報
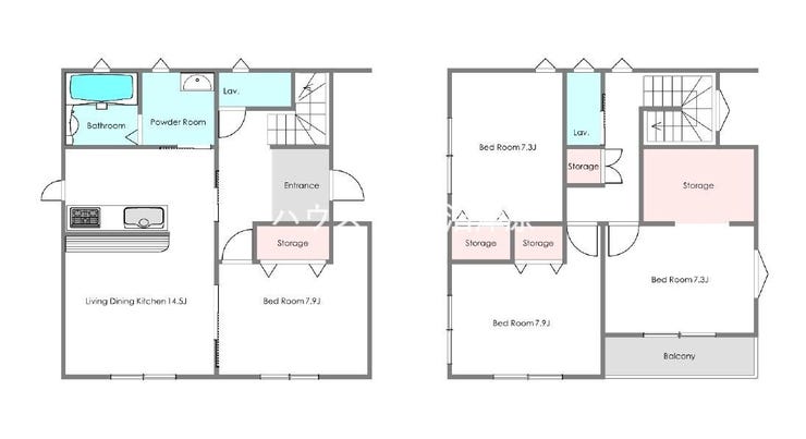
| 価格 | 3,350万円 | 間取り | 4LDK |
|---|---|---|---|
| 物件種別 | 中古一戸建て | ||
| 所在地 | 静岡県裾野市茶畑 | ||
| アクセス |
|
||
| 建物面積 | 公118㎡ | 駐車場 | あり 普通:3台 |
| 築年月 | 2020年(令和2年)03月築 | ||
| 建物構造 | 木造 2階建 | 工法 | |
| 主要採光 | バルコニー | ||
| 保証・評価 | |||
| リフォーム | |||
| 土地面積 | 公200.52㎡(60.65坪) | 接道 | |
| 私道 | セットバック | ||
| 地目 | 宅地 | 地勢 | |
| 権利 | 所有権 |
||
| 都市計画 | 調整区域 |
用途地域 | 指定無 |
| 建ぺい/容積率 | 60% / 200% | 土地国土法 | |
| 許可番号 | 建築基準法 | ||
| 法令制限 | |||
| 小学区 | 向田小学校 徒歩15分 (約1190m) | 中学区 | 東中学校 徒歩9分 (約710m) |
| 現況 | 居住中 | 引渡 | 相談 |
| その他費用 | |||
| 備考 | |||
| 物件番号 | 4517283 | 取引態様 | 媒介 |
取扱店舗情報
| 電話番号 | 055-969-3366 |
|---|---|
| 所在地 | 〒410-0312 静岡県沼津市原1418-40 |
| 営業時間 | 10:00~18:00 |
| 定休日 | 水曜日 |
| 宅建免許番号 | 静岡県知事(2)第14312号 |
| アクセス | 店舗への地図はこちら |

来店ご予約
静岡県裾野市で価格が似ている物件はこちら
- 静岡県
マイページ物件数 - 2,741件
最近見た物件
-
-

-
- 土地
- 1,880万円
-
碧南市金山町4丁目
-
名鉄三河線北新川
-
-
-

-
- 新築一戸建て
- 5,199万円
-
名古屋市緑区浦里5丁目
-
名鉄名古屋本線鳴海
-
-
-

-
- 新築一戸建て
- 4,898万円
-
豊田市小坂町5丁目
-
愛知環状鉄道新豊田
-
静岡県中古一戸建て新着物件
- お近くの店舗を探す
-
おすすめ物件
-
-

-
- 中古一戸建て
- 2,780万円
-
富士市三ツ沢
-
岳南電車岳南原田
-
-
-

-
- 中古一戸建て
- 1,320万円
-
静岡市葵区辰起町
-
JR東海道本線静岡
-
-
-

-
- 中古一戸建て
- 550万円
-
静岡市葵区上伝馬
-
JR東海道本線静岡
-
-
-

-
- 中古一戸建て
- 1,770万円
-
静岡市葵区水見色
-
JR東海道本線静岡
-
-
-

-
- 中古一戸建て
- 2,180万円
-
浜松市中央区和合町
-
JR東海道本線浜松
-
-
-

-
- 中古一戸建て
- 2,070万円
-
静岡市葵区建穂1丁目
-
JR東海道本線静岡
-
-
-

-
- 中古一戸建て
- 950万円
-
周智郡森町飯田
-
秋葉バス「飯田」停
-
-
-

-
- 中古一戸建て
- 2,480万円
-
浜松市中央区富塚町
-
遠鉄バス「ごんげんや」停
-
-
-

-
- 中古一戸建て
- 2,299万円
-
菊川市柳3丁目
-
JR東海道本線菊川
-
-
-

-
- 中古一戸建て
- 1,410万円
-
沼津市下香貫木ノ宮
-
JR東海道本線沼津
-



































担当エージェント:尾形 翔哉
住宅ローンのご質問・ご相談、何なりとお申し付け下さい。
「物件の場所はどこ?」「○○エリアで物件を探しているんだけど?」
内見予約等、どんな事でもハウスドゥ沼津原までお気軽にお問い合わせ下さい♪