松伏町田中3丁目 中古戸建
掲載情報更新日:2026年04月17日 次回更新予定日:2026年05月01日
- 3,280万円
-
- 借入ご希望金額
万円 - 借入期間
年 - 借入金利
% - 月々のお支払い金額
円
- 借入ご希望金額
※ 月々のお支払例は目安の試算となりますので、実際の金額とは異なる場合がございます。詳しくは店舗までお問合わせください。
- 北葛飾郡松伏町田中3丁目
-
東武伊勢崎・大師線『北越谷』 バス乗車9分 茨城急行自動車 小河原 停 徒歩6分 (約480m)
東武伊勢崎・大師線『大袋』 徒歩14分 (約1120m)
JR武蔵野線『吉川』 徒歩19分 (約1520m)
松伏町田中3丁目 中古戸建一戸建て | 物件情報
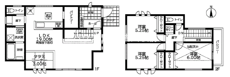
LDKひろびろ19帖!オール電化 全居室収納付き!リビング階段はスケルトン仕様です!
リビング階段スケルトン仕様!駐車3台可!LDK19帖+畳コーナー3帖!周辺施設充実で太陽光発電付のオール電化住宅です!
物件の設備
- 電気
- 上水道
- 公営水道
- 下水道
- 公共下水
- 都市ガス
- 浄水器
- コンロ三口
- グリル
- カウンターキッチン
- システムキッチン
- バス
- ユニットバス
- バス1坪以上
- 追焚機能
- 浴室乾燥機
- 浴室に窓
- トイレ2箇所
- 温水洗浄便座
- 室内洗濯機置場
- 洗髪洗面化粧台
- 洗面所独立
- ダブルロックキー
- モニタ付インターホン
- 火災警報器/報知機
- LDK18畳以上
- 複層ガラス
- 全居室複層ガラス
- フローリング
- シャッター雨戸
- 網戸
- クローゼット3箇所
- 全居室収納
- シューズボックス
- バルコニー
物件の特徴
- 前道6m以上
- 2階建
- 整形地
- 外壁サイディング
物件詳細情報
| 価格 | 3,280万円 | 間取り | 3LDK |
|---|---|---|---|
| 物件種別 | 中古一戸建て | ||
| 所在地 | 埼玉県北葛飾郡松伏町田中3丁目 | ||
| アクセス |
|
||
| 建物面積 | 公91.91㎡ | 駐車場 | あり 普通:3台 |
| 築年月 | 2022年(令和4年)03月築 | ||
| 建物構造 | 木造 ストレート葦 2階建 | 工法 | |
| 主要採光 | 南向 | バルコニー | 東向5.40㎡ |
| 保証・評価 | |||
| リフォーム | |||
| 土地面積 | 公147㎡(44.46坪) | 接道 | 東側(公道)幅 約6.0m 間口 約8.10m |
| 私道 | セットバック | ||
| 地目 | 宅地 | 地勢 | 平坦 |
| 権利 | 所有権 |
||
| 都市計画 | 市街化区域 |
用途地域 | 1種低層 |
| 建ぺい/容積率 | 50% / 80% | 土地国土法 | |
| 許可番号 | 建築基準法 | ||
| 法令制限 | 法22条区域 | ||
| 小学区 | 松伏第二小学校 徒歩13分 (約1000m) | 中学区 | 松伏第二中学校 徒歩27分 (約2100m) |
| 現況 | 居住中 | 引渡 | 相談 |
| その他費用 | |||
| 周辺環境 | ローソン 松伏町松伏店 徒歩7分 (約560m) スギドラッグ 松伏店 徒歩8分 (約620m) たむら歯科 徒歩10分 (約740m) 武蔵野銀行 松伏支店 徒歩10分 (約790m) セブンイレブン 松伏町松伏店 徒歩11分 (約860m) 安楽亭 松伏店 徒歩12分 (約930m) まつぶし幼稚園(こどものもり) 徒歩13分 (約980m) 松伏町立松伏第二小学校 徒歩13分 (約980m) 松伏町役場 徒歩16分 (約1250m) 松伏町立松伏第二中学校 徒歩28分 (約2200m) |
||
| 備考 | ゴミ置場持分6分の1(2.75㎡) | ||
| 物件番号 | 4524634 | 取引態様 | 媒介 |
取扱店舗情報
ハウスドゥ 吉川駅前 不二光エステート株式会社 店舗詳細ページへ
| 電話番号 | 048-940-2747 |
|---|---|
| 所在地 | 〒342-0045 埼玉県吉川市木売1丁目9番地4-101 |
| 営業時間 | 10:00~18:30 |
| 定休日 | 水曜日、GW、夏季、年末年始 |
| 宅建免許番号 | 埼玉県知事(1)第25510号 |
| アクセス | 店舗への地図はこちら |

来店ご予約
- 埼玉県
マイページ物件数 - 3,165件
最近見た物件
-
-

-
- 中古一戸建て
- 1,250万円
-
高槻市山手町1丁目
-
JR東海道線高槻
-
-
-

-
- 新築一戸建て
- 4,398万円
-
北九州市八幡西区東鳴水3丁目
-
JR鹿児島本線黒崎
-
-
-

-
- 土地
- 180万円
-
長崎市中小島1丁目
-
長崎電軌本線崇福寺
-
埼玉県中古一戸建て新着物件
-
-

-
- 中古一戸建て
- 1,800万円
-
川口市前上町
-
JR京浜東北・根岸線川口駅
-
-
-

-
- 中古一戸建て
- 2,699万円
-
さいたま市南区松本4丁目
-
JR武蔵野線西浦和駅
-
-
-

-
- 中古一戸建て
- 3,599万円
-
さいたま市南区松本3丁目
-
JR武蔵野線西浦和駅
-
-
-

-
- 中古一戸建て
- 1,480万円
-
さいたま市北区日進町2丁目
-
JR川越線日進駅
-
-
-

-
- 中古一戸建て
- 6,690万円
-
さいたま市南区沼影1丁目
-
JR埼京線武蔵浦和駅
-
-
-

-
- 中古一戸建て
- 2,480万円
-
さいたま市北区日進町1丁目
-
埼玉新都市交通鉄道博物館(大成)駅
-
-
-

-
- 中古一戸建て
- 9,900万円
-
さいたま市西区大字飯田
-
JR京浜東北・根岸線大宮駅
-
- お近くの店舗を探す
-
おすすめ物件
-
-

-
- 中古一戸建て
- 1,900万円
-
川越市大塚2丁目
-
東武東上線川越
-
-
-

-
- 中古一戸建て
- 1,350万円
-
北葛飾郡松伏町田中3丁目
-
東武伊勢崎・大師線北越谷
-
-
-

-
- 中古一戸建て
- 3,680万円
-
さいたま市緑区道祖土4丁目
-
JR京浜東北・根岸線浦和
-
-
-

-
- 中古一戸建て
- 2,080万円
-
上尾市大字原市
-
埼玉新都市交通沼南
-
-
-

-
- 中古一戸建て
- 1,999万円
-
さいたま市見沼区大字中川
-
JR東北本線大宮
-
-
-

-
- 中古一戸建て
- 2,499万円
-
さいたま市緑区大字中尾
-
JR武蔵野線東浦和
-
-
-

-
- 中古一戸建て
- 2,360万円
-
さいたま市西区三橋5丁目
-
JR東北本線大宮
-
-
-

-
- 中古一戸建て
- 2,680万円
-
さいたま市緑区大字中尾
-
JR東北本線浦和
-
-
-

-
- 中古一戸建て
- 3,480万円
-
上尾市大字原市
-
埼玉新都市交通沼南
-
-
-

-
- 中古一戸建て
- 2,999万円
-
東松山市あずま町1丁目
-
東武東上線高坂
-















担当エージェント:島田 諭
令和4年築の注文住宅です☆彡