中古戸建 東広島市西条中央8丁目
掲載情報更新日:2026年05月13日 次回更新予定日:2026年05月27日
- 5,980万円
-
- 借入ご希望金額
万円 - 借入期間
年 - 借入金利
% - 月々のお支払い金額
円
- 借入ご希望金額
※ 月々のお支払例は目安の試算となりますので、実際の金額とは異なる場合がございます。詳しくは店舗までお問合わせください。
- 東広島市西条中央8丁目
-
JR山陽本線『西条』 徒歩26分 (約2010m)
『西条中央7丁目バス停』 徒歩5分 (約400m)
中古戸建 東広島市西条中央8丁目一戸建て | 物件情報
二世帯可能♪三ツ城小学校まで徒歩約3分! 2号線へのアクセスも良好で通勤にも便利!
物件の設備
- オール電化
- 公営水道
- 公共下水
- 給湯
- 食器洗浄乾燥機
- IHクッキングヒーター
- カウンターキッチン
- システムキッチン
- バス
- ユニットバス
- バス1坪以上
- 浴室暖房
- 浴室乾燥機
- トイレ
- トイレ2箇所
- 温水洗浄便座
- 室内洗濯機置場
- 洗髪洗面化粧台
- LDK15畳以上
- 和室
- 和室8畳以上
- 全居室6畳以上
- フローリング
- クローゼット
- クローゼット2箇所
- 納戸
- 全居室収納
- シューズボックス
- ワイドバルコニー
- 南庭
物件の特徴
- 駅まで平坦
- 前道6m以上
- 閑静な住宅街
- 市街地が近い
- 山が見える
- 通風良好
- 陽当り良好
- 2階建
- 前面棟無
- 角地
- 整形地
- 区画整理地内
- 新築
- 増改築設計図書
- 二世帯向
物件詳細情報
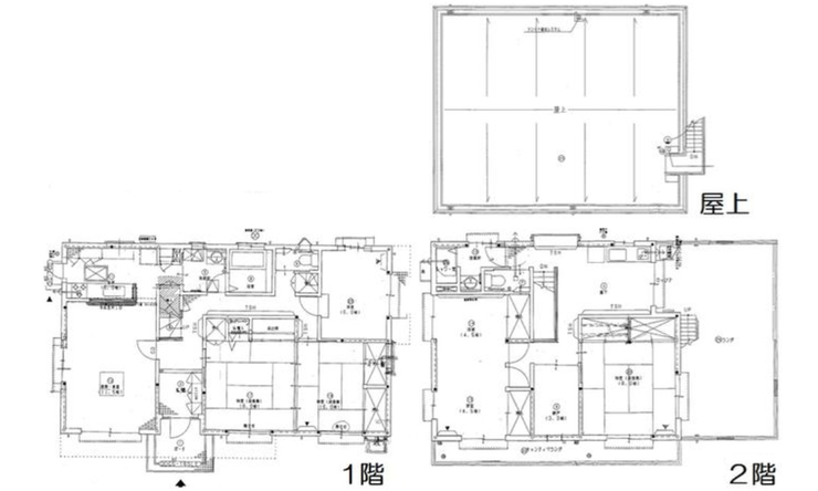
| 価格 | 5,980万円 | 間取り | 5LDK+S |
|---|---|---|---|
| 物件種別 | 中古一戸建て | ||
| 所在地 | 広島県東広島市西条中央8丁目 | ||
| アクセス |
|
||
| 建物面積 | 180.47㎡ | 駐車場 | あり 普通:3台 |
| 築年月 | 1995年(平成7年)06月築 | ||
| 建物構造 | 軽量鉄骨 2階建 | 工法 | |
| 主要採光 | バルコニー | ||
| 保証・評価 | |||
| リフォーム | |||
| 土地面積 | 273.72㎡(82.80坪) | 接道 | 北側(公道)幅 約6.2m 間口 約17.00m 東側(公道)幅 約6.2m 間口 約14.00m |
| 私道 | セットバック | ||
| 地目 | 宅地 | 地勢 | |
| 権利 | 所有権 |
||
| 都市計画 | 市街化区域 |
用途地域 | 2種中高 |
| 建ぺい/容積率 | 60% / 200% | 土地国土法 | |
| 許可番号 | 建築基準法 | ||
| 法令制限 | |||
| 小学区 | 三ツ城小学校 徒歩4分 (約320m) | 中学区 | 中央中学校 徒歩14分 (約1120m) |
| 現況 | 居住中 | 引渡 | 相談 |
| その他費用 | |||
| 周辺環境 | 東広島市立三ッ城小学校 徒歩4分 (約320m) セブンイレブン広島西条中央店 徒歩6分 (約420m) 東広島市立中央図書館 徒歩8分 (約620m) 東広島市立中央中学校 徒歩14分 (約1120m) コープ東広島 徒歩20分 (約1600m) くすりのレディ広島西条店 徒歩20分 (約1570m) ハローズ東広島店 徒歩18分 (約1370m) 東広島寺西郵便局 徒歩23分 (約1820m) |
||
| 備考 | ヘーベルハウスの住宅 角地 バス1坪以上 追い焚機能 浴室乾燥機 シャワールーム IHクッキングヒーター システムキッチン 食器洗浄乾燥機 照明器具 エアコン2台以上 庭 駐車場3台(車種による) 平成18年にガス給湯からオール電化に変更(1階のみ) |
||
| 物件番号 | 4528605 | 取引態様 | 媒介 |
取扱店舗情報
ハウスドゥ 八本松正力 株式会社ノア・コーポレーション 店舗詳細ページへ
| 電話番号 | 082-490-3341 |
|---|---|
| 所在地 | 〒739-0132 広島県東広島市八本松町正力1089-6 |
| 営業時間 | 9:00~18:00 |
| 定休日 | 水曜日、年末年始 |
| 宅建免許番号 | 広島県知事(1)第11474号 |
| アクセス | 店舗への地図はこちら |

来店ご予約
- 広島県
マイページ物件数 - 4,692件
最近見た物件
-
-

-
- 中古マンション
- 2,799万円
-
川崎市宮前区有馬6丁目
-
東急田園都市線鷺沼
-
-
-

-
- 新築一戸建て
- 3,480万円
-
高知市南久万
-
JR土讃線円行寺口
-
-
-

-
- 中古マンション
- 3,488万円
-
川口市並木1丁目
-
JR京浜東北・根岸線西川口
-
広島県中古一戸建て新着物件
-
-

-
- 中古一戸建て
- 2,500万円
-
東広島市豊栄町安宿
-
JR山陽本線西条駅
-
-
-

-
- 中古一戸建て
- 2,487万円
-
福山市木之庄町6丁目
-
JR山陽本線福山駅
-
-
-

-
- 中古一戸建て
- 580万円
-
尾道市久保町
-
プレス工業前バス停
-
-
-

-
- 中古一戸建て
- 730万円
-
尾道市美ノ郷町三成
-
三美園口バス停徒歩
-
-
-

-
- 中古一戸建て
- 580万円
-
尾道市久保町
-
プレス工業前バス停
-
-
-

-
- 中古一戸建て
- 2,487万円
-
福山市木之庄町6丁目
-
JR山陽本線福山駅
-
-
-

-
- 中古一戸建て
- 1,490万円
-
福山市蔵王町
-
JR山陽新幹線福山駅
-
- お近くの店舗を探す
-
おすすめ物件
-
-

-
- 中古一戸建て
- 4,180万円
-
広島市佐伯区石内東2丁目
-
JR山陽本線西広島
-
-
-

-
- 中古一戸建て
- 2,499万円
-
福山市加茂町字中野
-
JR山陽本線福山
-
-
-

-
- 中古一戸建て
- 300万円
-
尾道市栗原町
-
JR山陽新幹線新尾道
-
-
-

-
- 中古一戸建て
- 2,200万円
-
福山市新涯町6丁目
-
JR山陽本線東福山
-
-
-

-
- 中古一戸建て
- 2,990万円
-
福山市箕島町
-
JR山陽本線東福山
-
-
-

-
- 中古一戸建て
- 390万円
-
福山市神辺町字西中条
-
井原鉄道湯野
-
-
-

-
- 中古一戸建て
- 300万円
-
尾道市御調町大蔵
-
本村バス停
-
-
-

-
- 中古一戸建て
- 1,850万円
-
広島市佐伯区五月が丘4丁目
-
JR山陽本線西広島
-
-
-

-
- 中古一戸建て
- 1,500万円
-
福山市道三町
-
JR山陽本線福山
-
-
-

-
- 中古一戸建て
- 1,580万円
-
広島市佐伯区河内南1丁目
-
JR山陽本線五日市
-





