守口市金田町2丁目 中古戸建
掲載情報更新日:2026年04月15日 次回更新予定日:2026年04月29日
- 5,380万円
-
- 借入ご希望金額
万円 - 借入期間
年 - 借入金利
% - 月々のお支払い金額
円
- 借入ご希望金額
※ 月々のお支払例は目安の試算となりますので、実際の金額とは異なる場合がございます。詳しくは店舗までお問合わせください。
- 守口市金田町2丁目
-
大阪市谷町線『大日』 徒歩21分 (約1640m)
大阪モノレール『大日』 徒歩21分 (約1670m)
京阪本線『古川橋』 徒歩25分 (約2000m)
京阪バス『金田』 徒歩8分 (約620m)
守口市金田町2丁目 中古戸建一戸建て | 物件情報
2025年8月内装リフォーム済 18.5帖の広々リビング 大日駅徒歩22分 即内見可!
☆月々15.2万円~
☆2025年8月内装リフォーム済
☆最寄駅(始発駅)から東梅田駅まで乗り換えなし18分
☆18.5帖LDK
☆駐車場1台&ハイルーフ車可!
☆近隣に学校、幼稚園、保育園、公園あり
☆複数スーパーあり
【内覧会開催中】
本日ご案内可能な場合もございます。
複数件併せてご内見も可能♪
他の掲載物件もまとめてご内見頂けます。気になる物件をお教え下さい。
☆0120ー684-571
お気軽にお電話ください♪
☆立地のポイント
【大日駅】(地下鉄谷町線始発駅)徒歩約22分(バス利用可)
物件の設備
- 電気
- 公営水道
- 公共下水
- 床暖房
- フローリング張替
物件の特徴
- 内装リフォーム済
- 外装リフォーム済
- 内外装リフォーム済
- 3階建以上
- 即入居可
物件詳細情報
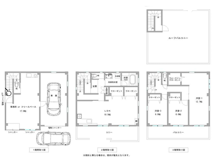
| 価格 | 5,380万円 | 間取り | 3LDK+S |
|---|---|---|---|
| 物件種別 | 中古一戸建て | ||
| 所在地 | 大阪府守口市金田町2丁目 | ||
| アクセス |
|
||
| 建物面積 | 176.89㎡ | 駐車場 | なし |
| 築年月 | 2017年(平成29年)10月築 | ||
| 建物構造 | 鉄骨 3階建 | 工法 | |
| 主要採光 | バルコニー | ||
| 保証・評価 | |||
| リフォーム | 【外装】2025年08月 屋根 屋上防水塗装 【内装】2025年08月 壁、天井 ・床 クロス・CF張替 |
||
| 土地面積 | 123.79㎡(37.44坪) | 接道 | 西側(私道)幅 約5.0m 間口 約9.50m |
| 私道 | 含:23.85㎡ | セットバック | |
| 地目 | 宅地 | 地勢 | 平坦 |
| 権利 | 所有権 |
||
| 都市計画 | 市街化区域 |
用途地域 | 2種住居 |
| 建ぺい/容積率 | 60% / 200% | 土地国土法 | |
| 許可番号 | 建築基準法 | ||
| 法令制限 | |||
| 小学区 | 金田小学校 徒歩4分 (約250m) | 中学区 | 庭窪中学校 徒歩9分 (約650m) |
| 現況 | 空 | 引渡 | 即 |
| その他費用 | |||
| 備考 | LDK床暖房・エネファーム・エコジョーズ・玄関ドア自動ロック・電動シャッター・ダウンライト・浴室テレビ | ||
| 物件番号 | 4532257 | 取引態様 | 媒介 |
取扱店舗情報
| 電話番号 | 050-5805-9447 |
|---|---|
| 所在地 | 〒536-0006 大阪府大阪市城東区野江4丁目10-13 クリエイト野江内代1F |
| 営業時間 | 10:00~19:00 |
| 定休日 | なし |
| 宅建免許番号 | 国土交通大臣(1)第10706号 |
| アクセス | 店舗への地図はこちら |

来店ご予約
大阪府守口市で価格が似ている物件はこちら
- 大阪府
マイページ物件数 - 18,209件
最近見た物件
大阪府中古一戸建て新着物件
-
-

-
- 中古一戸建て
- 3,180万円
-
堺市堺区中三国ヶ丘町2丁
-
南海電鉄高野線堺東駅
-
-
-

-
- 中古一戸建て
- 1,280万円
-
堺市堺区石津町4丁
-
南海電鉄本線石津川駅
-
-
-

-
- 中古一戸建て
- 160万円
-
東大阪市六万寺町1丁目
-
近鉄難波・奈良線瓢箪山駅
-
-
-

-
- 中古一戸建て
- 1,280万円
-
堺市南区鉢ヶ峯寺
-
南海電鉄泉北線泉ケ丘駅
-
-
-

-
- 中古一戸建て
- 2,280万円
-
摂津市鳥飼本町1丁目
-
大阪モノレール南摂津駅
-
-
-

-
- 中古一戸建て
- 4,498万円
-
摂津市鳥飼西1丁目
-
大阪モノレール南摂津駅
-
-
-

-
- 中古一戸建て
- 3,300万円
-
大阪市東淀川区豊新1丁目
-
阪急電鉄京都線上新庄駅
-
- お近くの店舗を探す
-
おすすめ物件
-
-

-
- 中古一戸建て
- 4,680万円
-
大阪市住吉区遠里小野6丁目
-
南海電鉄高野線我孫子前
-
-
-

-
- 中古一戸建て
- 1,050万円
-
高槻市東五百住町2丁目
-
阪急電鉄京都線富田
-
-
-

-
- 中古一戸建て
- 5,980万円
-
高槻市富田丘町
-
阪急電鉄京都線富田
-
-
-

-
- 中古一戸建て
- 1,980万円
-
東大阪市稲葉1丁目
-
近鉄難波・奈良線河内花園
-
-
-

-
- 中古一戸建て
- 2,580万円
-
泉大津市春日町
-
南海電鉄本線泉大津
-
-
-

-
- 中古一戸建て
- 2,999万円
-
高槻市津之江町2丁目
-
JR東海道線高槻
-
-
-

-
- 中古一戸建て
- 3,380万円
-
八尾市東山本町6丁目
-
近鉄大阪線河内山本
-
-
-

-
- 中古一戸建て
- 1,650万円
-
和泉市黒鳥町2丁目
-
JR阪和線和泉府中
-
-
-

-
- 中古一戸建て
- 730万円
-
泉南郡熊取町山の手台3丁目
-
JR阪和線熊取
-
-
-

-
- 中古一戸建て
- 4,980万円
-
高槻市川西町3丁目
-
JR東海道線高槻
-









































担当エージェント:尾関 親代
東梅田まで乗り換えなし18分!
落ち着いた住環境でファミリー層にも単身者にも◎♪
住宅ローン相談会開催中です!
ぜひお気軽にお問い合わせください!