高崎市岩鼻町の中古戸建
掲載情報更新日:2026年03月14日 次回更新予定日:2026年03月28日
- 1,230万円
-
- 借入ご希望金額
万円 - 借入期間
年 - 借入金利
% - 月々のお支払い金額
円
- 借入ご希望金額
※ 月々のお支払例は目安の試算となりますので、実際の金額とは異なる場合がございます。詳しくは店舗までお問合わせください。
- 高崎市岩鼻町
-
JR高崎線『倉賀野』 徒歩36分 (約2880m)
高崎市岩鼻町一戸建て | 物件情報
角地の開放感と、2階ゆったり主寝室。家族時間が心地よく広がる岩鼻町の住まい。
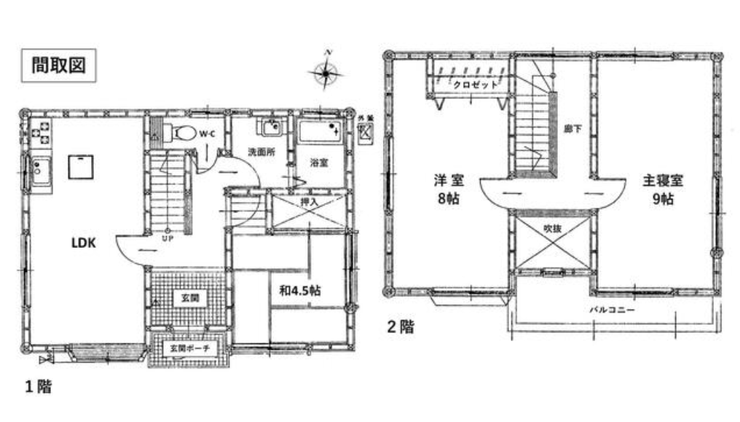
角地ならではの開放感が魅力の、高崎市岩鼻町の中古戸建。平成10年築の3LDKで、家族構成に合わせて使いやすい間取りです。2階には9畳の主寝室と8帖の洋室を配置し、ベッドやデスクを置いてもゆとりのある空間設計。朝の身支度や在宅ワークにも対応しやすく、落ち着いたプライベート時間を確保できます。岩鼻小学校まで約860mと通学距離も現実的で、子育て世帯にも検討しやすい立地。日当たり・通風ともに良好な角地で、日常の暮らしに余裕を感じられる一邸です。
物件の設備
- 電気
- 公営水道
- 下水道
- プロパンガス
- システムキッチン
- 浴室に窓
- 和室
- 吹抜
- クローゼット
物件の特徴
- 南向
- 全室南向
- スーパーが近い
- 閑静な住宅街
- 通風良好
- 陽当り良好
- 2階建
- 角地
物件詳細情報
| 価格 | 1,230万円 | 間取り | 3LDK |
|---|---|---|---|
| 物件種別 | 中古一戸建て | ||
| 所在地 | 群馬県高崎市岩鼻町 | ||
| アクセス |
|
||
| 建物面積 | 公91㎡ | 駐車場 | あり |
| 築年月 | 1998年(平成10年)02月築 | ||
| 建物構造 | 木造 セメント瓦葺 2階建 | 工法 | |
| 主要採光 | バルコニー | ||
| 保証・評価 | |||
| リフォーム | |||
| 土地面積 | 公188.73㎡(57.09坪) | 接道 | 西側(公道)幅 約5.0m 北側(公道)幅 約5.1m |
| 私道 | セットバック | ||
| 地目 | 宅地 | 地勢 | |
| 権利 | 所有権 |
||
| 都市計画 | 市街化区域 |
用途地域 | 1種中高 |
| 建ぺい/容積率 | 60% / 200% | 土地国土法 | |
| 許可番号 | 建築基準法 | ||
| 法令制限 | |||
| 小学区 | 岩鼻小学校 徒歩11分 (約860m) | 中学区 | 矢中中学校 徒歩30分 (約2400m) |
| 現況 | 空 | 引渡 | 相談 |
| その他費用 | |||
| 周辺環境 | JAたかさき岩鼻支店 徒歩7分 (約520m) 台新田町公民館 徒歩7分 (約520m) ぐんまみらい信用組合岩鼻出張所 徒歩7分 (約560m) 群馬県立歴史博物館 徒歩15分 (約1170m) 群馬県立近代美術館 徒歩15分 (約1170m) セブンイレブン高崎倉賀野東店 徒歩9分 (約660m) 高崎市岩鼻公民館 徒歩11分 (約830m) とりせん高崎倉賀野店・ニトリ高崎倉賀野店 徒歩11分 (約840m) 高崎市立岩鼻保育所 徒歩12分 (約930m) 群馬の森 徒歩17分 (約1310m) |
||
| 備考 | 前面道路に都市ガス本管あり 室内クリーニング済み 通知事項あり |
||
| 物件番号 | 4533782 | 取引態様 | 媒介 |
取扱店舗情報
ハウスドゥ 高崎倉賀野 株式会社未来ワーク 店舗詳細ページへ
| 電話番号 | 027-386-4447 |
|---|---|
| 所在地 | 〒370-1201 群馬県高崎市倉賀野町4573-1 |
| 営業時間 | 10:00~18:00 |
| 定休日 | 水曜日 |
| 宅建免許番号 | 群馬県知事(1)第7819号 |
| アクセス | 店舗への地図はこちら |

来店ご予約
群馬県高崎市で価格が似ている物件はこちら
- 群馬県
マイページ物件数 - 2,666件
最近見た物件
-
-

-
- 新築一戸建て
- 4,480万円
-
糟屋郡志免町桜丘1丁目
-
福岡市空港線福岡空港
-
-
-

-
- 中古一戸建て
- 700万円
-
各務原市鵜沼山崎町9丁目
-
JR高山本線鵜沼
-
-
-

-
- 中古一戸建て
- 1,150万円
-
宇都宮市川田町
-
東武宇都宮線南宇都宮
-
群馬県中古一戸建て新着物件
- お近くの店舗を探す
-
おすすめ物件
-
-

-
- 中古一戸建て
- 1,980万円
-
館林市羽附町
-
東武伊勢崎・大師線館林
-
-
-

-
- 中古一戸建て
- 870万円
-
邑楽郡明和町中谷
-
東武伊勢崎・大師線川俣
-
-
-

-
- 中古一戸建て
- 2,280万円
-
高崎市倉賀野町
-
JR高崎線倉賀野
-
-
-

-
- 中古一戸建て
- 980万円
-
邑楽郡千代田町大字瀬戸井
-
東武伊勢崎・大師線川俣
-
-
-

-
- 中古一戸建て
- 980万円
-
館林市高根町
-
東武伊勢崎・大師線多々良
-
-
-

-
- 中古一戸建て
- 1,980万円
-
邑楽郡大泉町東小泉2丁目
-
東武小泉線東小泉
-
-
-

-
- 中古一戸建て
- 3,680万円
-
佐野市犬伏下町
-
東武佐野線堀米
-
-
-

-
- 中古一戸建て
- 950万円
-
館林市小桑原町
-
東武伊勢崎・大師線館林
-
-
-

-
- 中古一戸建て
- 1,990万円
-
館林市当郷町
-
東武小泉線館林
-
-
-

-
- 中古一戸建て
- 1,099万円
-
高崎市中里町
-
JR上越線群馬総社
-


























ハウスドゥ高崎倉賀野は、感謝を忘れず頂いたご縁に一生懸命対応させていただきます♪お気軽にご相談ください♪