中古戸建 総社市井手 総社小学校・総社東中学校エリア
掲載情報更新日:2026年04月13日 次回更新予定日:2026年04月27日
- 2,146万円
-
- 借入ご希望金額
万円 - 借入期間
年 - 借入金利
% - 月々のお支払い金額
円
- 借入ご希望金額
※ 月々のお支払例は目安の試算となりますので、実際の金額とは異なる場合がございます。詳しくは店舗までお問合わせください。
- 総社市井手
-
JR吉備線『東総社』 徒歩15分 (約1200m)
中古戸建 総社市井手 総社小学校・総社東中学校エリア一戸建て | 物件情報
総社小学校まで徒歩9分!お子様の通学も安心♪ 普通車2台を並列でゆったり駐車可能◎
◎ネットからご来店予約でQuoカード1000円分プレゼント!
☆保育施設や小児科も近くにあり、子育て環境良好です◎
☆和室中心の広々6DK♪
\*おすすめPOINT*/
・人気の総社小学校学区エリア♪
・駐車2台可で来客時も安心の敷地配置♪
・来客時の客室など多目的に利用できる畳の香りが清々しい和室。
★周辺環境★
ハローズ総社店 徒歩約2分(220m)
第二太陽保育園 徒歩約5分(400m)
ディオ総社店 徒歩約13分(330m)
『全国700店舗展開の情報ネットワーク!』
◆物件見学・オープンハウス随時開催!◆
◇資金計画、住宅ローン、リフォーム、火災保険
◇弊社提携の銀行員や税理士による無料相談
◇店内にキッズコーナー、ベビーベッドも完備
◇ドリンクサービス充実、季節によってメニュー変更♪
お一人でのご来店、お子様を連れてのご来店も可能です
お気軽にお問い合わせください♪
☆―ご予約・お問合せ―☆
ハウスドゥ総社:0866-95-2775
までお問い合わせください!
物件の設備
- 電気
- 上水道
- 下水道
- プロパンガス
- IHクッキングヒータ
- バス
- バス1坪以上
- 浴室に窓
- トイレ
- 温水洗浄便座
- 室内洗濯機置場
- 和室
- 和室8畳以上
物件の特徴
- 駅まで平坦
- セットバック済
- 前道6m以上
- 山が見える
- 2階建
- 平坦地
物件詳細情報
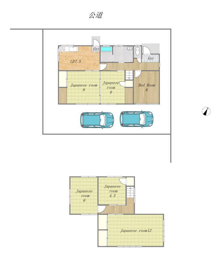
| 価格 | 2,146万円 | 間取り | 6DK |
|---|---|---|---|
| 物件種別 | 中古一戸建て | ||
| 所在地 | 岡山県総社市井手 | ||
| アクセス |
|
||
| 建物面積 | 163.56㎡ | 駐車場 | あり 普通:2台 |
| 築年月 | 1972年(昭和47年)02月築 | ||
| 建物構造 | 軽量鉄骨 2階建 | 工法 | |
| 主要採光 | バルコニー | ||
| 保証・評価 | |||
| リフォーム | |||
| 土地面積 | 公204.67㎡(61.91坪) | 接道 | 北側(公道)幅 約9.1m 間口 約17.40m 東側(公道)幅 約6.0m 間口 約11.40m |
| 私道 | セットバック | 済 | |
| 地目 | 宅地 | 地勢 | 平坦 |
| 権利 | 所有権 |
||
| 都市計画 | 市街化区域 |
用途地域 | 2種住居 |
| 建ぺい/容積率 | 60% / 200% | 土地国土法 | |
| 許可番号 | 建築基準法 | ||
| 法令制限 | |||
| 小学区 | 総社小学校 徒歩9分 (約700m) | 中学区 | 総社東中学校 徒歩2分 (約160m) |
| 現況 | 居住中 | 引渡 | 相談 |
| その他費用 | |||
| 周辺環境 | 東宮本町公園 徒歩6分 (約420m) ディオ総社店 徒歩3分 (約210m) 丸亀製麺総社 徒歩6分 (約420m) 吉備信用金庫きびの里支店 徒歩4分 (約280m) むかえ歯科・小児歯科 徒歩6分 (約440m) 第二太陽保育園 徒歩7分 (約500m) 総社市立総社小学校 徒歩9分 (約660m) 井手西公園 徒歩10分 (約760m) 第二ひかり保育園 徒歩12分 (約920m) ザグザグ中央 徒歩11分 (約830m) |
||
| 備考 | |||
| 物件番号 | 4535770 | 取引態様 | 専任媒介 |
取扱店舗情報
| 電話番号 | 0866-95-2775 |
|---|---|
| 所在地 | 〒719-1131 岡山県総社市中央1丁目21-101 |
| 営業時間 | 10:00~18:00 |
| 定休日 | 火曜日、水曜日、年末年始 |
| 宅建免許番号 | 岡山県知事(2)第5846号 |
| アクセス | 店舗への地図はこちら |

来店ご予約
岡山県総社市で価格が似ている物件はこちら
- 岡山県
マイページ物件数 - 4,663件
最近見た物件
岡山県中古一戸建て新着物件
-
-

-
- 中古一戸建て
- 2,080万円
-
総社市井尻野
-
JR伯備線総社駅
-
-
-

-
- 収益
- 700万円
-
倉敷市中島
-
水島臨海鉄道西富井駅
-
-
-

-
- 中古一戸建て
- 3,180万円
-
倉敷市笹沖
-
水島臨海鉄道浦田駅
-
-
-

-
- 中古一戸建て
- 1,680万円
-
倉敷市児島小川7丁目
-
JR本四備讃線児島駅
-
-
-

-
- 中古一戸建て
- 3,490万円
-
倉敷市児島田の口5丁目
-
JR本四備讃線上の町駅
-
-
-

-
- 中古一戸建て
- 98万円
-
岡山市中区赤坂台
-
岡山電軌東山本線門田屋敷駅
-
-
-

-
- 中古一戸建て
- 798万円
-
倉敷市連島町連島
-
水島臨海鉄道浦田駅
-
- お近くの店舗を探す
-
おすすめ物件
-
-

-
- 中古一戸建て
- 2,620万円
-
岡山市北区中撫川
-
JR山陽本線庭瀬
-
-
-

-
- 中古一戸建て
- 2,500万円
-
倉敷市東塚1丁目
-
水島臨海鉄道水島
-
-
-

-
- 中古一戸建て
- 350万円
-
久米郡美咲町宮山
-
JR姫新線美作大崎
-
-
-

-
- 中古一戸建て
- 2,650万円
-
倉敷市白楽町
-
JR山陽本線倉敷
-
-
-

-
- 中古一戸建て
- 1,899万円
-
赤磐市桜が丘東4丁目
-
JR山陽本線万富
-
-
-

-
- 中古一戸建て
- 1,099万円
-
津山市中村
-
JR因美線高野
-
-
-

-
- 中古一戸建て
- 4,680万円
-
総社市中央1丁目
-
JR伯備線総社
-
-
-

-
- 中古一戸建て
- 1,350万円
-
総社市宿
-
JR吉備線備中高松
-
-
-

-
- 中古一戸建て
- 2,500万円
-
倉敷市粒浦
-
水島臨海鉄道浦田
-
-
-

-
- 中古一戸建て
- 2,000万円
-
岡山市中区湊
-
岡山電軌東山本線東山岡電ミュージアム
-















担当エージェント:草地 樹
★初めてお問い合わせいただくお客様へ
1.物件について詳細をご説明します。(オンライン可)
2.お客様のご希望をどうぞお聞かせください♪
3.今後の流れを具体的にご案内
所要時間:約30分~1時間
★物件を見に行こう
所要時間: 1時間~1時間半(移動時間を除く)
気になる物件をじっくりとご確認いただけます。
現地で実際に確かめてください♪
周辺環境など実際の生活を想定したご案内をします。
+‥‥▼お電話でのご予約、ご質問・ご要望はこちらまで▼‥‥+
TEL:0866-95-2775
ハウスドゥ 総社
◆ご売却◆
売却相談、査定も承っております。
相続やお住み替え、リースバック
不用品の処分や片付けも対応!
ご売却までの流れなどお気軽にご相談ください。
◆リフォーム◆
お家探しからリフォームまでワンストップ対応。
打ち合わせもスムーズで安心◎
購入後もお客様をトータルサポート!お気軽にご相談ください。