岡山市北区田中の中古戸建
掲載情報更新日:2026年05月24日 次回更新予定日:2026年06月07日
- 4,400万円
-
- 借入ご希望金額
万円 - 借入期間
年 - 借入金利
% - 月々のお支払い金額
円
- 借入ご希望金額
※ 月々のお支払例は目安の試算となりますので、実際の金額とは異なる場合がございます。詳しくは店舗までお問合わせください。
- 岡山市北区田中
-
JR山陽本線『北長瀬』 徒歩19分 (約1520m)
JR宇野線『備前西市』 徒歩30分 (約2400m)
岡山市北区田中一戸建て | 物件情報
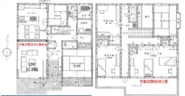
◆ウッドデッキのある7LDK住戸☆ ◆1階リビングと2階のお部屋には可動式壁!
◆納戸をはじめとした豊富な収納♪
物件の設備
- 上水道
- 下水道
- 都市ガス
- 浄水器
- 食器洗浄乾燥機
- IHクッキングヒーター
- コンロ三口
- グリル
- カウンターキッチン
- システムキッチン
- オートバス
- 追焚機能
- 浴室に窓
- 温水洗浄便座
- タンクレストイレ
- 室内洗濯機置場
- 洗髪洗面化粧台
- 洗面所独立
- エアコン
- 照明器具
- BS
- 間接照明
- ディンプルキー
- モニタ付インターホン
- 防犯カメラ
- LDK15畳以上
- LDK18畳以上
- LDK20畳以上
- 和室
- 和室8畳以上
- 出窓
- クローゼット
- ウォークインクローゼット
- 納戸
- 全居室収納
- バルコニー
- ワイドバルコニー
- ウッドデッキ
物件の特徴
- 南側道路面す
- 2階建
物件詳細情報
| 価格 | 4,400万円 | 間取り | 7LDK |
|---|---|---|---|
| 物件種別 | 中古一戸建て | ||
| 所在地 | 岡山県岡山市北区田中 | ||
| アクセス |
|
||
| 建物面積 | 174.17㎡ | 駐車場 | あり |
| 築年月 | 2000年(平成12年)02月築 | ||
| 建物構造 | 木造 瓦葺 2階建 | 工法 | |
| 主要採光 | 南向 | バルコニー | 17.00㎡ |
| 保証・評価 | |||
| リフォーム | |||
| 土地面積 | 公206.09㎡(62.34坪) | 接道 | 南側(私道)幅 約4.5m |
| 私道 | セットバック | ||
| 地目 | 宅地 | 地勢 | |
| 権利 | 所有権 |
||
| 都市計画 | 市街化区域 |
用途地域 | 2種中高 |
| 建ぺい/容積率 | 60% / 200% | 土地国土法 | |
| 許可番号 | 建築基準法 | ||
| 法令制限 | 法22条区域 | ||
| 小学区 | 御南小学校 徒歩13分 (約1009m) | 中学区 | 御南中学校 徒歩7分 (約508m) |
| 現況 | 居住中 | 引渡 | 相談 |
| その他費用 | |||
| 周辺環境 | 北長瀬駅 徒歩20分 (約1540m) 岡山市立御南小学校 徒歩17分 (約1310m) 岡山市立御南中学校 徒歩7分 (約510m) ポストメイト保育園・問屋町テラス 徒歩12分 (約890m) ニシナフードバスケット 中仙道店 徒歩6分 (約430m) ファミリーマート岡山御南店 徒歩8分 (約590m) くすりのラブ田中店 徒歩4分 (約310m) 岡山市立市民病院 徒歩18分 (約1420m) 中国銀行 岡山西店 徒歩12分 (約920m) 岡山白石郵便局 徒歩17分 (約1310m) |
||
| 備考 | ◆ウッドデッキのある7LDK住戸☆ ◆1階リビングと2階のお部屋には可動式壁! ◆納戸をはじめとした豊富な収納♪ ※現状有姿(敷地内倉庫有) ※駐車場・駐輪場に一部屋根有 ※図面上の2階洋室11.5帖は、現在2部屋に分かれています。 ※敷地内にセキュリティカメラが設置されています。 ※契約不適合責任免責 |
||
| 物件番号 | 4540656 | 取引態様 | 媒介 |
取扱店舗情報
ハウスドゥ 岡山駅西口 株式会社アールイープロジェクト 店舗詳細ページへ
| 電話番号 | 086-239-8621 |
|---|---|
| 所在地 | 〒700-0025 岡山県岡山市北区寿町1-3 ウエストサイドオカヤマ1階 |
| 営業時間 | 9:00~18:00 |
| 定休日 | 水曜日 |
| 宅建免許番号 | 岡山県知事(2)第5855号 |
| アクセス | 店舗への地図はこちら |

来店ご予約
岡山県岡山市北区で価格が似ている物件はこちら
- 岡山県
マイページ物件数 - 4,763件
最近見た物件
-
-

-
- 土地
- 900万円
-
可児市大森
-
JR中央本線多治見
-
-
-

-
- 新築一戸建て
- 1,880万円
-
高松市多肥上町
-
高松琴平電鉄琴平線仏生山
-
-
-

-
- 土地
- 180万円
-
鹿児島市牟礼岡2丁目
-
牟礼岡二丁目
-
岡山県中古一戸建て新着物件
-
-

-
- 中古一戸建て
- 6,800万円
-
岡山市北区撫川
-
JR山陽本線庭瀬駅
-
-
-

-
- 中古一戸建て
- 2,399万円
-
倉敷市茶屋町
-
JR本四備讃線茶屋町駅
-
-
-

-
- 中古一戸建て
- 2,199万円
-
倉敷市北畝1丁目
-
水島臨海鉄道栄駅
-
-
-

-
- 中古一戸建て
- 2,299万円
-
倉敷市福田町福田
-
水島臨海鉄道栄駅
-
-
-

-
- 中古一戸建て
- 3,480万円
-
総社市福井
-
JR吉備線東総社駅
-
-
-

-
- 中古一戸建て
- 3,580万円
-
岡山市北区大安寺南町1丁目
-
JR吉備線大安寺駅
-
-
-

-
- 中古一戸建て
- 1,199万円
-
岡山市東区城東台西2丁目
-
JR山陽本線上道駅
-
- お近くの店舗を探す
-
おすすめ物件
-
-

-
- 中古一戸建て
- 1,899万円
-
総社市泉
-
JR吉備線東総社
-
-
-

-
- 中古一戸建て
- 2,900万円
-
倉敷市東町
-
JR山陽本線倉敷
-
-
-

-
- 中古一戸建て
- 3,280万円
-
総社市駅南1丁目
-
JR伯備線総社
-
-
-

-
- 中古一戸建て
- 100万円
-
岡山市北区建部町福渡
-
JR津山線福渡
-
-
-

-
- 中古一戸建て
- 1,980万円
-
倉敷市児島通生
-
JR本四備讃線児島
-
-
-

-
- 中古一戸建て
- 2,500万円
-
倉敷市東塚1丁目
-
水島臨海鉄道水島
-
-
-

-
- 中古一戸建て
- 3,798万円
-
総社市駅南1丁目
-
JR伯備線総社
-
-
-

-
- 中古一戸建て
- 2,500万円
-
倉敷市粒浦
-
水島臨海鉄道浦田
-
-
-

-
- 中古一戸建て
- 980万円
-
倉敷市真備町箭田
-
井原鉄道吉備真備
-
-
-

-
- 中古一戸建て
- 1,099万円
-
津山市中村
-
JR因美線高野
-















