周南市大字下上の中古戸建
掲載情報更新日:2026年04月12日 次回更新予定日:2026年04月26日
- 4,400万円
-
- 借入ご希望金額
万円 - 借入期間
年 - 借入金利
% - 月々のお支払い金額
円
- 借入ご希望金額
※ 月々のお支払例は目安の試算となりますので、実際の金額とは異なる場合がございます。詳しくは店舗までお問合わせください。
- 周南市大字下上
-
JR山陽本線『新南陽』 徒歩23分 (約1840m)
周南市大字下上一戸建て | 物件情報
暮らしの中で体と心が自然に整い、永く快適に住まえるサスティナブルな住宅です。
全館空調設備で1年中快適に過ごせます。未入居のスマートハウスになります。駐車場も3台分以上可能な物件です。閑静な住宅地で日当たりも良好です。
物件の設備
- オール電化
- 上水道
- 下水道
- 都市ガス
- 食器洗浄乾燥機
- IHクッキングヒータ
- コンロ三口
- グリル
- システムキッチン
- オープンキッチン
- バス1坪以上
- 追焚機能
- 浴室乾燥機
- 温水洗浄便座
- タンクレストイレ
- 室内洗濯機置場
- 室内物干機
- セントラルヒーティング
- エアコン
- エアコン2基
- ビルトインエアコン
- 間接照明
- ダウンライト
- フットライト
- 太陽光発電システム
- モニタ付インターホン
- 複層ガラス
- ハイサッシ
- ウォークインクローゼット
物件の特徴
- 前道6m以上
- 2階建
- 長期優良住宅
- 耐震基準適合証明書有
- 即入居可
物件詳細情報
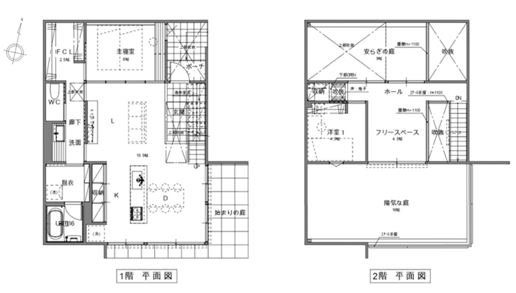
| 価格 | 4,400万円 | 間取り | 3LDK |
|---|---|---|---|
| 物件種別 | 中古一戸建て | ||
| 所在地 | 山口県周南市大字下上 | ||
| アクセス |
|
||
| 建物面積 | 94.03㎡ | 駐車場 | あり 普通:3台 |
| 築年月 | 2023年(令和5年)07月築 | ||
| 建物構造 | 木造 2階建 | 工法 | |
| 主要採光 | バルコニー | ||
| 保証・評価 | 長期優良住宅認定通知書・耐震基準適合証明書 |
||
| リフォーム | |||
| 土地面積 | 実171.4㎡(51.84坪) | 接道 | 北側(公道)幅 約8.0m |
| 私道 | セットバック | ||
| 地目 | 宅地 | 地勢 | |
| 権利 | 所有権 |
||
| 都市計画 | 市街化区域 |
用途地域 | 1種中高 |
| 建ぺい/容積率 | 60% / 200% | 土地国土法 | |
| 許可番号 | 建築基準法 | ||
| 法令制限 | |||
| 小学区 | 菊川小学校 徒歩16分 (約1250m) | 中学区 | 菊川中学校 徒歩35分 (約2749m) |
| 現況 | 空 | 引渡 | 即 |
| その他費用 | |||
| 備考 | |||
| 物件番号 | 4541965 | 取引態様 | 媒介 |
取扱店舗情報
| 電話番号 | 0833-44-7712 |
|---|---|
| 所在地 | 〒743-0021 山口県光市浅江5丁目14-18 |
| 営業時間 | 9:00~18:00 |
| 定休日 | 水曜日、祝日 |
| 宅建免許番号 | 山口県知事(1)第3902号 |
| アクセス | 店舗への地図はこちら |

来店ご予約
山口県周南市で価格が似ている物件はこちら
- 山口県
マイページ物件数 - 3,265件
最近見た物件
-
-

-
- 中古一戸建て
- 2,380万円
-
松山市石手1丁目
-
上石手
-
-
-

-
- 中古一戸建て
- 500万円
-
三条市鶴田3丁目
-
JR信越本線保内
-
-
-

-
- 中古一戸建て
- 2,950万円
-
大垣市南若森町1丁目
-
JR東海道本線大垣
-
山口県中古一戸建て新着物件
-
-

-
- 中古一戸建て
- 1,998万円
-
山口市小郡光が丘
-
JR山口線上郷駅
-
-
-

-
- 中古一戸建て
- 1,980万円
-
下関市小月茶屋1丁目
-
JR山陽本線小月駅
-
-
-

-
- 中古一戸建て
- 3,480万円
-
周南市舞車町
-
JR山陽本線徳山駅
-
-
-

-
- 中古一戸建て
- 1,398万円
-
防府市大字牟礼
-
JR山陽本線防府駅
-
-
-

-
- 中古一戸建て
- 1,480万円
-
山口市吉敷赤田1丁目
-
JR山口線矢原駅
-
-
-

-
- 中古一戸建て
- 450万円
-
岩国市錦見2丁目
-
JR岩徳線西岩国駅
-
-
-

-
- 中古一戸建て
- 760万円
-
岩国市由宇町南沖4丁目
-
JR山陽本線由宇駅
-
- お近くの店舗を探す
-
おすすめ物件
-
-

-
- 中古一戸建て
- 4,650万円
-
下松市栄町2丁目
-
JR山陽本線下松
-
-
-

-
- 中古一戸建て
- 4,200万円
-
宇部市大字中野開作
-
JR宇部線宇部
-
-
-

-
- 中古一戸建て
- 480万円
-
岩国市玖珂町
-
JR岩徳線玖珂
-
-
-

-
- 中古一戸建て
- 4,550万円
-
宇部市中村1丁目
-
JR宇部線琴芝
-
-
-

-
- 中古一戸建て
- 2,200万円
-
防府市大字田島
-
JR山陽本線防府
-
-
-

-
- 中古一戸建て
- 1,598万円
-
山口市大内小京都
-
JR山口線山口
-
-
-

-
- 中古一戸建て
- 2,898万円
-
下松市中市1丁目
-
JR山陽本線下松
-
-
-

-
- 中古一戸建て
- 1,598万円
-
宇部市大字西岐波
-
JR宇部線床波
-
-
-

-
- 中古一戸建て
- 2,180万円
-
光市光井7丁目
-
JR山陽本線光
-
-
-

-
- 中古一戸建て
- 1,398万円
-
防府市新橋町
-
JR山陽本線防府
-


















