川口市三ツ和3丁目の中古戸建
掲載情報更新日:2026年04月17日 次回更新予定日:2026年05月01日
- 4,398万円
-
- 借入ご希望金額
万円 - 借入期間
年 - 借入金利
% - 月々のお支払い金額
円
- 借入ご希望金額
※ 月々のお支払例は目安の試算となりますので、実際の金額とは異なる場合がございます。詳しくは店舗までお問合わせください。
- 川口市三ツ和3丁目
-
埼玉高速鉄道『南鳩ヶ谷』 徒歩13分 (約1040m)
川口市三ツ和3丁目一戸建て | 物件情報
令和7年12月末リフォーム完了済みのオール電化住宅★間取り:4LDK、駐車スペース1台分完備♪
☆☆☆本日、ご案内可能です☆☆☆
◆令和7年12月末リフォーム完了済み!
◆南西向きのオール電化住宅♪
物件の設備
- オール電化
- 公営水道
- 公共下水
- IHクッキングヒータ
- システムキッチン
- バス
- 浴室乾燥機
- トイレ
- トイレ2箇所
- 室内洗濯機置場
- 洗面所独立
- フローリング張替
- クローゼット
- ウォークインクローゼット
- 床下収納
- 全居室収納
物件の特徴
- 内装リフォーム済
- 2階建
物件詳細情報
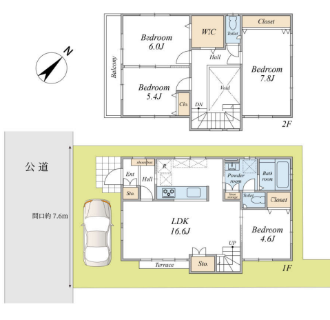
| 価格 | 4,398万円 | 間取り | 4LDK |
|---|---|---|---|
| 物件種別 | 中古一戸建て | ||
| 所在地 | 埼玉県川口市三ツ和3丁目 | ||
| アクセス |
|
||
| 建物面積 | 公98.94㎡ | 駐車場 | あり 普通:1台 |
| 築年月 | 2015年(平成27年)08月築 | ||
| 建物構造 | 木造 2階建 | 工法 | |
| 主要採光 | 南西向 | バルコニー | |
| 保証・評価 | |||
| リフォーム | 【水回り】2025年12月 キッチン・浴室・トイレ・洗面・給湯器 ・キッチン IHタイプ新規交換 ※食洗器付き ・洗面化粧台 新規交換 ・浴室 新規交換(浴室乾燥機付き) ・ヒートポンプ給湯器…370L 460Lタイプに新規交換 【内装】2025年12月 床 ・建具 ・クロス張替え ・1階フロア上貼り ・ドア取っ手交換 ・リペア・クリーニング ・床下防蟻処理 【共用】2025年12月 ・ポスト交換 ・車庫土間塗装 ・バルコニートップ塗装 |
||
| 土地面積 | 公100.14㎡(30.29坪) | 接道 | |
| 私道 | セットバック | ||
| 地目 | 宅地 | 地勢 | |
| 権利 | 所有権 |
||
| 都市計画 | 市街化区域 |
用途地域 | 1種住居 |
| 建ぺい/容積率 | 60% / 160% | 土地国土法 | |
| 許可番号 | 建築基準法 | ||
| 法令制限 | |||
| 小学区 | 中居小学校 徒歩6分 (約450m) | 中学区 | 八幡木中学校 徒歩7分 (約550m) |
| 現況 | 空 | 引渡 | 相談 |
| その他費用 | |||
| 周辺環境 | 谷中公園 徒歩2分 (約130m) ファミリーマート 川口南鳩ヶ谷一丁目店 徒歩3分 (約180m) 川口市立鳩ヶ谷スポーツセンター 徒歩3分 (約190m) ファミリーマート 鳩ヶ谷八幡木店 徒歩5分 (約390m) 川口市立八幡木中学校 徒歩7分 (約500m) 川口市立中居小学校 徒歩7分 (約500m) 業務スーパー 川口八幡木店 徒歩7分 (約500m) ジャパンミート 卸売市場 鳩ヶ谷店 徒歩8分 (約590m) サンドラッグ 川口赤井店 徒歩9分 (約650m) サミットストア 川口赤井店 徒歩8分 (約640m) |
||
| 備考 | |||
| 物件番号 | 4547240 | 取引態様 | 媒介 |
取扱店舗情報
ハウスドゥ 鳩ヶ谷坂下町 株式会社ウェルカムホーム 店舗詳細ページへ
| 電話番号 | 048-242-5180 |
|---|---|
| 所在地 | 〒334-0003 埼玉県川口市坂下町3丁目32-21 |
| 営業時間 | 9:00~18:00 |
| 定休日 | 火曜日、水曜日、年末年始 |
| 宅建免許番号 | 埼玉県知事(1)第25389号 |
| アクセス | 店舗への地図はこちら |

来店ご予約
埼玉県川口市で価格が似ている物件はこちら
- 埼玉県
マイページ物件数 - 3,219件
最近見た物件
-
-

-
- 新築一戸建て
- 2,280万円
-
福山市神辺町字下御領
-
井原鉄道御領
-
-
-

-
- 新築一戸建て
- 2,380万円
-
稲沢市祖父江町二俣上瀬古
-
名鉄尾西線森上
-
-
-

-
- 中古一戸建て
- 2,000万円
-
鹿児島市星ヶ峯3丁目
-
JR鹿児島本線広木
-
埼玉県中古一戸建て新着物件
-
-

-
- 中古一戸建て
- 7,380万円
-
川口市鳩ヶ谷本町2丁目
-
埼玉高速鉄道鳩ヶ谷駅
-
-
-

-
- 中古一戸建て
- 3,980万円
-
川口市大字安行領根岸
-
埼玉高速鉄道鳩ヶ谷駅
-
-
-

-
- 中古一戸建て
- 4,180万円
-
さいたま市緑区馬場2丁目
-
JR武蔵野線東浦和駅
-
-
-

-
- 中古一戸建て
- 4,280万円
-
さいたま市大宮区三橋4丁目
-
JR高崎線大宮駅
-
-
-

-
- 中古一戸建て
- 2,180万円
-
川口市大字安行慈林
-
埼玉高速鉄道新井宿駅
-
-
-

-
- 中古一戸建て
- 1,580万円
-
川口市鳩ヶ谷本町3丁目
-
埼玉高速鉄道鳩ヶ谷駅
-
-
-

-
- 中古一戸建て
- 3,980万円
-
川口市朝日1丁目
-
埼玉高速鉄道川口元郷駅
-
- お近くの店舗を探す
-
おすすめ物件
-
-

-
- 中古一戸建て
- 3,590万円
-
さいたま市大宮区三橋4丁目
-
JR京浜東北・根岸線大宮
-
-
-

-
- 中古一戸建て
- 6,690万円
-
さいたま市南区沼影1丁目
-
JR埼京線武蔵浦和
-
-
-

-
- 中古一戸建て
- 1,980万円
-
さいたま市南区大字大谷口
-
JR京浜東北・根岸線浦和
-
-
-

-
- 中古一戸建て
- 1,350万円
-
北葛飾郡松伏町田中3丁目
-
東武伊勢崎・大師線北越谷
-
-
-

-
- 中古一戸建て
- 680万円
-
さいたま市南区大字大谷口
-
JR京浜東北・根岸線浦和
-
-
-

-
- 中古一戸建て
- 2,399万円
-
さいたま市見沼区深作2丁目
-
東武野田線七里
-
-
-

-
- 中古一戸建て
- 1,640万円
-
北葛飾郡杉戸町大字堤根
-
東武伊勢崎・大師線北春日部
-
-
-

-
- 中古一戸建て
- 2,380万円
-
北葛飾郡松伏町大字松伏
-
東武伊勢崎・大師線北越谷
-
-
-

-
- 中古一戸建て
- 5,480万円
-
さいたま市北区日進町2丁目
-
JR川越線日進
-
-
-

-
- 中古一戸建て
- 3,480万円
-
上尾市大字原市
-
埼玉新都市交通沼南
-



担当エージェント:富重 隆文
お客様に「寄り添う」会社です。不動産の購入は金額も大きく、不安なことがたくさんあると思います。ぜひ、一度ご連絡ください。不動産に関するプロとして、お客様の課題に一つ一つ向き合っていきます。