星ヶ峯5丁目 中古戸建 3DK
掲載情報更新日:2026年05月11日 次回更新予定日:2026年05月25日
- 2,499万円
-
- 借入ご希望金額
万円 - 借入期間
年 - 借入金利
% - 月々のお支払い金額
円
- 借入ご希望金額
※ 月々のお支払例は目安の試算となりますので、実際の金額とは異なる場合がございます。詳しくは店舗までお問合わせください。
- 鹿児島市星ヶ峯5丁目
-
JR鹿児島本線『広木』 徒歩34分 (約2700m)
星ヶ峯5丁目 中古戸建 3DK一戸建て | 物件情報
物件の設備
- 上水道
- 下水道
- 浄水器
- システムキッチン
- バス1坪以上
- 温水洗浄便座
- エアコン
- 照明器具
- ダウンライト
- 火災警報器/報知機
- フローリング張替
- 庭
物件の特徴
- 内装リフォーム済
- 外装リフォーム済
- 内外装リフォーム済
- 南側道路面す
- 閑静な住宅街
- 整形地
- バリアフリー
物件詳細情報
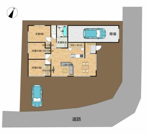
| 価格 | 2,499万円 | 間取り | 3DK |
|---|---|---|---|
| 物件種別 | 中古一戸建て | ||
| 所在地 | 鹿児島県鹿児島市星ヶ峯5丁目50 | ||
| アクセス |
|
||
| 建物面積 | 98㎡ | 駐車場 | あり 普通:3台 |
| 築年月 | 1991年(平成3年)10月築 | ||
| 建物構造 | RC 1階建 | 工法 | |
| 主要採光 | 南向 | バルコニー | |
| 保証・評価 | |||
| リフォーム | 【水回り】2026年03月 キッチン・浴室・トイレ・洗面・給湯器 【外装】2026年03月 外壁 ・屋根 【内装】2026年03月 全面 ・壁、天井 ・床 ・全室クロス ・建具 ・サッシ |
||
| 土地面積 | 公198.6㎡(60.07坪) | 接道 | 東側(公道)幅 約5.8m 南側(公道)幅 約5.8m |
| 私道 | セットバック | ||
| 地目 | 宅地 | 地勢 | 高台 |
| 権利 | 所有権 |
||
| 都市計画 | 市街化区域 |
用途地域 | 1種低層 |
| 建ぺい/容積率 | 50% / 80% | 土地国土法 | |
| 許可番号 | 建築基準法 | ||
| 法令制限 | |||
| 小学区 | 星峯西小学校 徒歩17分 (約1310m) | 中学区 | 星峯中学校 徒歩14分 (約1080m) |
| 現況 | 空 | 引渡 | 相談 |
| その他費用 | |||
| 周辺環境 | 鹿児島市立星峯西小学校 徒歩14分 (約1100m) 鹿児島市立星峯中学校 徒歩14分 (約1080m) 鹿児島星ヶ峯郵便局 徒歩15分 (約1160m) 南日本銀行 星ヶ峯支店 徒歩17分 (約1290m) セブン-イレブン 鹿児島星ケ峯店 徒歩19分 (約1460m) タイヨー 星ヶ峯店 徒歩17分 (約1350m) 広木駅 徒歩34分 (約2700m) ラッグセイムス 鹿児島皇徳寺店 徒歩43分 (約3430m) 春山台南公園 徒歩64分 (約5070m) 田上記念病院 徒歩81分 (約6410m) |
||
| 備考 | ■瑕疵保証(不動産会社独自)付 広木駅より車で7分ガス会社は売主の指定となります |
||
| 物件番号 | 4550836 | 取引態様 | 一般媒介 |
取扱店舗情報
ハウスドゥ 加治屋町 株式会社ハッピー不動産 店舗詳細ページへ
| 電話番号 | 099-801-3208 |
|---|---|
| 所在地 | 〒892-0846 鹿児島県鹿児島市加治屋町11-1大洋ビル1F |
| 営業時間 | 9:00~18:00 |
| 定休日 | 水曜日、年末年始 |
| 宅建免許番号 | 鹿児島県知事(1)第6595号 |
| アクセス | 店舗への地図はこちら |

来店ご予約
鹿児島県鹿児島市で価格が似ている物件はこちら
![]()
![]()
-
- 中古一戸建て 2007.11.17
-
-
- 2,480万円
-
鹿児島市伊敷1丁目
-
市営下伊敷バス停まで徒歩5分
- 3LDK
-
-
- 中古一戸建て 2014.02.18
-
-
- 2,480万円
-
鹿児島市若葉町
-
市営交通局北営業所前まで徒歩2分
- 5LDK+S
-
-
- 中古一戸建て 2017.07.14
-
-
- 2,580万円
-
鹿児島市田上4丁目
-
鹿交天神寺ノ下まで徒歩4分
- 2LDK
-
-
- 中古一戸建て 2017.10.25
-
-
- 2,480万円
-
鹿児島市玉里団地2丁目
-
JR九州新幹線「鹿児島中央駅」バス乗車21分 バス停「市営玉里団地東バス停」まで徒歩2分
- 4LDK
-
-
- 中古一戸建て 2019.03.19
-
-
- 2,499万円
-
鹿児島市皇徳寺台2丁目
-
JR鹿児島本線「広木駅」まで車6分
- 4LDK
-
-
- 中古一戸建て 2022.02.08
-
-
- 2,550万円
-
鹿児島市吉野町
-
南国駄馬落バス停まで徒歩4分
- 4LDK+S
-
-
- 中古一戸建て 2022.02.08
-
-
- 2,550万円
-
鹿児島市吉野町
-
南国駄馬落まで徒歩4分
- 4LDK
-
-
- 中古一戸建て 2022.11.19
-
-
- 2,580万円
-
鹿児島市下福元町
-
JR指宿枕崎線「坂之上駅」まで徒歩25分
- 3LDK
-
-
- 中古一戸建て 2022.11.19
-
-
- 2,580万円
-
鹿児島市下福元町
-
JR指宿枕崎線「坂之上駅」まで徒歩25分
- 3LDK
-
-
- 中古一戸建て 2022.11.20
-
-
- 2,480万円
-
鹿児島市中山2丁目
-
バス中山団地バス停まで徒歩12分
- 2LDK
-
-
- 中古一戸建て 2023.02.05
-
-
- 2,549万円
-
鹿児島市吉野町
-
南国菖蒲谷バス停まで徒歩12分
- 4LDK
-
-
- 中古一戸建て 2023.02.23
-
-
- 2,549万円
-
鹿児島市吉野町
-
南国菖蒲谷まで徒歩12分
- 4LDK
-
-
- 中古一戸建て 2023.05.31
-
-
- 2,500万円
-
鹿児島市桜ヶ丘7丁目
-
鹿交桜ヶ丘七丁目まで徒歩4分
-
-
- 中古一戸建て 2023.07.09
-
-
- 2,430万円
-
鹿児島市和田3丁目
-
JR指宿枕崎線「慈眼寺駅」まで徒歩22分
- 3LDK+S
-
-
- 中古一戸建て 2023.07.20
-
-
- 2,580万円
-
鹿児島市平川町
-
JR指宿枕崎線「五位野駅」まで徒歩5分
- 3LDK+S
-
-
- 中古一戸建て 2023.07.31
-
-
- 2,480万円
-
鹿児島市坂之上6丁目
-
JR指宿枕崎線「坂之上駅」まで徒歩18分
- 3LDK+S
-
-
- 中古一戸建て 2023.09.21
-
-
- 2,480万円
-
鹿児島市桜ヶ丘3丁目
-
バス 桜ヶ丘県営住宅前バス停まで徒歩1分
- 3LDK
-
-
- 中古一戸建て 2023.09.22
-
-
- 2,580万円
-
鹿児島市下伊敷3丁目
-
JR九州新幹線「鹿児島中央駅」まで車21分
- 4LDK+S
-
-
- 中古一戸建て 2023.09.22
-
-
- 2,580万円
-
鹿児島市下伊敷3丁目
-
JR九州新幹線「鹿児島中央駅」まで車20分
- 4LDK+S
-
-
- 中古一戸建て 2023.10.19
-
-
- 2,580万円
-
鹿児島市下伊敷3丁目
-
市営さつま団地入口バス停まで徒歩7分
- 4LDK
-
-
- 中古一戸建て 2023.10.19
-
-
- 2,580万円
-
鹿児島市下伊敷3丁目
-
市営 さつま団地入口バス停まで徒歩7分
- 4LDK
-
-
- 中古一戸建て 2023.11.09
-
-
- 2,580万円
-
鹿児島市千年1丁目
-
JR九州新幹線「鹿児島中央駅」まで車21分
- 4LDK
-
-
- 中古一戸建て 2024.03.20
-
-
- 2,580万円
-
鹿児島市千年1丁目
-
JR九州新幹線「鹿児島中央駅」まで車21分
- 4LDK
-
-
- 中古一戸建て 2024.05.10
-
-
- 2,580万円
-
鹿児島市吉野町
-
JR日豊本線「鹿児島駅」まで車15分
- 3LDK+S
-
-
- 中古一戸建て 2024.05.26
-
-
- 2,580万円
-
鹿児島市吉野町
-
南国帯迫まで徒歩2分
- 3LDK+S
-
-
- 中古一戸建て 2024.08.09
-
-
- 2,550万円
-
鹿児島市吉野町
-
南国三文字バス停まで徒歩11分
- 5LDK
-
-
- 中古一戸建て 2024.08.17
-
-
- 2,580万円
-
鹿児島市下伊敷3丁目
-
市電唐湊線「天文館通駅」バス乗車25分 バス停「さつま団地入口」まで徒歩7分
- 4LDK
-
-
- 中古一戸建て 2024.09.21
-
-
- 2,440万円
-
鹿児島市武岡2丁目
-
JR鹿児島本線「鹿児島中央駅」バス乗車20分 バス停「明和」まで徒歩4分
- 4LDK
-
-
- 中古一戸建て 2024.10.04
-
-
- 2,580万円
-
鹿児島市下伊敷3丁目
-
JR鹿児島本線「鹿児島中央駅」バス乗車36分 バス停「さつま団地入口」まで徒歩7分
- 4LDK
-
-
- 中古一戸建て 2024.12.08
-
-
- 2,590万円
-
鹿児島市皇徳寺台3丁目
-
鹿児島交通皇徳寺ロータリーまで徒歩2分
- 4LDK
-
-
- 中古一戸建て 2024.12.13
-
-
- 2,580万円
-
鹿児島市広木1丁目
-
JR鹿児島本線「広木駅」まで徒歩39分
- 3LDK
-
-
- 中古一戸建て 2024.12.17
-
-
- 2,590万円
-
鹿児島市皇徳寺台3丁目
-
鹿交皇徳寺ロータリーまで徒歩2分
- 4LDK
-
-
- 中古一戸建て 2024.12.22
-
-
- 2,530万円
-
鹿児島市草牟田2丁目
-
市営護国神社前バス停まで徒歩8分
- 3LDK
-
-
- 中古一戸建て 2025.01.05
-
-
- 2,530万円
-
鹿児島市草牟田2丁目
-
市営出会坂通まで徒歩6分
- 3LDK
-
-
- 中古一戸建て 2025.01.05
-
-
- 2,530万円
-
鹿児島市草牟田2丁目
-
市営中草牟田バス停まで徒歩7分
- 3LDK+S
-
-
- 中古一戸建て 2025.01.06
-
-
- 2,530万円
-
鹿児島市草牟田2丁目
-
護国神社前まで徒歩8分
- 3LDK+S
-
-
- 中古一戸建て 2025.01.23
-
-
- 2,560万円
-
鹿児島市城山町
-
市電唐湊線「市役所前駅」まで徒歩13分
- 4LDK
-
-
- 中古一戸建て 2025.01.27
-
-
- 2,580万円
-
鹿児島市広木1丁目
-
JR指宿枕崎線「宇宿駅」まで徒歩34分
- 3LDK+S
-
-
- 中古一戸建て 2025.01.28
-
-
- 2,580万円
-
鹿児島市広木1丁目
-
JR指宿枕崎線「宇宿駅」まで徒歩33分
- 3LDK
-
-
- 中古一戸建て 2025.02.18
-
-
- 2,498万円
-
鹿児島市池之上町
-
JR日豊本線「鹿児島駅」まで車7分
- 5LDK
-
-
- 中古一戸建て 2025.02.18
-
-
- 2,498万円
-
鹿児島市池之上町
-
JR鹿児島本線「鹿児島駅」まで徒歩18分
- 5LDK
-
-
- 中古一戸建て 2025.02.25
-
-
- 2,399万円
-
鹿児島市玉里団地1丁目
-
市営玉里団地1丁目西バス停まで徒歩1分
- 4LDK
-
-
- 中古一戸建て 2025.02.25
-
-
- 2,580万円
-
鹿児島市西伊敷1丁目
-
市営伊敷団地入口バス停まで徒歩2分
- 3LDK+S
-
-
- 中古一戸建て 2025.02.25
-
-
- 2,498万円
-
鹿児島市池之上町
-
南国玉龍高校前バス停まで徒歩4分
- 5LDK
-
-
- 中古一戸建て 2025.03.03
-
-
- 2,500万円
-
鹿児島市宮之浦町
-
南国吉田インター前バス停まで徒歩23分
- 7LDK+S
-
-
- 中古一戸建て 2025.03.11
-
-
- 2,399万円
-
鹿児島市玉里団地1丁目
-
市営玉里団地一丁目西バス停まで徒歩1分
- 4LDK
-
-
- 中古一戸建て 2025.03.13
-
-
- 2,399万円
-
鹿児島市玉里団地1丁目
-
JR日豊本線「鹿児島駅」まで徒歩49分
- 4LDK
-
-
- 中古一戸建て 2025.03.21
-
-
- 2,480万円
-
鹿児島市吉野1丁目
-
南国特別支援学校前バス停まで徒歩7分
- 3LDK+S
-
-
- 中古一戸建て 2025.03.21
-
-
- 2,480万円
-
鹿児島市吉野1丁目
-
南国特別支援学校前バス停まで徒歩7分
- 3LDK
-
-
- 中古一戸建て 2025.03.22
-
-
- 2,480万円
-
鹿児島市吉野1丁目
-
南国特別支援学校前まで徒歩7分
- 3LDK+S
-
-
- 中古一戸建て 2025.04.11
-
-
- 2,480万円
-
鹿児島市慈眼寺町
-
JR指宿枕崎線「慈眼寺駅」まで徒歩16分
- 3LDK
-
-
- 中古一戸建て 2025.04.28
-
-
- 2,430万円
-
鹿児島市川上町
-
南国みやこ迫まで徒歩5分
- 3LDK
-
-
- 中古一戸建て 2025.04.28
-
-
- 2,430万円
-
鹿児島市川上町
-
南国みやこ迫バス停まで徒歩4分
- 3LDK
-
-
- 中古一戸建て 2025.05.11
-
-
- 2,430万円
-
鹿児島市川上町
-
南国みやこ迫バス停まで徒歩4分
- 3DK
-
-
- 中古一戸建て 2025.06.17
-
-
- 2,549万円
-
鹿児島市星ヶ峯5丁目
-
鹿交星ヶ峯5丁目まで徒歩2分
- 3LDK
-
-
- 中古一戸建て 2025.06.17
-
-
- 2,549万円
-
鹿児島市星ヶ峯5丁目
-
JR鹿児島本線「広木駅」まで徒歩35分
- 3DK
-
-
- 中古一戸建て 2025.08.01
-
-
- 2,430万円
-
鹿児島市川上町
-
みやこ迫まで徒歩5分
- 3DK+S
-
-
- 中古一戸建て 2025.08.07
-
-
- 2,550万円
-
鹿児島市吉野町
-
東菖蒲谷まで徒歩10分
- 5LDK
-
-
- 中古一戸建て 2025.09.12
-
-
- 2,399万円
-
鹿児島市清和3丁目
-
JR指宿枕崎線「谷山駅」まで徒歩28分
- 3LDK
-
-
- 中古一戸建て 2025.09.26
-
-
- 2,430万円
-
鹿児島市川上町
-
【バス】みやこ迫バス停まで徒歩4分
- 3DK+S
-
-
- 中古一戸建て 2025.10.01
-
-
- 2,580万円
-
鹿児島市星ヶ峯6丁目
-
JR鹿児島本線「広木駅」まで徒歩21分
- 4LDK+S
-
-
- 中古一戸建て 2025.10.01
-
-
- 2,480万円
-
鹿児島市星ヶ峯6丁目
-
JR鹿児島本線「広木駅」まで徒歩21分
- 4LDK+S
-
-
- 中古一戸建て 2025.10.03
-
-
- 2,580万円
-
鹿児島市星ヶ峯6丁目
-
JR鹿児島本線「広木駅」まで徒歩20分
- 4LDK+S
-
-
- 中古一戸建て 2025.11.07
-
-
- 2,580万円
-
鹿児島市小松原1丁目
-
市電谷山線「笹貫駅」まで徒歩6分
- 4LDK
-
-
- 中古一戸建て 2025.11.10
-
-
- 2,585万円
-
鹿児島市明和1丁目
-
JR九州新幹線「鹿児島中央駅」まで車9分
- 2LDK
-
-
- 中古一戸建て 2025.11.10
-
-
- 2,585万円
-
鹿児島市明和1丁目
-
JR鹿児島本線「鹿児島中央駅」まで徒歩39分
- 2LDK
-
-
- 中古一戸建て 2025.11.21
-
-
- 2,450万円
-
鹿児島市吉野4丁目
-
南国特別支援学校前バス停まで徒歩4分
- 3LDK+S
-
-
- 中古一戸建て 2025.11.22
-
-
- 2,450万円
-
鹿児島市吉野4丁目
-
JR日豊本線「仙巌園駅」まで徒歩59分
- 3LDK+S
-
-
- 中古一戸建て 2025.12.24
-
-
- 2,400万円
-
鹿児島市西伊敷2丁目
-
市営伊敷団地入口バス停まで徒歩1分
- 4LDK
-
-
- 中古一戸建て 2025.12.25
-
-
- 2,400万円
-
鹿児島市西伊敷2丁目
-
鹿交伊敷団地入口バス停まで徒歩1分
- 4LDK
-
-
- 中古一戸建て 2025.12.25
-
-
- 2,400万円
-
鹿児島市西伊敷2丁目
-
伊敷団地入口まで徒歩1分
- 4LDK
-
-
- 中古一戸建て 2026.01.06
-
-
- 2,490万円
-
鹿児島市下伊敷3丁目
-
市営さつま団地入口バス停まで徒歩6分
- 5LDK
-
-
- 中古一戸建て 2026.01.06
-
-
- 2,490万円
-
鹿児島市下伊敷3丁目
-
市営さつま団地入口バス停まで徒歩6分
- 5LDK
-
-
- 中古一戸建て 2026.01.26
-
-
- 2,500万円
-
鹿児島市紫原3丁目
-
鹿交日之出町西まで徒歩5分
- 3DK+S
-
-
- 中古一戸建て 2026.01.27
-
-
- 2,500万円
-
鹿児島市紫原3丁目
-
鹿交日之出町西まで徒歩5分
- 3DK+S
-
-
- 中古一戸建て 2026.01.31
-
-
- 2,399万円
-
鹿児島市清和3丁目
-
JR指宿枕崎線「谷山駅」まで徒歩28分
- 3LDK
-
-
- 中古一戸建て 2026.02.13
-
-
- 2,480万円
-
鹿児島市桜ヶ丘6丁目
-
市電谷山線「笹貫駅」まで徒歩20分
- 4LDK+S
-
-
- 中古一戸建て 2026.02.13
-
-
- 2,480万円
-
鹿児島市桜ヶ丘6丁目
-
JR指宿枕崎線「宇宿駅」まで車4分
- 4LDK
-
-
- 中古一戸建て 2026.02.26
-
-
- 2,480万円
-
鹿児島市田上台2丁目
-
JR鹿児島本線「広木駅」まで徒歩29分
- 5DK
-
-
- 中古一戸建て 2026.03.05
-
-
- 2,480万円
-
鹿児島市大明丘3丁目
-
JR日豊本線「鹿児島駅」バス乗車12分 バス停「南国大明丘中央バス停」まで徒歩7分
- 3LDK
-
-
- 中古一戸建て 2026.03.05
-
-
- 2,480万円
-
鹿児島市大明丘3丁目
-
JR日豊本線「鹿児島駅」まで車10分
- 3LDK
-
-
- 中古一戸建て 2026.03.05
-
-
- 2,580万円
-
鹿児島市田上台3丁目
-
JR鹿児島本線「広木駅」まで車4分
- 4LDK
-
-
- 中古一戸建て 2026.03.06
-
-
- 2,499万円
-
鹿児島市星ヶ峯2丁目
-
JR鹿児島本線「広木駅」まで徒歩19分
- 3LDK
-
-
- 中古一戸建て 2026.03.06
-
-
- 2,499万円
-
鹿児島市星ヶ峯2丁目
-
JR鹿児島本線「広木駅」まで徒歩19分
- 4DK
-
-
- 中古一戸建て 2026.03.06
-
-
- 2,499万円
-
鹿児島市星ヶ峯2丁目
-
JR鹿児島本線「広木駅」まで徒歩14分
- 4DK
-
-
- 中古一戸建て 2026.03.17
-
-
- 2,580万円
-
鹿児島市喜入町
-
JR指宿枕崎線「喜入駅」まで徒歩12分
- 4LDK+S
-
-
- 中古一戸建て 2026.03.22
-
-
- 2,400万円
-
鹿児島市皇徳寺台3丁目
-
JR鹿児島本線「広木駅」まで徒歩45分
- 3LDK+S
-
-
- 中古一戸建て 2026.03.26
-
-
- 2,500万円
-
鹿児島市西田3丁目
-
JR鹿児島本線「鹿児島中央駅」まで徒歩13分
- 4DK
-
-
- 中古一戸建て 2026.03.27
-
-
- 2,580万円
-
鹿児島市喜入瀬々串町
-
鹿児島交通平川星和台バス停まで徒歩3分
- 4LDK
-
-
- 中古一戸建て 2026.03.28
-
-
- 2,599万円
-
鹿児島市東谷山1丁目
-
市電谷山線「笹貫駅」まで徒歩7分
- 3LDK+S
-
-
- 中古一戸建て 2026.03.28
-
-
- 2,599万円
-
鹿児島市東谷山1丁目
-
JR指宿枕崎線「宇宿駅」まで徒歩12分
- 3LDK
-
-
- 中古一戸建て 2026.03.31
-
-
- 2,480万円
-
鹿児島市若葉町
-
JR九州新幹線「鹿児島中央駅」バス乗車26分 バス停「市営交通局北営業所前バス停」まで徒歩2分
- 6LDK+S
-
-
- 中古一戸建て 2026.04.06
-
-
- 2,500万円
-
鹿児島市下福元町
-
JR指宿枕崎線「五位野駅」まで徒歩11分
- 5LDK
-
-
-
中古一戸建て
2026.04.28
-
-
- 2,599万円
-
鹿児島市東谷山1丁目
-
JR指宿枕崎線「宇宿駅」まで徒歩12分
- 3LDK
-
-
中古一戸建て
2026.04.28
-
-
中古一戸建て
2026.05.14
-
-
- 2,500万円
-
鹿児島市伊敷4丁目
-
伊敷四丁目まで徒歩2分
- 4LDK
-
-
中古一戸建て
2026.05.14
- 鹿児島県
マイページ物件数 - 5,816件
最近見た物件
-
-

-
- 中古マンション
- 1,450万円
-
名古屋市瑞穂区浮島町
-
名鉄常滑線豊田本町
-
-
-

-
- 中古マンション
- 1,990万円
-
静岡市葵区追手町
-
静岡鉄道静岡清水線新静岡
-
-
-

-
- 中古マンション
- 2,480万円
-
鹿児島市与次郎2丁目
-
市電谷山線涙橋
-
鹿児島県中古一戸建て新着物件
- お近くの店舗を探す
-
おすすめ物件
-
-

-
- 中古一戸建て
- 1,599万円
-
鹿児島市田上台1丁目
-
JR指宿枕崎線郡元
-
-
-

-
- 中古一戸建て
- 480万円
-
鹿児島市吉野町
-
天神ヶ瀬戸
-
-
-

-
- 中古一戸建て
- 3,680万円
-
鹿児島市坂元町
-
南国商業高校入口
-
-
-

-
- 中古一戸建て
- 2,580万円
-
鹿児島市下伊敷3丁目
-
市営 さつま団地入口バス停
-
-
-

-
- 中古一戸建て
- 2,599万円
-
鹿児島市東谷山1丁目
-
市電谷山線笹貫
-
-
-

-
- 中古一戸建て
- 2,090万円
-
鹿児島市大明丘3丁目
-
南国大明丘中央バス停
-
-
-

-
- 中古一戸建て
- 1,980万円
-
鹿児島市吉野1丁目
-
南国特別支援学校前バス停
-
-
-

-
- 中古一戸建て
- 890万円
-
鹿児島市東坂元4丁目
-
南国辻ヶ丘団地バス停
-
-
-

-
- 中古一戸建て
- 2,320万円
-
鹿児島市皇徳寺台4丁目
-
JR鹿児島本線広木
-
-
-

-
- 中古一戸建て
- 3,980万円
-
鹿児島市吉野町
-
南国帯迫バス停
-













担当エージェント:後迫 隆伸
鹿児島市を拠点に、豊富な情報量を活かした物件提案を得意としています。地域に根差したネットワークで、お客様一人ひとりの理想に合わせた新築戸建てやリノベーション物件をご紹介。購入だけでなく、住まい選び全般を全力でサポートします。
住宅ローンについても、ネット銀行の低金利プランから地元の地銀まで幅広い選択肢を揃え、審査が不安な方には事前準備から審査通過への対策まで、細やかにお手伝い。さらに、団体信用生命保険(団信)の審査にも対応し、健康状態に不安のある方への適切なアドバイスを行います。お客様の「安心」と「満足」を第一に、住まいの購入を全力でサポートします。まずはお気軽にご相談ください!