東大阪市金岡2丁目中古戸建
掲載情報更新日:2026年05月14日 次回更新予定日:2026年05月28日
- 2,080万円
-
- 借入ご希望金額
万円 - 借入期間
年 - 借入金利
% - 月々のお支払い金額
円
- 借入ご希望金額
※ 月々のお支払例は目安の試算となりますので、実際の金額とは異なる場合がございます。詳しくは店舗までお問合わせください。
- 東大阪市金岡2丁目
-
近鉄大阪線『弥刀』 徒歩4分 (約320m)
近鉄大阪線『久宝寺口』 徒歩11分 (約850m)
東大阪市金岡2丁目中古戸建一戸建て | 物件情報
リフォーム済の物件♪
■近鉄大阪線【弥刀駅】徒歩約4分♪
■スーパーサンコーまで徒歩1分♪
■全室6帖以上♪
■全室収納あり♪
■床下収納あり♪
■和室2部屋♪
■小学校・中学校徒歩10分圏内♪
〇リフォーム内容〇
・クロス全室張替・障子張替・畳替え
物件の設備
- 電気
- 公営水道
- 下水道
- 都市ガス
- システムキッチン
- バス
- トイレ
- 室内洗濯機置場
- 洗面所独立
- モニタ付インターホン
- 和室
- 全居室6畳以上
- フローリング
- 床下収納
- 全居室収納
物件の特徴
- 駅まで平坦
- 小学校徒歩10分以内
- 整備された歩道
- 緑豊かな住宅地
- スーパーが近い
- 閑静な住宅街
- 通風良好
- 陽当り良好
- 2階建
- 平坦地
- 即入居可
物件詳細情報
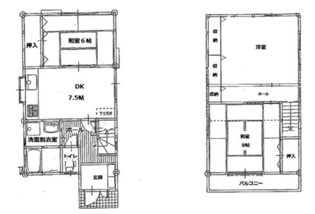
| 価格 | 2,080万円 | 間取り | 3DK |
|---|---|---|---|
| 物件種別 | 中古一戸建て | ||
| 所在地 | 大阪府東大阪市金岡2丁目 | ||
| アクセス |
|
||
| 建物面積 | 74.52㎡ | 駐車場 | なし |
| 築年月 | 2002年(平成14年)11月築 | ||
| 建物構造 | 木造 2階建 | 工法 | |
| 主要採光 | バルコニー | ||
| 保証・評価 | |||
| リフォーム | |||
| 土地面積 | 61.88㎡(18.71坪) | 接道 | |
| 私道 | セットバック | ||
| 地目 | 宅地 | 地勢 | |
| 権利 | 所有権 |
||
| 都市計画 | 市街化区域 |
用途地域 | 1種住居 |
| 建ぺい/容積率 | 60% / 200% | 土地国土法 | |
| 許可番号 | 建築基準法 | ||
| 法令制限 | 準防火地域 | ||
| 小学区 | 長瀬東小学校 徒歩3分 (約220m) | 中学区 | 金岡中学校 徒歩6分 (約450m) |
| 現況 | 空 | 引渡 | 即 |
| その他費用 | |||
| 周辺環境 | 東大阪市立長瀬東小学校 徒歩5分 (約390m) 東大阪市立金岡中学校 徒歩7分 (約560m) ファミリーマート 薬ヒグチ弥刀駅前店 徒歩4分 (約250m) スーパーサンコー 弥刀店 徒歩2分 (約110m) ヒグチ薬店チェーン弥刀駅前店 徒歩4分 (約250m) 助永医院 徒歩6分 (約480m) 東大阪金岡郵便局 徒歩3分 (約200m) 関西みらい銀行 弥刀支店 徒歩3分 (約170m) 若草保育園 徒歩2分 (約90m) 大蓮公園 徒歩4分 (約320m) |
||
| 備考 | |||
| 物件番号 | 4554500 | 取引態様 | 媒介 |
取扱店舗情報
| 電話番号 | 072-973-6177 |
|---|---|
| 所在地 | 〒581-0801 大阪府八尾市山城町2丁目1-28 山城ビル1F |
| 営業時間 | 9:00~18:00 |
| 定休日 | 水曜日、年末年始 |
| 宅建免許番号 | 大阪府知事(1)第64057号 |
| アクセス | 店舗への地図はこちら |

来店ご予約
大阪府東大阪市で価格が似ている物件はこちら
- 大阪府
マイページ物件数 - 19,081件
最近見た物件
-
-

-
- 新築一戸建て
- 3,680万円
-
御殿場市御殿場
-
JR御殿場線御殿場
-
-
-

-
- 中古マンション
- 1,980万円
-
吹田市南金田2丁目
-
大阪市御堂筋線江坂
-
-
-

-
- 中古一戸建て
- 1,980万円
-
宮崎市佐土原町下那珂
-
JR日豊本線佐土原
-
大阪府中古一戸建て新着物件
-
-

-
- 中古一戸建て
- 3,800万円
-
守口市八雲北町2丁目
-
大阪市谷町線守口駅
-
-
-

-
- 中古一戸建て
- 1,880万円
-
八尾市老原1丁目
-
JR関西本線八尾駅
-
-
-

-
- 中古一戸建て
- 5,980万円
-
大阪市阿倍野区播磨町1丁目
-
大阪市御堂筋線西田辺駅
-
-
-

-
- 中古一戸建て
- 1,580万円
-
東大阪市加納1丁目
-
JR片町線住道駅
-
-
-

-
- 中古一戸建て
- 2,980万円
-
大阪市淀川区西三国3丁目
-
阪急電鉄宝塚線三国駅
-
-
-

-
- 中古一戸建て
- 2,480万円
-
岸和田市岡山町
-
JR阪和線久米田駅
-
-
-

-
- 中古一戸建て
- 450万円
-
泉南市岡田6丁目
-
南海電鉄本線岡田浦駅
-
- お近くの店舗を探す
-
おすすめ物件
-
-

-
- 中古一戸建て
- 5,480万円
-
高槻市富田丘町
-
阪急電鉄京都線富田
-
-
-

-
- 中古一戸建て
- 4,880万円
-
高槻市北昭和台町
-
阪急電鉄京都線総持寺
-
-
-

-
- 中古一戸建て
- 2,180万円
-
東大阪市稲田本町1丁目
-
JR片町線徳庵
-
-
-

-
- 中古一戸建て
- 2,680万円
-
八尾市高美町3丁目
-
JR関西本線八尾
-
-
-

-
- 中古一戸建て
- 4,580万円
-
大阪市住之江区住之江1丁目
-
南海電鉄本線住ノ江
-
-
-

-
- 中古一戸建て
- 3,780万円
-
高槻市富田町6丁目
-
阪急電鉄京都線総持寺
-
-
-

-
- 中古一戸建て
- 2,980万円
-
大阪市福島区海老江3丁目
-
JR大阪環状線福島
-
-
-

-
- 中古一戸建て
- 2,990万円
-
大阪市住吉区万代5丁目
-
南海電鉄高野線住吉東
-
-
-

-
- 中古一戸建て
- 2,580万円
-
泉大津市春日町
-
南海電鉄本線泉大津
-
-
-

-
- 中古一戸建て
- 4,280万円
-
大阪市住吉区万代東2丁目
-
大阪市御堂筋線西田辺
-























担当エージェント:桑原 良太
弊社は不動産売買専門の仲介会社とし、全国700店舗展開中のハウスドゥ近鉄八尾北でございます。
購入・売却に関する様々なご相談承っております。
弊社は他社様が掲載されている物件でもご紹介可能です。お気軽にご相談くださいませ。