船橋2丁目 中古戸建
NEW 01.16掲載情報更新日:2026年01月16日 次回更新予定日:2026年01月30日
- 4,980万円
-
- 借入ご希望金額
万円 - 借入期間
年 - 借入金利
% - 月々のお支払い金額
円
- 借入ご希望金額
※ 月々のお支払例は目安の試算となりますので、実際の金額とは異なる場合がございます。詳しくは店舗までお問合わせください。
- 世田谷区船橋2丁目
-
小田急小田原線『千歳船橋』 徒歩14分 (約1120m)
船橋2丁目 中古戸建一戸建て | 物件情報
■子育てに最適な住環境♪ ■地下1階付2階建 2LDK+ビルトインガレージ
《Access》
・小田急線「千歳船橋駅」歩14分
《Point》
・閑静な住宅街の緑豊かな住環境
・保育園・小・中学校徒歩5分 子育てに最適な環境です
・平成4年1月築 木・鉄筋コンクリート造
・ビルトインガレージ付
・洋室と和室どちらも楽しめます♪
・LDK3面採光・各居室2面採光 日当たり・通風良好♪
■お気軽にお問い合わせください♪
物件の設備
- 電気
- 公営水道
- 公共下水
- 都市ガス
- 給湯
- コンロ三口
- グリル
- ガスコンロ付
- システムキッチン
- バス
- オートバス
- 追焚機能
- 浴室暖房
- 浴室乾燥機
- 浴室に窓
- 温水洗浄便座
- 室内洗濯機置場
- 洗面所独立
- リビング階段
- モニタ付インターホン
- 火災警報器/報知機
- 和室
- 2面採光
- 3面採光
- 全室2面採光
- 出窓
- フローリング
- 一部フローリング
- シャッター雨戸
- 24時間換気システム
- クローゼット
- クローゼット3箇所
- シューズボックス
- 庭
物件の特徴
- 耐震構造
- 総合病院徒歩10分以内
- 小学校徒歩10分以内
- 前道6m以上
- 緑豊かな住宅地
- 閑静な住宅街
- 周辺交通量少なめ
- 市街地が近い
- 都市近郊
- 眺望良好
- 通風良好
- 陽当り良好
- 2階建
- 平坦地
物件詳細情報
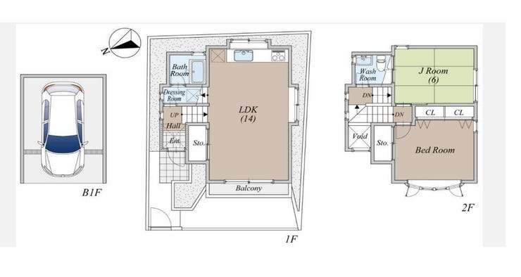
| 価格 | 4,980万円 | 間取り | 2LDK |
|---|---|---|---|
| 物件種別 | 中古一戸建て | ||
| 所在地 | 東京都世田谷区船橋2丁目 | ||
| アクセス |
|
||
| 建物面積 | 公97.86㎡ | 駐車場 | あり 普通:1台 |
| 築年月 | 1992年(平成4年)01月築 | ||
| 建物構造 | 木造 (一部 RC ) 2階建 地下1階 | 工法 | |
| 主要採光 | 西向 | バルコニー | |
| 保証・評価 | |||
| リフォーム | |||
| 土地面積 | 公66.12㎡(20坪) | 接道 | 西側(公道)幅 約6.0m |
| 私道 | セットバック | ||
| 地目 | 宅地 | 地勢 | 平坦 |
| 権利 | 所有権 |
||
| 都市計画 | 市街化区域 |
用途地域 | 1種低層 |
| 建ぺい/容積率 | 50% / 100% | 土地国土法 | |
| 許可番号 | 建築基準法 | ||
| 法令制限 | |||
| 小学区 | 船橋小学校 徒歩3分 (約170m) | 中学区 | 船橋希望中学校 徒歩5分 (約370m) |
| 現況 | 空 | 引渡 | 相談 |
| その他費用 | |||
| 周辺環境 | 世田谷区立船橋小学校 徒歩3分 (約170m) 成城警察署 徒歩4分 (約270m) 区立船橋二丁目公園 徒歩4分 (約270m) ユニクロ世田谷千歳台店 徒歩5分 (約330m) 千歳なないろ保育園 徒歩5分 (約360m) 船橋希望中学校 徒歩5分 (約370m) 社会福祉法人東京有隣会有隣病院 徒歩6分 (約480m) セブンイレブン(千歳台二丁目) 徒歩7分 (約540m) クリエイトエス・ディー世田谷船橋店 徒歩10分 (約730m) ビッグ・エー世田谷船橋店 徒歩13分 (約990m) |
||
| 備考 | |||
| 物件番号 | 4556236 | 取引態様 | 媒介 |
取扱店舗情報
ハウスドゥ 千歳船橋 R2-CONNECT株式会社 店舗詳細ページへ
| 電話番号 | 03-5799-7621 |
|---|---|
| 所在地 | 〒156-0054 東京都世田谷区桜丘5丁目47-19 |
| 営業時間 | 9:00~19:00 |
| 定休日 | 火曜日、水曜日 |
| 宅建免許番号 | 東京都知事(1)第107079号 |
| アクセス | 店舗への地図はこちら |

来店ご予約
東京都世田谷区で価格が似ている物件はこちら
- 東京都
マイページ物件数 - 5,052件
東京都中古一戸建て新着物件
- お近くの店舗を探す
-
おすすめ物件
-
-

-
- 中古一戸建て
- 4,780万円
-
国分寺市光町3丁目
-
JR中央本線国立
-
-
-

-
- 中古一戸建て
- 4,280万円
-
青梅市滝ノ上町
-
JR青梅線青梅
-
-
-

-
- 中古一戸建て
- 999万円
-
青梅市師岡町2丁目
-
JR青梅線河辺
-
-
-

-
- 中古一戸建て
- 5,980万円
-
大田区大森西4丁目
-
京急本線大森町
-
-
-

-
- 中古一戸建て
- 2,200万円
-
足立区東六月町
-
東武伊勢崎・大師線竹ノ塚
-
-
-

-
- 中古一戸建て
- 3,870万円
-
足立区本木1丁目
-
日暮里舎人ライナー扇大橋
-
-
-

-
- 中古一戸建て
- 2,480万円
-
東久留米市南町4丁目
-
西武池袋・豊島線ひばりケ丘
-
-
-

-
- 中古一戸建て
- 3,680万円
-
葛飾区西水元1丁目
-
JR千代田・常磐緩行線亀有
-
-
-

-
- 中古一戸建て
- 1,580万円
-
青梅市畑中1丁目
-
JR青梅線青梅
-
-
-

-
- 中古一戸建て
- 700万円
-
青梅市大門1丁目
-
JR青梅線東青梅
-











◆弊社近く♪内見希望賜ります◆
◆生活同線の整う周辺環境もあわせてご案内いたします♪
◆リフォームのご相談も承ります♪