枚方市東香里元町の中古戸建
掲載情報更新日:2026年04月02日 次回更新予定日:2026年04月16日
- 1,680万円
-
- 借入ご希望金額
万円 - 借入期間
年 - 借入金利
% - 月々のお支払い金額
円
- 借入ご希望金額
※ 月々のお支払例は目安の試算となりますので、実際の金額とは異なる場合がございます。詳しくは店舗までお問合わせください。
- 枚方市東香里元町
-
京阪本線『香里園』 バス乗車7分 東香里 停 徒歩3分 (約240m)
京阪本線『枚方市』 バス乗車18分 東香里 停 徒歩3分 (約240m)
京阪本線『香里園』 徒歩34分 (約2720m)
枚方市東香里元町一戸建て | 物件情報
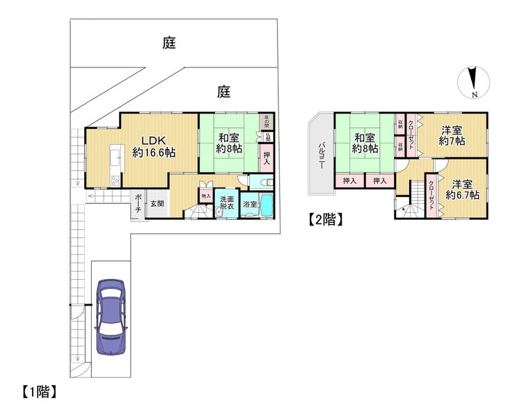
■間取り4LDKのファミリータイプ♪ ■ハイルーフ車1台駐車可能♪ ■室内リフォーム歴ございます♪
■間取り4LDKのファミリータイプです♪
■ハイルーフ車1台駐車可能です♪
■全居室が6帖以上で収納付きです♪
■南側に庭があり、家庭菜園などできます♪
■室内リフォーム歴ございます♪
【リフォーム履歴】
■2022年4月頃:ガスコンロ新調、換気扇新調、クロス一部貼替、門扉新調♪
■2021年7月頃:トイレ、洗面化粧台新調♪
■周辺環境施設■
【スーパー】 スーパーストアナカガワ東香里店:徒歩7分
【コンビニ】 ファミリーマートナラ本高田店:徒歩8分
【ドラッグストア】 ココカラファイン東香里店:徒歩9分
【中学校】 枚方市立東香里中学校:徒歩5分
【小学校】 枚方市立東香里小学校:徒歩11分
物件の設備
- 電気
- 上水道
- 公営水道
- 下水道
- 公共下水
- 都市ガス
- カウンターキッチン
- システムキッチン
- 追焚機能
- 浴室に窓
- 温水洗浄便座
- モニタ付インターホン
- LDK15畳以上
- 和室
- 全居室6畳以上
- 床下収納
- 全居室収納
- 庭
- ハイルーフ駐車可能
物件の特徴
- 内装リフォーム済
- 2沿線利用可
- 3沿線以上利用可
- 総合病院徒歩10分以内
- 閑静な住宅街
- 2階建
- 即入居可
物件詳細情報
| 価格 | 1,680万円 | 間取り | 4LDK |
|---|---|---|---|
| 物件種別 | 中古一戸建て | ||
| 所在地 | 大阪府枚方市東香里元町 28-1 | ||
| アクセス |
|
||
| 建物面積 | 112.77㎡ | 駐車場 | あり 普通:1台 |
| 築年月 | 1996年(平成8年)11月築 | ||
| 建物構造 | 木造 2階建 | 工法 | |
| 主要採光 | バルコニー | ||
| 保証・評価 | |||
| リフォーム | 【水回り】2021年07月 トイレ・洗面 |
||
| 土地面積 | 公224.54㎡(67.92坪) | 接道 | 北側(公道)幅 約4.7m 間口 約4.60m |
| 私道 | セットバック | ||
| 地目 | 宅地 | 地勢 | |
| 権利 | 所有権 |
||
| 都市計画 | 市街化区域 |
用途地域 | 1種低層 |
| 建ぺい/容積率 | 50% / 100% | 土地国土法 | |
| 許可番号 | 建築基準法 | ||
| 法令制限 | |||
| 小学区 | 東香里小学校 徒歩11分 (約850m) | 中学区 | 東香里中学校 徒歩5分 (約350m) |
| 現況 | 空 | 引渡 | 即 |
| その他費用 | |||
| 周辺環境 | スーパーストアナカガワ東香里店 徒歩7分 (約500m) | ||
| 備考 | 【リフォーム履歴】 ★2022年4月頃:ガスコンロ新調、換気扇新調、クロス一部貼替、門扉新調など♪ ★2021年7月頃:トイレ、洗面化粧台新調♪ ■各居室収納スペースがあり、各居室6.5帖以上の広々4LDK♪ ■お庭もあり家庭菜園などもできます♪ ※売主の契約不適合責任免責。 ※売主の設備の補修義務免責。 |
||
| 物件番号 | 4559174 | 取引態様 | 専属専任媒介 |
取扱店舗情報
ハウスドゥ 津田 株式会社Neo不動産販売 店舗詳細ページへ
| 電話番号 | 072-808-9032 |
|---|---|
| 所在地 | 〒573-0126 大阪府枚方市津田西町3丁目1-3 |
| 営業時間 | 10:00~20:00 |
| 定休日 | 水曜日 |
| 宅建免許番号 | 大阪府知事(2)第61431号 |
| アクセス | 店舗への地図はこちら |

来店ご予約
大阪府枚方市で価格が似ている物件はこちら
- 大阪府
マイページ物件数 - 18,185件
最近見た物件
-
-

-
- 土地
- 1,560万円
-
宇都宮市駒生町
-
東武宇都宮線東武宇都宮
-
-
-

-
- 新築一戸建て
- 3,899万円
-
名古屋市南区神松町2丁目
-
名鉄常滑線大同町
-
-
-

-
- 中古一戸建て
- 3,450万円
-
さいたま市北区本郷町
-
JR東北本線土呂
-
大阪府中古一戸建て新着物件
-
-

-
- 中古一戸建て
- 2,280万円
-
松原市立部3丁目
-
近鉄南大阪線恵我ノ荘駅
-
-
-

-
- 中古一戸建て
- 1億円
-
吹田市竹見台2丁目
-
北大阪急行南北線桃山台駅
-
-
-

-
- 中古一戸建て
- 1,480万円
-
守口市大宮通3丁目
-
京阪本線西三荘駅
-
-
-

-
- 中古一戸建て
- 998万円
-
八尾市上尾町1丁目
-
近鉄大阪線河内山本駅
-
-
-

-
- 中古一戸建て
- 2,780万円
-
東大阪市岩田町6丁目
-
近鉄難波・奈良線若江岩田駅
-
-
-

-
- 中古一戸建て
- 2,680万円
-
堺市堺区旭通
-
阪堺電気軌道阪堺線御陵前駅
-
-
-

-
- 中古一戸建て
- 1,080万円
-
東大阪市若江東町1丁目
-
近鉄難波・奈良線若江岩田駅
-
- お近くの店舗を探す
-
おすすめ物件
-
-

-
- 中古一戸建て
- 3,380万円
-
泉大津市曽根町2丁目
-
南海電鉄本線松ノ浜
-
-
-

-
- 中古一戸建て
- 2,480万円
-
高槻市緑が丘2丁目
-
JR東海道線高槻
-
-
-

-
- 中古一戸建て
- 680万円
-
摂津市鳥飼上3丁目
-
大阪モノレール南摂津
-
-
-

-
- 中古一戸建て
- 2,480万円
-
高槻市大塚町4丁目
-
阪急電鉄京都線高槻市
-
-
-

-
- 中古一戸建て
- 2,980万円
-
大阪市平野区平野東3丁目
-
大阪市谷町線平野
-
-
-

-
- 中古一戸建て
- 4,770万円
-
茨木市総持寺1丁目
-
阪急電鉄京都線総持寺
-
-
-

-
- 中古一戸建て
- 4,680万円
-
大阪市住吉区遠里小野6丁目
-
南海電鉄高野線我孫子前
-
-
-

-
- 中古一戸建て
- 2,180万円
-
大阪市住吉区長居2丁目
-
JR阪和線長居
-
-
-

-
- 中古一戸建て
- 3,550万円
-
高槻市富田町6丁目
-
阪急電鉄京都線総持寺
-
-
-

-
- 中古一戸建て
- 1,600万円
-
八尾市垣内4丁目
-
近鉄信貴線信貴山口
-



















