宇都宮市中今泉3丁目の中古戸建
掲載情報更新日:2026年04月06日 次回更新予定日:2026年04月20日
- 3,180万円
-
- 借入ご希望金額
万円 - 借入期間
年 - 借入金利
% - 月々のお支払い金額
円
- 借入ご希望金額
※ 月々のお支払例は目安の試算となりますので、実際の金額とは異なる場合がございます。詳しくは店舗までお問合わせください。
- 宇都宮市中今泉3丁目
-
宇都宮芳賀ライト線『駅東公園前』 徒歩19分 (約1520m)
宇都宮市中今泉3丁目一戸建て | 物件情報
物件の設備
- 電気
- 上水道
- 公営水道
- 下水道
- 公共下水
- 都市ガス
- 給湯
- IHクッキングヒータ
- システムキッチン
- オートバス
- バス1坪以上
- 追焚機能
- トイレ
- 室内洗濯機置場
- 全室エアコン
- 照明器具
- モニタ付インターホン
- 火災警報器/報知機
- 和室
- クローゼット
- シューズボックス
- バルコニー
- 南面バルコニー
- 南庭
物件の特徴
- 内装リフォーム済
- 南向
- 前道6m以上
- スーパーが近い
- 市街地が近い
- 2階建
- 平坦地
物件詳細情報
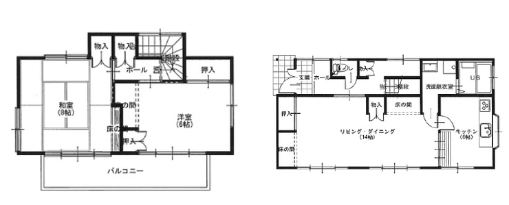
| 価格 | 3,180万円 | 間取り | 2LDK |
|---|---|---|---|
| 物件種別 | 中古一戸建て | ||
| 所在地 | 栃木県宇都宮市中今泉3丁目 | ||
| アクセス |
|
||
| 建物面積 | 公91.08㎡ | 駐車場 | あり 普通:3台 |
| 築年月 | 1980年(昭和55年)12月築 | ||
| 建物構造 | 木造 2階建 | 工法 | |
| 主要採光 | 南向 | バルコニー | |
| 保証・評価 | |||
| リフォーム | 【水回り】2025年10月 浴室・トイレ・洗面 【内装】2025年10月 壁、天井 ・全室クロス 【その他】2025年10月 駐車場拡張工事、バルコニー屋根張替え、既存縁側撤去、バルコニー鉄骨部分・建物木部分塗装 |
||
| 土地面積 | 公171.95㎡(52.01坪) | 接道 | 南西側(公道)幅 約6.0m |
| 私道 | セットバック | ||
| 地目 | 宅地 | 地勢 | |
| 権利 | 所有権 |
||
| 都市計画 | 市街化区域 |
用途地域 | 1種住居 |
| 建ぺい/容積率 | 60% / 200% | 土地国土法 | |
| 許可番号 | 建築基準法 | ||
| 法令制限 | 景観法・宅地造成工事規制区域・法22条区域・法23条区域 | ||
| 小学区 | 錦小学校 徒歩23分 (約1800m) | 中学区 | 陽北中学校 徒歩15分 (約1200m) |
| 現況 | 空 | 引渡 | 相談 |
| その他費用 | |||
| 備考 | |||
| 物件番号 | 4559894 | 取引態様 | 媒介 |
取扱店舗情報
| 電話番号 | 028-678-2888 |
|---|---|
| 所在地 | 〒320-0826 栃木県宇都宮市西原町466-1 |
| 営業時間 | 10:00~18:30 |
| 定休日 | 火曜日・水曜日 |
| 宅建免許番号 | 栃木県知事(2)第5075号 |
| アクセス | 店舗への地図はこちら |

来店ご予約
栃木県宇都宮市で価格が似ている物件はこちら
- 栃木県
マイページ物件数 - 5,241件
栃木県中古一戸建て新着物件
-
-

-
- 中古一戸建て
- 1,280万円
-
下野市上大領
-
JR東北本線石橋駅
-
-
-

-
- 中古一戸建て
- 560万円
-
栃木市大平町新
-
東武日光線新大平下駅
-
-
-

-
- 中古一戸建て
- 2,580万円
-
下野市緑6丁目
-
JR東北本線自治医大駅
-
-
-

-
- 中古一戸建て
- 1,100万円
-
那須郡那須町大字高久乙
-
JR東北本線黒田原駅
-
-
-

-
- 中古一戸建て
- 2,500万円
-
宇都宮市若松原3丁目
-
JR東北本線雀宮駅
-
-
-

-
- 中古一戸建て
- 1,499万円
-
下都賀郡壬生町落合2丁目
-
東武宇都宮線国谷駅
-
-
-

-
- 中古一戸建て
- 2,199万円
-
下都賀郡壬生町大字壬生丁
-
東武宇都宮線国谷駅
-
- お近くの店舗を探す
-
おすすめ物件
-
-

-
- 中古一戸建て
- 6,280万円
-
宇都宮市山本3丁目
-
関東バス【青葉台】
-
-
-

-
- 中古一戸建て
- 2,799万円
-
宇都宮市簗瀬3丁目
-
JR東北本線宇都宮
-
-
-

-
- 中古一戸建て
- 1,798万円
-
宇都宮市鶴田町
-
JR日光線鶴田
-
-
-

-
- 中古一戸建て
- 3,250万円
-
宇都宮市簗瀬町
-
JR東北新幹線宇都宮
-
-
-

-
- 中古一戸建て
- 2,980万円
-
日光市芹沼
-
東武日光線下今市
-
-
-

-
- 中古一戸建て
- 3,280万円
-
宇都宮市西刑部町
-
関東バス【中央橋】
-
-
-

-
- 中古一戸建て
- 2,780万円
-
宇都宮市石井町
-
宇都宮芳賀ライト線平石中央小学校前
-
-
-

-
- 中古一戸建て
- 2,780万円
-
芳賀郡益子町大字七井
-
真岡鉄道多田羅
-
-
-

-
- 中古一戸建て
- 990万円
-
宇都宮市氷室町
-
清原さきがけ号【光ケ丘公民館前】
-
-
-

-
- 中古一戸建て
- 720万円
-
下都賀郡壬生町落合1丁目
-
東武宇都宮線国谷
-





