宮崎市大塚町地蔵田の中古戸建
NEW 01.20掲載情報更新日:2026年01月19日 次回更新予定日:2026年02月02日
- 4,200万円
-
- 借入ご希望金額
万円 - 借入期間
年 - 借入金利
% - 月々のお支払い金額
円
- 借入ご希望金額
※ 月々のお支払例は目安の試算となりますので、実際の金額とは異なる場合がございます。詳しくは店舗までお問合わせください。
- 宮崎市大塚町地蔵田
-
JR日豊本線『南宮崎』 徒歩43分 (約3440m)
JR日豊本線『宮崎』 徒歩51分 (約4060m)
JR日豊本線『宮崎神宮』 徒歩72分 (約5690m)
『地蔵田バス停』 徒歩3分 (約180m)
宮崎市大塚町地蔵田一戸建て | 物件情報
\2022年築/《全館空調システム搭載です♪》お気軽にお問い合わせください♪
▼オススメポイント
◎駐車場3台可
◎オール電化で経済的♪
◎収納に便利なウォークインクローゼットあり
▼立地
◎江南小学校…徒歩13分(990m)
◎大塚中学校…徒歩21分(1610m)
◆◇当店について◇◆
〇不動産売買仲介専門FCで
店舗数第1位のハウスドゥ加盟店です
安心してご相談ください
■弊社サービスご案内
〇資金計画の無料相談
〇ハウスメーカー・工務店のご紹介
〇オプション、リフォーム、太陽光発電
のお見積もりから施工まで
〇保険の加入や引越しの段取り
物件の設備
- 電気
- オール電化
- 上水道
- 下水道
- 側溝
- IHクッキングヒータ
- カウンターキッチン
- バス
- ユニットバス
- 追焚機能
- トイレ
- 温水洗浄便座
- 室内洗濯機置場
- 洗髪洗面化粧台
- モニタ付インターホン
- 複層ガラス
- フローリング
- クローゼット
- ウォークインクローゼット
- 庭
物件の特徴
- 2階建
物件詳細情報
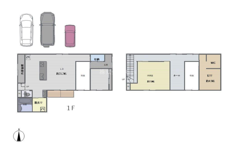
| 価格 | 4,200万円 | 間取り | 2LDK |
|---|---|---|---|
| 物件種別 | 中古一戸建て | ||
| 所在地 | 宮崎県宮崎市大塚町地蔵田 | ||
| アクセス |
|
||
| 建物面積 | 92.5㎡ | 駐車場 | あり 普通:3台 |
| 築年月 | 2022年(令和4年)12月築 | ||
| 建物構造 | 木造 2階建 | 工法 | |
| 主要採光 | バルコニー | ||
| 保証・評価 | |||
| リフォーム | |||
| 土地面積 | 182.07㎡(55.07坪) | 接道 | 北側(公道)幅 約4.0m 間口 約12.20m |
| 私道 | セットバック | ||
| 地目 | 宅地 | 地勢 | 平坦 |
| 権利 | 所有権 |
||
| 都市計画 | 市街化区域 |
用途地域 | 2種住居 |
| 建ぺい/容積率 | 60% / 200% | 土地国土法 | |
| 許可番号 | 建築基準法 | ||
| 法令制限 | |||
| 小学区 | 江南小学校 徒歩13分 (約990m) | 中学区 | 大塚中学校 徒歩21分 (約1610m) |
| 現況 | 居住中 | 引渡 | 相談 |
| その他費用 | |||
| 周辺環境 | コープみやざき 大塚店 徒歩3分 (約170m) セブンイレブン大坪町店 徒歩4分 (約250m) ドラッグストアコスモス 大塚店 徒歩8分 (約630m) マツモトキヨシ生目台通り店 徒歩8分 (約630m) 宮崎銀行 大塚中央支店 徒歩12分 (約890m) 宮崎太陽銀行 大塚支店 徒歩9分 (約690m) マツモトキヨシ大塚店 徒歩11分 (約820m) 鮮ど市場 大塚店 徒歩11分 (約840m) WASHハウス 大塚宮田店 徒歩11分 (約880m) まつの 大塚店 徒歩11分 (約860m) |
||
| 備考 | ◎全館空調システム搭載 ◎オール電化 ◎駐車場3台 |
||
| 物件番号 | 4561570 | 取引態様 | 媒介 |
取扱店舗情報
| 電話番号 | 0985-66-0753 |
|---|---|
| 所在地 | 〒880-0872 宮崎県宮崎市永楽町17 |
| 営業時間 | 9:00~18:00 |
| 定休日 | 水曜日、年末年始 |
| 宅建免許番号 | 宮崎県知事(1)第5078号 |
| アクセス | 店舗への地図はこちら |

来店ご予約
宮崎県宮崎市で価格が似ている物件はこちら
- 宮崎県
マイページ物件数 - 1,548件
最近見た物件
-
-

-
- 中古マンション
- 1,880万円
-
大阪市城東区今福東3丁目
-
大阪市長堀鶴見緑地線今福鶴見
-
-
-

-
- 新築一戸建て
- 4,090万円
-
宇都宮市下岡本町
-
JR東北本線岡本
-
-
-

-
- 新築一戸建て
- 3,199万円
-
糟屋郡宇美町障子岳2丁目
-
JR香椎線宇美
-
宮崎県中古一戸建て新着物件
-
-

-
- 中古一戸建て
- 2,480万円
-
宮崎市月見ケ丘6丁目
-
JR日豊本線南宮崎駅
-
-
-

-
- 中古一戸建て
- 1,600万円
-
宮崎市吾妻町
-
JR日豊本線宮崎駅
-
-
-

-
- 中古一戸建て
- 4,200万円
-
宮崎市大塚町地蔵田
-
JR日豊本線南宮崎駅
-
-
-

-
- 中古一戸建て
- 450万円
-
宮崎市大塚町浜川田
-
JR日豊本線南宮崎駅
-
-
-

-
- 中古一戸建て
- 3,860万円
-
宮崎市月見ケ丘5丁目
-
JR日南線田吉駅
-
-
-

-
- 中古一戸建て
- 1,580万円
-
宮崎市吉村町下り松
-
大王町
-
-
-

-
- 中古一戸建て
- 2,350万円
-
宮崎市高岡町下倉永
-
JR日豊本線宮崎神宮駅
-
- お近くの店舗を探す
-
おすすめ物件
-
-

-
- 中古一戸建て
- 1,460万円
-
宮崎市堀川町
-
JR日豊本線宮崎
-
-
-

-
- 中古一戸建て
- 2,900万円
-
宮崎市田野町乙
-
JR日豊本線田野
-
-
-

-
- 中古一戸建て
- 1,350万円
-
宮崎市大塚町小原田
-
JR日豊本線宮崎
-
-
-

-
- 中古一戸建て
- 1,100万円
-
宮崎市大字小松
-
JR日豊本線宮崎神宮
-
-
-

-
- 中古一戸建て
- 1,690万円
-
宮崎市小松台西3丁目
-
JR日豊本線宮崎神宮
-
-
-

-
- 中古一戸建て
- 1,990万円
-
宮崎市吉村町曽師前
-
JR日豊本線宮崎
-
-
-

-
- 中古一戸建て
- 2,300万円
-
宮崎市学園木花台南3丁目
-
JR日南線木花
-
-
-

-
- 中古一戸建て
- 280万円
-
宮崎市佐土原町東上那珂
-
野久尾バス停
-
-
-

-
- 中古一戸建て
- 1,600万円
-
日南市時任町
-
JR日南線飫肥
-
-
-

-
- 中古一戸建て
- 1,350万円
-
宮崎市清武町今泉丙
-
JR日豊本線清武
-








