熊本市北区高平2丁目の中古戸建
掲載情報更新日:2026年04月08日 次回更新予定日:2026年04月22日
- 5,198万円
-
- 借入ご希望金額
万円 - 借入期間
年 - 借入金利
% - 月々のお支払い金額
円
- 借入ご希望金額
※ 月々のお支払例は目安の試算となりますので、実際の金額とは異なる場合がございます。詳しくは店舗までお問合わせください。
- 熊本市北区高平2丁目
-
熊本電気鉄道『池田』 徒歩19分 (約1460m)
JR鹿児島本線『崇城大学前』 徒歩34分 (約2680m)
『山伏塚』 徒歩9分 (約710m)
熊本市北区高平2丁目一戸建て | 物件情報
《一気見ツアー今すぐOK》☆仲介手数料無料物件(161万円相当がお得!)お気軽にお問合せください♪
【内覧ツアー×最安値保証】ネットの物件、すべて当社で紹介可能!交渉力で「理想の価格」を叶えます
当社は通常かかる仲介手数料(物件価格の3%+6万円)が無料(例:3000万円の場合、90万円相当)
売主様への価格交渉も得意なので、どこよりもお安くご購入いただけるよう徹底サポートします!
他社様でお見積もりを取った後でも大丈夫!もっと安く買えるのでは?そんな悩みは当社が解決します
【内覧ツアー】
熊本県内全域の気になる物件をすべて当社でご内覧いただける『内覧ツアー』を実施中☆
新築・中古・中古マンションも!見学されたい物件を1日で内覧可能♪
窓口を一つに絞れるから、手間も時間もかかりません。
【最安値保証】
\最 安 値 徹 底 宣 言/
他社様よりも必ずお得にご購入いただけることをお約束します
当社ではオプション費用(エアコン、網戸、太陽光等)もお客様に代わり相見積もりします
トータルの費用が100万円以上変わることも!
全国700店舗以上展開!
ハウスドゥだからこその豊富な物件数・情報量でお客様のお家選びをトータルサポートいたします!
物件の設備
- 電気
- 上水道
- 公営水道
- 下水道
- 公共下水
- プロパンガス
- 個別プロパン
- 給湯
- 浄水器
- 食器乾燥機
- 食器洗浄乾燥機
- 食品庫
- コンロ三口
- グリル
- ガスコンロ付
- カウンターキッチン
- システムキッチン
- オープンキッチン
- バス
- ユニットバス
- オートバス
- バス1坪以上
- 追焚機能
- トイレ
- トイレ2箇所
- 温水洗浄便座
- 室内洗濯機置場
- 洗髪洗面化粧台
- 洗面所独立
- エアコン3基
- ダウンライト
- 太陽光発電システム
- 省エネ給湯器
- ディンプルキー
- ダブルロックキー
- モニタ付インターホン
- 火災警報器/報知機
- LDK18畳以上
- 和室
- 2面採光
- 吹抜
- 複層ガラス
- 全居室複層ガラス
- フローリング
- 24時間換気システム
- クローゼット
- ウォークインクローゼット
- ウォークインクローゼット2箇所
- 床下収納
- シューズボックス
- ウッドデッキ
物件の特徴
- 耐震構造
- 2沿線利用可
- 小学校徒歩10分以内
- 前道6m以上
- 南側道路面す
- 緑豊かな住宅地
- ゴルフ場が近い
- スーパーが近い
- 閑静な住宅街
- 山が見える
- 高台に立地
- 通風良好
- 陽当り良好
- 2階建
- 角地
- 外壁サイディング
- 長期優良住宅
- フラット35
- S適合証明書
- BELS/省エネ基準適合
- 即入居可
- フラット35Sに対応
オープンハウス・イベント情報
開催日時:毎週土日祝 09:00~19:00
開催場所:熊本県熊本市北区
\\現地見学会ご予約受付中// ○平日・土日祝いつでも承ります!! 〇お仕事帰りもOK!早朝・19時以降も対応致します! ◇◆◇お問い合わせ◇◆◇ 電話:096-243-3000 または 見学予約フォームにて事前にご予約をお願いします♪ ◇◆◇見学のご予約◇◆◇ 事前にご希望日時…
物件詳細情報
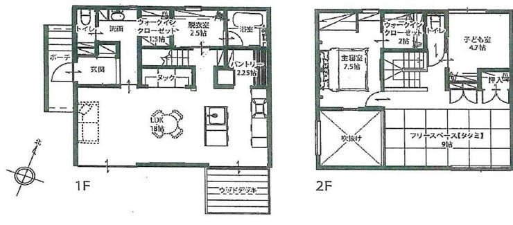
| 価格 | 5,198万円 | 間取り | 3LDK |
|---|---|---|---|
| 物件種別 | 中古一戸建て | ||
| 所在地 | 熊本県熊本市北区高平2丁目714番11 3号地 | ||
| アクセス |
|
||
| 建物面積 | 111.79㎡ | 駐車場 | あり 普通:2台 |
| 築年月 | 2024年(令和6年)07月築 | ||
| 建物構造 | 木造 2階建 | 工法 | |
| 主要採光 | 南東向 | バルコニー | |
| 保証・評価 | 長期優良住宅認定通知書・フラット35S適合証明書 |
||
| リフォーム | |||
| 土地面積 | 170.57㎡(51.59坪) | 接道 | 西側幅 約6.0m 南側幅 約6.0m |
| 私道 | セットバック | ||
| 地目 | 宅地 | 地勢 | |
| 権利 | 所有権 |
||
| 都市計画 | 用途地域 | 1種中高 | |
| 建ぺい/容積率 | 70% / 150% | 土地国土法 | |
| 許可番号 | 建築基準法 | ||
| 法令制限 | |||
| 小学区 | 高平台小学校 徒歩2分 (約160m) | 中学区 | 京陵中学校清水が丘分校 徒歩29分 (約2260m) |
| 現況 | 空 | 引渡 | 即 |
| その他費用 | |||
| 周辺環境 | 高平台小学校 徒歩2分 (約160m) 京陵中学校清水が丘分校 徒歩29分 (約2260m) 高平幼稚園 徒歩4分 (約290m) セブン-イレブン 熊本清水亀井店 徒歩12分 (約960m) ゆめマート 清水 徒歩7分 (約550m) 城北胃腸科内科クリニック 徒歩12分 (約950m) 熊本高平郵便局 徒歩12分 (約960m) トライアルクイック清水店 徒歩10分 (約750m) ミスターマックス 熊本北店 徒歩12分 (約920m) 津浦ゴルフアリーナ 徒歩15分 (約1170m) |
||
| 備考 | ・高平台小学校まで徒歩2分(約160m) ・京陵中学校清水が丘分校まで徒歩29分(約2260m) ・高平幼稚園まで徒歩4分(約290m) ・セブン-イレブン 熊本清水亀井店まで徒歩12分(約960m) ・ゆめマート 清水まで徒歩7分(約550m) ・城北胃腸科内科クリニックまで徒歩12分(約950m) ・熊本高平郵便局まで徒歩12分(約960m) ・トライアルクイック清水店まで徒歩10分(約750m) ・ミスターマックス 熊本北店まで徒歩12分(約920m) ・津浦ゴルフアリーナまで徒歩15分(約1170m) |
||
| 物件番号 | 4562150 | 取引態様 | 媒介 |
取扱店舗情報
ハウスドゥ 御幸田迎 株式会社Remado 店舗詳細ページへ
| 電話番号 | 096-243-3000 |
|---|---|
| 所在地 | 〒861-4108 熊本県熊本市南区幸田1丁目7-20 |
| 営業時間 | 10:00~18:00 |
| 定休日 | お盆、年末年始 |
| 宅建免許番号 | 熊本県知事(1)第5556号 |
| アクセス | 店舗への地図はこちら |

来店ご予約
熊本県熊本市北区で価格が似ている物件はこちら
- 熊本県
マイページ物件数 - 3,026件
最近見た物件
熊本県中古一戸建て新着物件
-
-

-
- 中古一戸建て
- 3,440万円
-
宇土市高柳町
-
JR鹿児島本線宇土駅
-
-
-

-
- 中古一戸建て
- 2,698万円
-
熊本市東区尾ノ上4丁目
-
熊本市健軍線健軍町駅
-
-
-

-
- 中古一戸建て
- 1,758万円
-
熊本市南区日吉2丁目
-
JR鹿児島本線西熊本駅
-
-
-

-
- 中古一戸建て
- 3,598万円
-
熊本市東区健軍3丁目
-
熊本市健軍線健軍交番前駅
-
-
-

-
- 中古一戸建て
- 2,998万円
-
熊本市北区鶴羽田2丁目
-
熊本電気鉄道新須屋駅
-
-
-

-
- 中古一戸建て
- 1,298万円
-
熊本市西区小島3丁目
-
JR鹿児島本線西熊本駅
-
-
-

-
- 中古一戸建て
- 1,298万円
-
熊本市西区小島3丁目
-
JR鹿児島本線西熊本駅
-
- お近くの店舗を探す
-
おすすめ物件
-
-

-
- 中古一戸建て
- 2,350万円
-
熊本市北区楠4丁目
-
JR豊肥本線武蔵塚
-
-
-

-
- 中古一戸建て
- 2,698万円
-
熊本市東区戸島1丁目
-
JR豊肥本線光の森
-
-
-

-
- 中古一戸建て
- 4,280万円
-
熊本市東区佐土原3丁目
-
熊本市健軍線健軍町
-
-
-

-
- 中古一戸建て
- 2,298万円
-
合志市須屋
-
熊本電気鉄道三ツ石
-
-
-

-
- 中古一戸建て
- 1,250万円
-
合志市須屋
-
熊本電気鉄道三ツ石
-
-
-

-
- 中古一戸建て
- 2,480万円
-
熊本市東区神園2丁目
-
JR豊肥本線武蔵塚
-
-
-

-
- 中古一戸建て
- 2,058万円
-
熊本市北区清水岩倉2丁目
-
熊本電気鉄道新須屋
-
-
-

-
- 中古一戸建て
- 1,130万円
-
合志市須屋
-
熊本電気鉄道須屋
-
-
-

-
- 中古一戸建て
- 750万円
-
熊本市北区徳王1丁目
-
JR鹿児島本線崇城大学前
-
-
-

-
- 中古一戸建て
- 4,698万円
-
熊本市南区八幡11丁目
-
JR鹿児島本線川尻
-


























担当エージェント:林原 綾乃
【月々の支払い例】
5200万円借り入れの場合
月々104,690円(頭金・ボーナス払いなし)
金利0.780%の場合(SBI新生銀行、金利優遇有)
変動金利 返済期間50年
※あくまで一例。条件有。
【周辺環境】
・高平台小学校まで徒歩2分(約160m)
・京陵中学校清水が丘分校まで徒歩29分(約2260m)
・高平幼稚園まで徒歩4分(約290m)
・セブン-イレブン 熊本清水亀井店まで徒歩12分(約960m)
・ゆめマート 清水まで徒歩7分(約550m)
・城北胃腸科内科クリニックまで徒歩12分(約950m)
・熊本高平郵便局まで徒歩12分(約960m)
・トライアルクイック清水店まで徒歩10分(約750m)
・ミスターマックス 熊本北店まで徒歩12分(約920m)
・津浦ゴルフアリーナまで徒歩15分(約1170m)
いつでもお気軽にご連絡ください☆彡
お問い合わせは『株式会社Remado』まで♪