宇都宮市御幸本町の中古戸建
掲載情報更新日:2026年04月20日 次回更新予定日:2026年05月04日
- 2,680万円
-
- 借入ご希望金額
万円 - 借入期間
年 - 借入金利
% - 月々のお支払い金額
円
- 借入ご希望金額
※ 月々のお支払例は目安の試算となりますので、実際の金額とは異なる場合がございます。詳しくは店舗までお問合わせください。
- 宇都宮市御幸本町
-
JR東北本線『宇都宮』 車12分(約3.9km)
宇都宮市御幸本町一戸建て | 物件情報
南向き☆陽当り良好☆駐車5台☆
南向き♪陽当り良好♪駐車5台♪
物件の設備
- 公営水道
- 下水道
- 都市ガス
- コンロ三口
- システムキッチン
- 追焚機能
- トイレ2箇所
- 温水洗浄便座
- クローゼット
- シューズボックス
物件の特徴
- 2階建
物件詳細情報
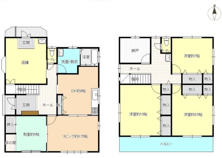
| 価格 | 2,680万円 | 間取り | 4LDK+S |
|---|---|---|---|
| 物件種別 | 中古一戸建て | ||
| 所在地 | 栃木県宇都宮市御幸本町 | ||
| アクセス |
|
||
| 建物面積 | 177.54㎡ | 駐車場 | なし |
| 築年月 | 2000年(平成12年)12月築 | ||
| 建物構造 | 木造 2階建 | 工法 | |
| 主要採光 | バルコニー | ||
| 保証・評価 | |||
| リフォーム | |||
| 土地面積 | 395.94㎡(119.77坪) | 接道 | |
| 私道 | セットバック | ||
| 地目 | 宅地 | 地勢 | |
| 権利 | 所有権 |
||
| 都市計画 | 市街化区域 |
用途地域 | 1種住居 |
| 建ぺい/容積率 | 60% / 200% | 土地国土法 | |
| 許可番号 | 建築基準法 | ||
| 法令制限 | |||
| 小学区 | 御幸小学校 徒歩6分 (約430m) | 中学区 | 鬼怒中学校 徒歩28分 (約2220m) |
| 現況 | 空 | 引渡 | 相談 |
| その他費用 | |||
| 周辺環境 | 宇都宮市御幸小学校 徒歩6分 (約430m) セブンイレブン宇都宮下川俣店 徒歩27分 (約2160m) 宇都宮市立鬼怒中学校 徒歩28分 (約2220m) |
||
| 備考 | |||
| 物件番号 | 4564802 | 取引態様 | 媒介 |
取扱店舗情報
ハウスドゥ 中戸祭 株式会社ケイズ・ネクスト 店舗詳細ページへ
| 電話番号 | 028-680-4339 |
|---|---|
| 所在地 | 〒320-0052 栃木県宇都宮市中戸祭町867-3 イステートハイツ中戸祭 |
| 営業時間 | 9:00~18:00 |
| 定休日 | 水曜日・夏休暇・GW・年末年始 |
| 宅建免許番号 | 栃木県知事(1)第5469号 |
| アクセス | 店舗への地図はこちら |

来店ご予約
栃木県宇都宮市で価格が似ている物件はこちら
- 栃木県
マイページ物件数 - 5,239件
最近見た物件
-
-

-
- 新築一戸建て
- 3,398万円
-
北九州市八幡西区本城東3丁目
-
JR筑豊本線本城
-
-
-

-
- 新築一戸建て
- 4,090万円
-
豊田市東山町4丁目
-
名鉄三河線豊田市
-
-
-

-
- 新築一戸建て
- 3,490万円
-
尾張旭市北山町北新田
-
名鉄瀬戸線尾張旭
-
栃木県中古一戸建て新着物件
-
-

-
- 中古一戸建て
- 1,799万円
-
河内郡上三川町大字ゆうきが丘
-
JR東北本線石橋駅
-
-
-

-
- 中古一戸建て
- 2,780万円
-
宇都宮市中岡本町
-
JR東北本線岡本駅
-
-
-

-
- 中古一戸建て
- 2,390万円
-
佐野市若宮上町
-
東武佐野線佐野市駅
-
-
-

-
- 中古一戸建て
- 700万円
-
宇都宮市西の宮1丁目
-
JR日光線鶴田駅
-
-
-

-
- 中古一戸建て
- 850万円
-
さくら市氏家
-
JR東北本線氏家駅
-
-
-

-
- 中古一戸建て
- 920万円
-
那須郡那須町大字高久乙
-
JR東北本線黒田原駅
-
-
-

-
- 中古一戸建て
- 2,850万円
-
宇都宮市簗瀬4丁目
-
JR東北本線宇都宮駅
-
- お近くの店舗を探す
-
おすすめ物件
-
-

-
- 中古一戸建て
- 720万円
-
下都賀郡壬生町落合1丁目
-
東武宇都宮線国谷
-
-
-

-
- 中古一戸建て
- 2,950万円
-
佐野市高萩町
-
JR両毛線佐野
-
-
-

-
- 中古一戸建て
- 2,580万円
-
宇都宮市清原台6丁目
-
宇都宮芳賀ライト線ゆいの杜西
-
-
-

-
- 中古一戸建て
- 2,199万円
-
宇都宮市弥生2丁目
-
東武宇都宮線南宇都宮
-
-
-

-
- 中古一戸建て
- 2,780万円
-
宇都宮市石井町
-
宇都宮芳賀ライト線平石中央小学校前
-
-
-

-
- 中古一戸建て
- 1,798万円
-
宇都宮市鶴田町
-
JR日光線鶴田
-
-
-

-
- 中古一戸建て
- 6,280万円
-
宇都宮市山本3丁目
-
関東バス【青葉台】
-
-
-

-
- 中古一戸建て
- 2,780万円
-
芳賀郡益子町大字七井
-
真岡鉄道多田羅
-
-
-

-
- 中古一戸建て
- 3,680万円
-
宇都宮市中岡本町
-
JR東北本線岡本
-
-
-

-
- 中古一戸建て
- 990万円
-
宇都宮市氷室町
-
清原さきがけ号【光ケ丘公民館前】
-





