中古戸建 松原市天美東9丁目
掲載情報更新日:2026年03月13日 次回更新予定日:2026年03月27日
- 1,780万円
-
- 借入ご希望金額
万円 - 借入期間
年 - 借入金利
% - 月々のお支払い金額
円
- 借入ご希望金額
※ 月々のお支払例は目安の試算となりますので、実際の金額とは異なる場合がございます。詳しくは店舗までお問合わせください。
- 松原市天美東9丁目
-
近鉄南大阪線『河内天美』 徒歩7分 (約560m)
大阪市御堂筋線『北花田』 徒歩31分 (約2480m)
近鉄南大阪線『布忍』 徒歩27分 (約2160m)
中古戸建 松原市天美東9丁目一戸建て | 物件情報
★リノベーション済み・2SLDKのお家★
★リノベーション済み・2SLDKのお家★
●オススメポイント●
・リノベーション済み♪
・駐車場あり
・全居室6帖
●教育機関●
・天美小学校 徒歩7分
・松原第五中学校 徒歩22分
物件の設備
- 電気
- 上水道
- 公営水道
- 下水道
- 都市ガス
- 給湯
- 食器洗浄乾燥機
- コンロ三口
- グリル
- システムキッチン
- バス
- トイレ
- 室内洗濯機置場
- 洗面所独立
- モニタ付インターホン
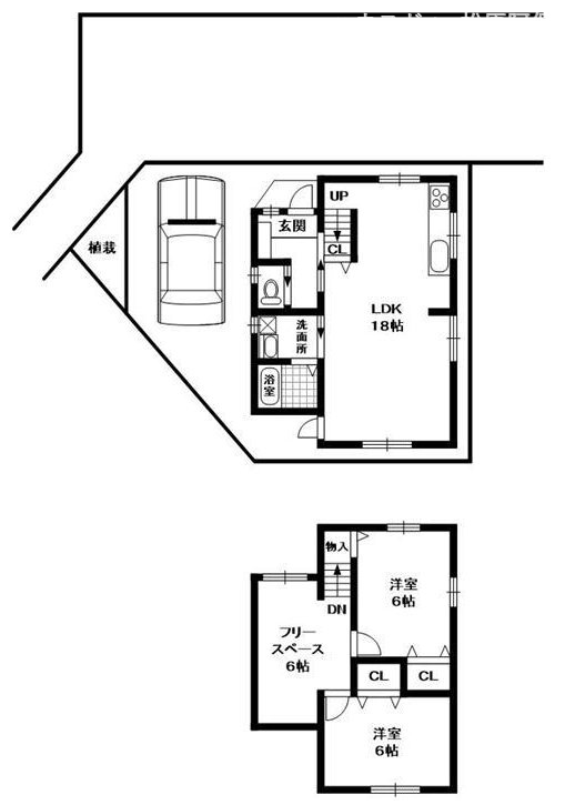
- LDK15畳以上
- LDK18畳以上
- フローリング
- 網戸
- クローゼット
- クローゼット2箇所
- シューズボックス
- ハイルーフ駐車可能
物件の特徴
- 整備された歩道
- スーパーが近い
- 閑静な住宅街
- 通風良好
- 陽当り良好
- 2階建
- 平坦地
物件詳細情報
| 価格 | 1,780万円 | 間取り | 2LDK+S |
|---|---|---|---|
| 物件種別 | 中古一戸建て | ||
| 所在地 | 大阪府松原市天美東9丁目 | ||
| アクセス |
|
||
| 建物面積 | 公67.9㎡ | 駐車場 | あり 普通:1台 |
| 築年月 | 1973年(昭和48年)04月築 | ||
| 建物構造 | 木造 2階建 | 工法 | |
| 主要採光 | バルコニー | ||
| 保証・評価 | |||
| リフォーム | |||
| 土地面積 | 公99.75㎡(30.17坪) | 接道 | 西側(私道)幅 約4.0m 間口 約9.00m |
| 私道 | 含:公28.48㎡ | セットバック | |
| 地目 | 宅地 | 地勢 | |
| 権利 | 所有権 |
||
| 都市計画 | 市街化区域 |
用途地域 | 2種中高 |
| 建ぺい/容積率 | 60% / 200% | 土地国土法 | 届出不要 |
| 許可番号 | 建築基準法 | ||
| 法令制限 | 準防火地域 | ||
| 小学区 | 天美小学校 徒歩7分 (約500m) | 中学区 | 松原第五中学校 徒歩22分 (約1700m) |
| 現況 | 空 | 引渡 | 相談 |
| その他費用 | |||
| 周辺環境 | 天美保育園 徒歩8分 (約590m) 松原市立天美小学校 徒歩7分 (約510m) 松原市立 松原第五中学校 徒歩19分 (約1500m) セブン-イレブン 松原天美西2丁目店 徒歩5分 (約330m) スギ薬局 松原天美西店 徒歩10分 (約730m) 松原警察署 河内天美駅前交番 徒歩10分 (約780m) コーナンPRO天美西店 徒歩10分 (約780m) 河内天美駅 徒歩13分 (約980m) 万代 天美店 徒歩13分 (約1020m) セブンパーク天美 徒歩16分 (約1230m) |
||
| 備考 | ・天美保育園まで徒歩8分(約590m) ・松原市立天美小学校まで徒歩7分(約510m) ・松原市立 松原第五中学校まで徒歩19分(約1500m) ・セブン-イレブン 松原天美西2丁目店まで徒歩5分(約330m) ・スギ薬局 松原天美西店まで徒歩10分(約730m) ・松原警察署 河内天美駅前交番まで徒歩10分(約780m) ・コーナンPRO天美西店まで徒歩10分(約780m) ・河内天美駅まで徒歩13分(約980m) ・万代 天美店まで徒歩13分(約1020m) ・セブンパーク天美まで徒歩16分(約1230m) |
||
| 物件番号 | 4565013 | 取引態様 | 媒介 |
取扱店舗情報
ハウスドゥ 松原阿保 Tacoo home株式会社 店舗詳細ページへ
| 電話番号 | 072-247-5294 |
|---|---|
| 所在地 | 〒580-0043 大阪府松原市阿保1丁目4-11コーポイン松原102 |
| 営業時間 | 平日:10:00~20:00/土日祝:9:00~20:00 |
| 定休日 | 水曜日 |
| 宅建免許番号 | 大阪府知事(1)第65754号 |
| アクセス | 店舗への地図はこちら |

来店ご予約
大阪府松原市で価格が似ている物件はこちら
- 大阪府
マイページ物件数 - 17,900件
最近見た物件
-
-

-
- 新築一戸建て
- 2,690万円
-
犬山市大字犬山字北笠屋
-
名鉄犬山線犬山口
-
大阪府中古一戸建て新着物件
-
-

-
- 中古一戸建て
- 2,100万円
-
吹田市竹谷町
-
阪急電鉄千里線千里山駅
-
-
-

-
- 中古一戸建て
- 2,100万円
-
吹田市竹谷町
-
阪急電鉄千里線千里山駅
-
-
-

-
- 中古一戸建て
- 3,700万円
-
豊中市二葉町1丁目
-
阪急電鉄神戸線神崎川駅
-
-
-

-
- 中古一戸建て
- 3,800万円
-
豊中市螢池西町1丁目
-
阪急電鉄宝塚線蛍池駅
-
-
-

-
- 中古一戸建て
- 5,680万円
-
池田市石橋2丁目
-
阪急電鉄宝塚線石橋阪大前駅
-
-
-

-
- 中古一戸建て
- 1,300万円
-
豊中市螢池西町1丁目
-
阪急電鉄宝塚線蛍池駅
-
-
-

-
- 中古一戸建て
- 4,150万円
-
吹田市寿町2丁目
-
阪急電鉄千里線吹田駅
-
- お近くの店舗を探す
-
おすすめ物件
-
-

-
- 中古一戸建て
- 590万円
-
大阪市住之江区安立4丁目
-
南海電鉄本線住ノ江
-
-
-

-
- 中古一戸建て
- 2,980万円
-
大阪市東住吉区鷹合3丁目
-
近鉄南大阪線矢田
-
-
-

-
- 中古一戸建て
- 1,280万円
-
東大阪市稲葉1丁目
-
近鉄難波・奈良線河内花園
-
-
-

-
- 中古一戸建て
- 2,480万円
-
高槻市緑が丘2丁目
-
JR東海道線高槻
-
-
-

-
- 中古一戸建て
- 5,480万円
-
茨木市彩都あさぎ6丁目
-
大阪モノレール彩都彩都西
-
-
-

-
- 中古一戸建て
- 2,380万円
-
泉大津市寿町
-
南海電鉄本線松ノ浜
-
-
-

-
- 中古一戸建て
- 2,880万円
-
大阪市平野区平野本町4丁目
-
大阪市谷町線平野
-
-
-

-
- 中古一戸建て
- 1,490万円
-
東大阪市中小阪1丁目
-
近鉄難波・奈良線河内小阪
-
-
-

-
- 中古一戸建て
- 1,650万円
-
和泉市黒鳥町2丁目
-
JR阪和線和泉府中
-
-
-

-
- 中古一戸建て
- 1,350万円
-
泉南市樽井2丁目
-
南海電鉄本線樽井
-








担当エージェント:福田 亜翔
【複数件併せてのご案内可能です】気になるあのマンション、エリア内・沿線近くの物件などお客様のご要望に沿った物件を一度にご紹介いたします♪