沼津市下香貫八重の中古戸建
掲載情報更新日:2026年05月16日 次回更新予定日:2026年05月30日
- 1,280万円
-
- 借入ご希望金額
万円 - 借入期間
年 - 借入金利
% - 月々のお支払い金額
円
- 借入ご希望金額
※ 月々のお支払例は目安の試算となりますので、実際の金額とは異なる場合がございます。詳しくは店舗までお問合わせください。
- 沼津市下香貫八重
-
JR東海道本線『沼津』 徒歩35分 (約2800m)
沼津市下香貫八重一戸建て | 物件情報
頭金なし諸経費込み4.0万円/月でご購入可能!将来の負担を抑えた無理のない住宅ローンを提案いたします
【プラス月1.8万円でオーダーメイドの内装に】
当店でご内見いただくメリットは、リノベーションに精通した担当者がその場で価格提案ができ、ご要望をしっかりと受け止めます。 リノベーションのテイストは、ホテルライク・北欧風・西海岸風・アメリカンスタイルなど、多様なお客さまの理想を実現いたします。 またご購入後も5年、10年先の外壁塗装やシロアリ予防、小規模・大規模な修繕、台風や大雨による火災保険を活用したリフォームにも迅速対応が可能です。 物件のご購入から資金計画、おしゃれでこだわりのリノベーション、火災保険まで、ワンストップでご提供いたします。 ご購入後のお客さまを、全力でサポートさせていただくことをお約束いたします。
【資金計画に絶対の自信があります!】
当社は住宅ローンに強い不動産会社です。多くの「家を持ちたい」というご要望を叶えてきました。
◆頭金がないけど買えるの?
◆借金があるけど買えるの?
◆滞納歴があるけど買えるの?
◆シングルマザーでも買えるの?
◆外国人でも買えるの?
◆収入が低くても買えるの?
物件の設備
- 電気
- 上水道
- 公営水道
- 浄化槽
- プロパンガス
- バス
- バス1坪以上
- トイレ
- 室内洗濯機置場
- 洗面所独立
- 和室
- 全居室6畳以上
- 2面採光
- シャッター車庫
物件の特徴
- 南側道路面す
- 陽当り良好
- 2階建
- 即入居可
物件詳細情報
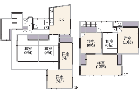
| 価格 | 1,280万円 | 間取り | 8DK |
|---|---|---|---|
| 物件種別 | 中古一戸建て | ||
| 所在地 | 静岡県沼津市下香貫八重 | ||
| アクセス |
|
||
| 建物面積 | 公197.92㎡ | 駐車場 | あり 普通:6台 |
| 築年月 | 1987年(昭和62年)01月築 | ||
| 建物構造 | 木造 2階建 | 工法 | |
| 主要採光 | バルコニー | ||
| 保証・評価 | |||
| リフォーム | |||
| 土地面積 | 公638.72㎡(193.21坪) | 接道 | 南側(公道)幅 約4.0m |
| 私道 | セットバック | ||
| 地目 | 宅地 | 地勢 | |
| 権利 | 所有権 |
||
| 都市計画 | 市街化区域 |
用途地域 | 1種低層 |
| 建ぺい/容積率 | 50% / 80% | 土地国土法 | |
| 許可番号 | 建築基準法 | ||
| 法令制限 | |||
| 小学区 | 香貫小学校 徒歩18分 (約1400m) | 中学区 | 第三中学校 徒歩11分 (約850m) |
| 現況 | 空 | 引渡 | 即 |
| その他費用 | |||
| 備考 | 8DK/3DKの平屋&2階建物件 ・敷地内に平屋建あり:3DK 建物面積92.74㎡ S62年1月30日築 木造瓦葺平屋 ・2階建屋根傾き有 ・付属建物有:車庫、物置(鉄筋コンクリート造陸屋根平屋建て 44.80㎡) ・建物南側砂利敷き土地含む ・106-9は共有持ち分1/2 |
||
| 物件番号 | 4567088 | 取引態様 | 媒介 |
取扱店舗情報
ハウスドゥ 沼津香貫 株式会社東静プランニング 店舗詳細ページへ
| 電話番号 | 055-935-6102 |
|---|---|
| 所在地 | 〒410-0836 静岡県沼津市吉田町38-4 |
| 営業時間 | 10:00~19:00 |
| 定休日 | 水曜日、第一火曜日、年末年始 |
| 宅建免許番号 | 国土交通大臣(1)第10183号 |
| アクセス | 店舗への地図はこちら |

来店ご予約
静岡県沼津市で価格が似ている物件はこちら
- 静岡県
マイページ物件数 - 2,693件
最近見た物件
-
-

-
- 中古マンション
- 2,390万円
-
那覇市首里平良町1丁目
-
沖縄都市モノレール儀保
-
-
-

-
- 中古マンション
- 3,080万円
-
岡山市北区西長瀬
-
JR山陽本線北長瀬
-
-
-

-
- 収益
- 3,080万円
-
大阪市都島区都島南通2丁目
-
JR大阪環状線京橋
-
静岡県中古一戸建て新着物件
- お近くの店舗を探す
-
おすすめ物件
-
-

-
- 中古一戸建て
- 3,400万円
-
裾野市富沢
-
JR御殿場線裾野
-
-
-

-
- 中古一戸建て
- 3,000万円
-
伊豆の国市富士見
-
伊豆箱根鉄道駿豆線伊豆長岡
-
-
-

-
- 中古一戸建て
- 1,099万円
-
静岡市葵区北4丁目
-
JR東海道本線静岡
-
-
-

-
- 中古一戸建て
- 1,980万円
-
湖西市鷲津
-
JR東海道本線鷲津
-
-
-

-
- 中古一戸建て
- 3,100万円
-
沼津市寿町
-
JR東海道本線沼津
-
-
-

-
- 中古一戸建て
- 3,990万円
-
浜松市中央区小池町
-
遠州鉄道さぎの宮
-
-
-

-
- 中古一戸建て
- 4,990万円
-
静岡市葵区瀬名川2丁目
-
JR東海道本線草薙
-
-
-

-
- 中古一戸建て
- 2,980万円
-
三島市東大場1丁目
-
伊豆箱根鉄道駿豆線三島二日町
-
-
-

-
- 中古一戸建て
- 2,780万円
-
富士市原田
-
岳南電車岳南原田
-
-
-

-
- 中古一戸建て
- 3,490万円
-
静岡市葵区古庄3丁目
-
静岡鉄道静岡清水線古庄
-




















住宅ローンにまつわるご不安やお悩みは全てご相談下さい。 当店では毎日21時まで無料相談会を実施していますので、お仕事帰りなどにご利用いただけたらと思います。 フリーダイヤル0120-722-778かLINEでご予約ください。経験豊富なスタッフが、安心して住まいの購入を進めていただけるよう、資金計画から強力にサポートいたします。
【当店のできること】
・物件の選定・周辺環境・資産性の評価
・物件の価格や近隣相場の調査
・建築分野におけるアドバイス
・役所調査・物件調査
・管理規約の確認(区分所有マンションの場合)
・重要事項説明書の作成・事前説明
・住宅ローンの事前審査・アドバイス・斡旋
・インスペクション業者の紹介
・リフォーム・リノベーション・修繕のアドバイス
・内覧時におけるリフォーム費用のご提示
・金消契約の立会い
・お引渡後のトラブルのお手伝い
【当店のできないことです】
・しつこい営業はできません
・強引な営業もできません
・売りたいがための嘘もつけません
・エージェントの意見を押し付けることもできません