中野区江原町1丁目の中古戸建
NEW 01.25掲載情報更新日:2026年01月25日 次回更新予定日:2026年02月08日
- 7,590万円
-
- 借入ご希望金額
万円 - 借入期間
年 - 借入金利
% - 月々のお支払い金額
円
- 借入ご希望金額
※ 月々のお支払例は目安の試算となりますので、実際の金額とは異なる場合がございます。詳しくは店舗までお問合わせください。
- 中野区江原町1丁目
-
都営大江戸線『新江古田』 徒歩10分 (約800m)
西武池袋・豊島線『東長崎』 徒歩13分 (約1040m)
JR中央本線『中野』 バス乗車6分 江古田住宅 停 徒歩3分 (約240m)
中野区江原町1丁目一戸建て | 物件情報
●都営大江戸線「新江古田」駅徒歩10分●新規リフォーム物件●接道幅員約6m
~~~POINT~~~
*前面道路幅員約6m、間口約10m
*車庫1台分付きの木造3階建戸建
*2026年1月新規リフォーム実施
■リフォーム内容
・キッチン(システムキッチン/浄水器/?洗機付)
・浴室(ミラー/シャワーホース・ヘッド)
・洗面室(洗面化粧台/洗濯用水栓)
・トイレ(温水洗浄便座?体型便器1F・2F)
・その他(照明器具/スイッチコンセント/建具/給湯器)
・床フローリング貼(LDK/洋室全室/廊下)
・フロアタイル貼(洗面室/トイレ1F・2F)
・壁・天井(クロス貼)
・ハウスクリーニング 等
■その他仕様・設備
浴室換気乾燥機/トイレ2か所/
全室収納/モニター付きインターホン 等
物件の設備
- 電気
- 上水道
- 公営水道
- 下水道
- 公共下水
- 都市ガス
- 浄水器
- 食器洗浄乾燥機
- システムキッチン
- 浴室乾燥機
- トイレ2箇所
- 温水洗浄便座
- モニタ付インターホン
- フローリング張替
- 全居室収納
物件の特徴
- 内装リフォーム済
- 前道6m以上
- 3階建以上
物件詳細情報
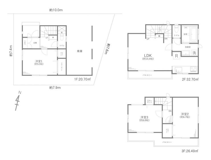
| 価格 | 7,590万円 | 間取り | 3LDK |
|---|---|---|---|
| 物件種別 | 中古一戸建て | ||
| 所在地 | 東京都中野区江原町1丁目 | ||
| アクセス |
|
||
| 建物面積 | 公79.89㎡ | 駐車場 | あり 普通:1台 |
| 築年月 | 2012年(平成24年)06月築 | ||
| 建物構造 | 木造 3階建 | 工法 | |
| 主要採光 | 南向 | バルコニー | |
| 保証・評価 | |||
| リフォーム | 【水回り】2026年01月 キッチン・浴室・トイレ・洗面・給湯器 【内装】2026年01月 壁、天井 ・床 ・全室クロス ・建具 |
||
| 土地面積 | 公66.67㎡(20.16坪) | 接道 | 北側(公道)幅 約6.0m 間口 約10.00m |
| 私道 | セットバック | 無 | |
| 地目 | 宅地 | 地勢 | |
| 権利 | 所有権 |
||
| 都市計画 | 市街化区域 |
用途地域 | 1種低層 |
| 建ぺい/容積率 | 60% / 150% | 土地国土法 | |
| 許可番号 | 建築基準法 | ||
| 法令制限 | |||
| 小学区 | 中学区 | ||
| 現況 | 空 | 引渡 | 相談 |
| その他費用 | |||
| 備考 | |||
| 物件番号 | 4568152 | 取引態様 | 媒介 |
取扱店舗情報
ハウスドゥ 新宿三丁目 株式会社レーヴホライズン 店舗詳細ページへ
| 電話番号 | 03-6384-2356 |
|---|---|
| 所在地 | 〒160-0022 東京都新宿区新宿2-15-22 Landwork新宿ビル5階 |
| 営業時間 | 9:00~18:00 |
| 定休日 | 火曜日、水曜日、GW、夏期、年末年始 |
| 宅建免許番号 | 東京都知事(2)第100808号 |
| アクセス | 店舗への地図はこちら |

来店ご予約
- 東京都
マイページ物件数 - 5,327件
最近見た物件
-
-

-
- 中古一戸建て
- 4,480万円
-
名古屋市中村区羽衣町
-
名古屋市桜通線太閤通
-
-
-

-
- 中古一戸建て
- 2,250万円
-
旭川市旭神三条4丁目
-
JR函館本線旭川
-
-
-

-
- 新築一戸建て
- 4,298万円
-
神戸市兵庫区荒田町3丁目
-
神戸市営地下鉄西神山手線湊川公園
-
東京都中古一戸建て新着物件
- お近くの店舗を探す
-
おすすめ物件
-
-

-
- 中古一戸建て
- 6,980万円
-
練馬区東大泉7丁目
-
西武池袋・豊島線大泉学園
-
-
-

-
- 中古一戸建て
- 4,400万円
-
足立区一ツ家1丁目
-
つくばエクスプレス六町
-
-
-

-
- 中古一戸建て
- 2,980万円
-
北区上十条5丁目
-
JR京浜東北・根岸線東十条
-
-
-

-
- 中古一戸建て
- 3,280万円
-
葛飾区西水元6丁目
-
JR千代田・常磐緩行線亀有
-
-
-

-
- 中古一戸建て
- 3,980万円
-
足立区佐野2丁目
-
東京メトロ千代田線北綾瀬
-
-
-

-
- 中古一戸建て
- 2,300万円
-
青梅市今井1丁目
-
JR青梅線河辺
-
-
-

-
- 中古一戸建て
- 2,480万円
-
東久留米市南町4丁目
-
西武池袋・豊島線ひばりケ丘
-
-
-

-
- 中古一戸建て
- 5,980万円
-
大田区大森西4丁目
-
京急本線大森町
-
-
-

-
- 中古一戸建て
- 4,780万円
-
国分寺市光町3丁目
-
JR中央本線国立
-
-
-

-
- 中古一戸建て
- 4,280万円
-
青梅市滝ノ上町
-
JR青梅線青梅
-







