【収益物件|民泊運営中】AKIZERO ONNASON
NEW 01.26掲載情報更新日:2026年01月26日 次回更新予定日:2026年02月09日
- 6,980万円
-
- 借入ご希望金額
万円 - 借入期間
年 - 借入金利
% - 月々のお支払い金額
円
- 借入ご希望金額
※ 月々のお支払例は目安の試算となりますので、実際の金額とは異なる場合がございます。詳しくは店舗までお問合わせください。
- 国頭郡恩納村字名嘉真
-
『伊武部希望ヶ丘入口』 徒歩5分 (約400m)
【収益物件|民泊運営中】AKIZERO ONNASON一戸建て | 物件情報
恩納村名嘉真は、沖縄本島屈指の自然美と静けさが調和した場所です!!
■掲載内容と現況が異なる場合がございます。あらかじめご了承ください。気になる点はお気軽にスタッフまでお尋ねください。
■ご来店はもちろん、お電話・メール・オンライン相談やオンライン内覧にも対応。遠方やお忙しい方もご自宅からスムーズにご相談・ご見学いただけます。
■ハウスドゥ北谷店・恩納読谷店・宜野湾店は、“地域に一番近い不動産パートナー”として、お客様一人ひとりに寄り添ったご提案を心掛けています。初めてのご購入・ご売却も安心。経験豊富なスタッフが不動産の不安や疑問を「納得」に変えるお手伝いをいたします。
■店舗前に駐車場完備? キッズスペースやドリンク・お菓子のサービスもあり、ご家族でゆっくりご相談いただけます。
■土地・建物・事業用・収益物件など売却物件も大募集中!無料査定実施中。女性スタッフも在籍し、初めての方も安心です?
――あなたの大切な不動産、私たちが心を込めてお手伝いいたします。
物件の設備
- システムキッチン
- バス
- シャワールーム
- トイレ
- 室内洗濯機置場
- 洗面所独立
- モニタ付インターホン
- フローリング
- クローゼット
- シューズボックス
物件の特徴
- スーパーが近い
- 閑静な住宅街
- 市街地が近い
- 通風良好
- 陽当り良好
- 2階建
- 平坦地
物件詳細情報
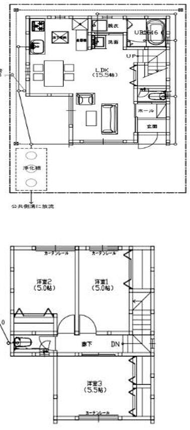
| 価格 | 6,980万円 | 間取り | 3LDK |
|---|---|---|---|
| 物件種別 | 中古一戸建て | ||
| 所在地 | 沖縄県国頭郡恩納村字名嘉真 | ||
| アクセス |
|
||
| 建物面積 | 公75.56㎡ | 駐車場 | あり 普通:4台 |
| 築年月 | 2018年(平成30年)06月築 | ||
| 建物構造 | RC 2階建 | 工法 | |
| 主要採光 | 北東向 | バルコニー | |
| 保証・評価 | |||
| リフォーム | |||
| 土地面積 | 公282㎡(85.30坪) | 接道 | |
| 私道 | セットバック | ||
| 地目 | 宅地 | 地勢 | |
| 権利 | 所有権 |
||
| 都市計画 | 用途地域 | 指定無 | |
| 建ぺい/容積率 | 60% / 200% | 土地国土法 | |
| 許可番号 | 建築基準法 | ||
| 法令制限 | |||
| 小学区 | 安冨祖小学校 徒歩47分 (約3700m) | 中学区 | |
| 現況 | 賃貸中 | 引渡 | 相談 |
| その他費用 | |||
| 備考 | |||
| 物件番号 | 4569563 | 取引態様 | 媒介 |
取扱店舗情報
| 電話番号 | 098-989-7915 |
|---|---|
| 所在地 | 〒904-0115 沖縄県中頭郡北谷町美浜1丁目3-16 |
| 営業時間 | 10:00~19:00 |
| 定休日 | 水曜日 |
| 宅建免許番号 | 沖縄県知事(2)第4675号 |
| アクセス | 店舗への地図はこちら |

来店ご予約
- 沖縄県
マイページ物件数 - 3,745件
最近見た物件
-
-

-
- 新築一戸建て
- 2,688万円
-
大分市坂ノ市中央4丁目
-
JR日豊本線坂ノ市
-
-
-

-
- 新築一戸建て
- 3,890万円
-
上尾市二ツ宮
-
JR高崎線上尾
-
-
-

-
- 新築一戸建て
- 2,680万円
-
一宮市時之島字堂山
-
名鉄犬山線江南
-
沖縄県中古一戸建て新着物件
-
-

-
- 中古一戸建て
- 6,500万円
-
国頭郡恩納村字名嘉真
-
伊武部希望ヶ丘入口
-
-
-

-
- 中古一戸建て
- 6,980万円
-
国頭郡恩納村字名嘉真
-
伊武部希望ヶ丘入口
-
-
-

-
- 中古一戸建て
- 1億4,998万円
-
国頭郡本部町字大浜
-
バス第二大浜
-
-
-

-
- 中古一戸建て
- 6,980万円
-
中頭郡西原町上原2丁目
-
会営薬局前バス停
-
-
-

-
- 中古一戸建て
- 4,900万円
-
中頭郡西原町字棚原
-
棚原バス停
-
-
-

-
- 中古一戸建て
- 4,892万円
-
南城市大里字稲嶺
-
バス停目取真バス停
-
-
-

-
- 中古一戸建て
- 2,780万円
-
南城市大里字稲嶺
-
バス停保地原バス停
-
- お近くの店舗を探す
-
おすすめ物件
-
-

-
- 中古一戸建て
- 4,598万円
-
糸満市潮崎町4丁目
-
バス停真栄里入口
-
-
-

-
- 中古一戸建て
- 6,570万円
-
豊見城市字豊崎
-
光洋小学校入口
-
-
-

-
- 中古一戸建て
- 3,820万円
-
中頭郡読谷村字比謝
-
沖縄都市モノレールてだこ浦西
-
-
-

-
- 中古一戸建て
- 3,780万円
-
うるま市与那城屋慶名
-
バス停西屋慶名
-
-
-

-
- 中古一戸建て
- 4,180万円
-
豊見城市字上田
-
バス停豊見城郵便局前
-
-
-

-
- 中古一戸建て
- 4,390万円
-
豊見城市字金良
-
金良入口
-
-
-

-
- 中古一戸建て
- 2,800万円
-
うるま市石川曙2丁目
-
石川入口
-
-
-

-
- 中古一戸建て
- 3,980万円
-
島尻郡八重瀬町字仲座
-
バス停与座
-
-
-

-
- 中古一戸建て
- 5,480万円
-
中頭郡北谷町字桑江
-
北谷高校入口
-
-
-

-
- 中古一戸建て
- 4,498万円
-
糸満市潮崎町4丁目
-
沖縄都市モノレール赤嶺
-























担当エージェント:島袋 希心
恩納村名嘉真は、沖縄本島屈指の自然美と静けさが調和した場所です。目の前に広がる名嘉真ブルーの海は、
時間帯によって表情を変え、朝はやさしく、夕方にはドラマチックに輝きます。白砂のビーチと透明度の高い海は、
ただ眺めているだけでも心をほどき、日常の喧騒を忘れさせてくれます。セカンドハウスや民泊運営にいかがでしょうか♪♪