熊本市北区植木町舞尾の中古戸建
掲載情報更新日:2026年05月14日 次回更新予定日:2026年05月28日
- 1,698万円
-
- 借入ご希望金額
万円 - 借入期間
年 - 借入金利
% - 月々のお支払い金額
円
- 借入ご希望金額
※ 月々のお支払例は目安の試算となりますので、実際の金額とは異なる場合がございます。詳しくは店舗までお問合わせください。
- 熊本市北区植木町舞尾
-
JR鹿児島本線『植木』 徒歩35分 (約2800m)
JR鹿児島本線『田原坂』 徒歩57分 (約4500m)
JR鹿児島本線『西里』 徒歩77分 (約6100m)
熊本市北区植木町舞尾一戸建て | 物件情報
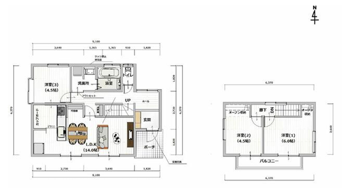
【即日ご内覧可能です】各居室収納をはじめ収納スペースも充実しており、室内をすっきり保てる間取り。
\土日祝日問わずご内覧可能です/
▼ご内覧までの流れ♪
まずはご希望のライフスタイルやご条件を丁寧にヒアリング。厳選した物件の中から、ご納得いただける住まいをご提案いたします。
ご内覧のスケジュールも、お客様のご都合に合わせて柔軟に調整いたします。
▼資金計画・住宅ローンもワンストップでサポート♪
「年収・資産に応じた最適な借入額を知りたい」「転職後でもローンは組めるか」「頭金なしでも購入可能か」などのお悩みに
経験豊富な担当者が丁寧にご対応。安心して次のステージへ進めるよう、的確なアドバイスを行います。
▼多様な物件情報をご用意しております♪
当社ホームページでは、公開以外の物件もご紹介しております。ぜひ「ハウスドゥ大江」で検索ください♪
▼まずは一度、お気軽にご相談ください♪
「まだ検討段階だけど話を聞いてみたい」「まずは内覧から始めてみたい」といったお声にも、誠実にお応えいたします。
女性スタッフも在籍しており、初めての方でも安心してご相談いただけます。
物件の設備
- 電気
- コンロ三口
- カウンターキッチン
- システムキッチン
- バス
- バス1坪以上
- 浴室に窓
- 温水洗浄便座
- 洗髪洗面化粧台
- ダウンライト
- モニタ付インターホン
- 火災警報器/報知機
- フローリング張替
- 2面バルコニー
- 庭
物件の特徴
- 内装リフォーム済
- 外装リフォーム済
- 内外装リフォーム済
- 内装リフォーム後渡
- 外装リフォーム後渡
- 内外装リフォーム後渡
- 南向
- 2沿線利用可
- スーパーが近い
- 閑静な住宅街
- 通風良好
- 陽当り良好
- 2階建
物件詳細情報
| 価格 | 1,698万円 | 間取り | 3LDK |
|---|---|---|---|
| 物件種別 | 中古一戸建て | ||
| 所在地 | 熊本県熊本市北区植木町舞尾 | ||
| アクセス |
|
||
| 建物面積 | 74.52㎡ | 駐車場 | あり 普通:3台 |
| 築年月 | 1986年(昭和61年)06月築 | ||
| 建物構造 | 木造 2階建 | 工法 | |
| 主要採光 | バルコニー | ||
| 保証・評価 | |||
| リフォーム | 【水回り】2025年12月 キッチン・浴室・トイレ・洗面・給湯器 【外装】2025年12月 外壁 ・屋根 【内装】2025年12月 全面 ・壁、天井 ・床 ・全室クロス ・建具 ・サッシ |
||
| 土地面積 | 174.4㎡(52.75坪) | 接道 | |
| 私道 | セットバック | ||
| 地目 | 宅地 | 地勢 | |
| 権利 | 所有権 |
||
| 都市計画 | 市街化区域 |
用途地域 | 1種中高 |
| 建ぺい/容積率 | 60% / 160% | 土地国土法 | |
| 許可番号 | 建築基準法 | ||
| 法令制限 | |||
| 小学区 | 桜井小学校 徒歩22分 (約1700m) | 中学区 | 鹿南中学校 徒歩24分 (約1900m) |
| 現況 | 空 | 引渡 | 相談 |
| その他費用 | |||
| 周辺環境 | コスモス 植木店 徒歩3分 (約230m) ファミリーマート TSUTAYA植木店 徒歩6分 (約460m) ショッピングプラザ ウエッキー 徒歩7分 (約510m) 植木郵便局 徒歩10分 (約760m) 桜井小学校 徒歩22分 (約1750m) 鹿南中学校 徒歩24分 (約1850m) マルキョウ 植木店 徒歩10分 (約790m) ダイレックス 植木店 徒歩10分 (約750m) セブンイレブン 植木松原店 徒歩13分 (約1020m) 熊本市北区役所 徒歩12分 (約890m) |
||
| 備考 | |||
| 物件番号 | 4570123 | 取引態様 | 媒介 |
取扱店舗情報
ハウスドゥ 大江 まつばや百貨店不動産株式会社 店舗詳細ページへ
| 電話番号 | 096-206-1230 |
|---|---|
| 所在地 | 〒862-0971 熊本県熊本市中央区大江1丁目2-19 |
| 営業時間 | 9:00~18:00 |
| 定休日 | 水曜日 |
| 宅建免許番号 | 熊本県知事(1)第5729号 |
| アクセス | 店舗への地図はこちら |

来店ご予約
熊本県熊本市北区で価格が似ている物件はこちら
- 熊本県
マイページ物件数 - 3,079件
最近見た物件
-
-

-
- 中古一戸建て
- 1億3,000万円
-
箕面市箕面4丁目
-
阪急電鉄箕面線箕面
-
-
-

-
- 新築一戸建て
- 3,590万円
-
岐阜市萱場東町10丁目
-
JR東海道本線岐阜
-
-
-

-
- 土地
- 3,500万円
-
安城市今本町1丁目
-
名鉄名古屋本線新安城
-
熊本県中古一戸建て新着物件
-
-

-
- 中古一戸建て
- 2,999万円
-
熊本市北区麻生田5丁目
-
熊本電気鉄道須屋駅
-
-
-

-
- 中古一戸建て
- 2,999万円
-
熊本市北区麻生田5丁目
-
熊本電気鉄道須屋駅
-
-
-

-
- 中古一戸建て
- 4,500万円
-
菊池郡菊陽町沖野2丁目
-
JR豊肥本線三里木駅
-
-
-

-
- 中古一戸建て
- 1,290万円
-
阿蘇郡西原村大字布田
-
JR豊肥本線肥後大津駅
-
-
-

-
- 中古一戸建て
- 1,290万円
-
阿蘇郡西原村大字布田
-
JR豊肥本線肥後大津駅
-
-
-

-
- 中古一戸建て
- 2,480万円
-
阿蘇市一の宮町宮地
-
JR豊肥本線宮地駅
-
-
-

-
- 中古一戸建て
- 3,598万円
-
熊本市東区健軍3丁目
-
熊本市健軍線健軍町駅
-
- お近くの店舗を探す
-
おすすめ物件
-
-

-
- 中古一戸建て
- 1,130万円
-
合志市須屋
-
熊本電気鉄道三ツ石
-
-
-

-
- 中古一戸建て
- 5,500万円
-
熊本市北区楡木2丁目
-
JR豊肥本線武蔵塚
-
-
-

-
- 中古一戸建て
- 1,130万円
-
合志市須屋
-
熊本電気鉄道須屋
-
-
-

-
- 中古一戸建て
- 1,758万円
-
熊本市南区日吉2丁目
-
JR鹿児島本線西熊本
-
-
-

-
- 中古一戸建て
- 750万円
-
熊本市北区徳王1丁目
-
JR鹿児島本線崇城大学前
-
-
-

-
- 中古一戸建て
- 4,900万円
-
合志市御代志
-
熊本電気鉄道御代志
-
-
-

-
- 中古一戸建て
- 1,670万円
-
熊本市南区城南町藤山
-
JR三角線富合
-
-
-

-
- 中古一戸建て
- 4,380万円
-
合志市御代志
-
熊本電気鉄道御代志
-
-
-

-
- 中古一戸建て
- 4,280万円
-
熊本市東区佐土原3丁目
-
熊本市健軍線健軍町
-
-
-

-
- 中古一戸建て
- 2,480万円
-
熊本市北区龍田8丁目
-
JR豊肥本線竜田口
-



















担当エージェント:上 貴大
☆ハウスドゥ大江☆
月々支払例
1,698万円借り入れの場合月々32,868円(頭金なし・ボーナス払い98,884円/年)
金利 0.768%変動金利(ネット銀行)返済期間40年※あくまでも一例です。