日野市栄町2丁目の中古戸建
掲載情報更新日:2026年05月08日 次回更新予定日:2026年05月22日
- 4,450万円
-
- 借入ご希望金額
万円 - 借入期間
年 - 借入金利
% - 月々のお支払い金額
円
- 借入ご希望金額
※ 月々のお支払例は目安の試算となりますので、実際の金額とは異なる場合がございます。詳しくは店舗までお問合わせください。
- 日野市栄町2丁目
-
JR中央本線『日野』 徒歩9分 (約710m)
JR中央本線『豊田』 徒歩42分 (約3300m)
日野市栄町2丁目一戸建て | 物件情報
駅徒歩9分×セキスイ施工。 静かな住環境に佇む上質中古邸宅。
■JR中央線「日野」駅徒歩9分の平坦アクセス
■第一種低層の落ち着いた住宅街に立地
■土地147㎡超×建物100㎡超のゆとりある邸宅
■ハウスメーカー(セキスイ)施工の安心品質
■車種により2台駐車可+1台カーポート付
■軽量鉄骨造2階建、収納豊富な間取り設計
■空室につき即内覧・即入居も可能
駅近の利便と静穏な住環境、
そしてハウスメーカー品質を同時に満たす一邸。
“次の暮らしを安心して始めたい方”へ、
ぜひ現地でご体感ください。
資料請求、お問合せ、心よりお待ちしております。
物件の設備
- バルコニー
- 南面バルコニー
物件の特徴
- 2階建
物件詳細情報
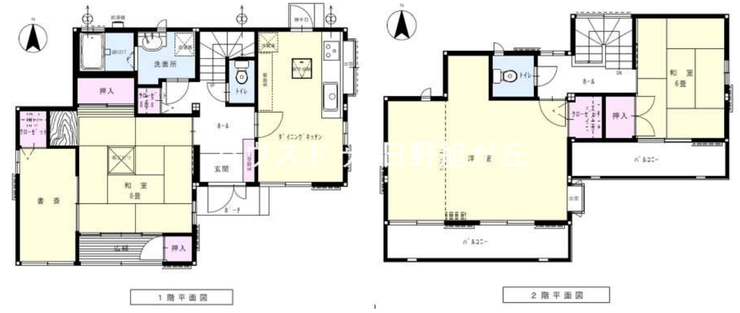
| 価格 | 4,450万円 | 間取り | 3DK |
|---|---|---|---|
| 物件種別 | 中古一戸建て | ||
| 所在地 | 東京都日野市栄町2丁目 | ||
| アクセス |
|
||
| 建物面積 | 公102.34㎡ | 駐車場 | あり 普通:1台 軽:1台 |
| 築年月 | 1995年(平成7年)09月築 | ||
| 建物構造 | 軽量鉄骨 2階建 2階建 | 工法 | |
| 主要採光 | 南向 | バルコニー | 南向10.00㎡ |
| 保証・評価 | |||
| リフォーム | |||
| 土地面積 | 公147.79㎡(44.70坪) | 接道 | |
| 私道 | 別:公111.52㎡(持分 1/5) | セットバック | |
| 地目 | 宅地 | 地勢 | |
| 権利 | 所有権 |
||
| 都市計画 | 市街化区域 |
用途地域 | 1種低層 |
| 建ぺい/容積率 | 40% / 80% | 土地国土法 | |
| 許可番号 | 建築基準法 | ||
| 法令制限 | |||
| 小学区 | 東光寺小学校 徒歩11分 (約840m) | 中学区 | 大坂上中学校 徒歩18分 (約1400m) |
| 現況 | 空 | 引渡 | 相談 |
| その他費用 | |||
| 周辺環境 | ミニストップ 日野栄店 徒歩5分 (約360m) 姫森公園 徒歩5分 (約360m) ファミリマート 日野栄町店 徒歩5分 (約380m) さかえまち児童館 徒歩5分 (約390m) ウェルパーク薬局 日野栄町店 徒歩6分 (約430m) 高瀬内科クリニック 徒歩7分 (約510m) いなげや 日野栄町店 徒歩6分 (約470m) コープみらい 日野駅前店 徒歩7分 (約510m) 日野駅前病院 徒歩10分 (約760m) 日野市立日野図書館 徒歩15分 (約1140m) |
||
| 備考 | 徒歩9分×セキスイ施工。 静かな住環境に佇む上質中古邸宅。 ■JR中央線「日野」駅徒歩9分の平坦アクセス ■第一種低層の落ち着いた住宅街に立地 ■土地147㎡超×建物100㎡超のゆとりある邸宅 ■ハウスメーカー(セキスイ)施工の安心品質 ■車種により2台駐車可+1台カーポート付 ■軽量鉄骨造2階建、収納豊富な間取り設計 ■空室につき即内覧・即入居も可能 駅近の利便と静穏な住環境、 そしてハウスメーカー品質を同時に満たす一邸。 “次の暮らしを安心して始めたい方”へ、 ぜひ現地でご体感ください。 見学予約・資料請求受付中です。 |
||
| 物件番号 | 4575167 | 取引態様 | 媒介 |
取扱店舗情報
| 電話番号 | 042-506-2072 |
|---|---|
| 所在地 | 〒191-0065 東京都日野市旭が丘2丁目7-6 マルトコビル101号室 |
| 営業時間 | 10:00~17:30(土日~18:00) |
| 定休日 | 水曜日、祝日、年末年始 |
| 宅建免許番号 | 東京都知事(1)第113228号 |
| アクセス | 店舗への地図はこちら |

来店ご予約
東京都日野市で価格が似ている物件はこちら
- 東京都
マイページ物件数 - 5,878件
最近見た物件
-
-

-
- 土地
- 748万円
-
防府市中西
-
JR山陽本線防府
-
-
-

-
- 土地
- 2,980万円
-
高槻市奥天神町2丁目
-
JR東海道線高槻
-
-
-

-
- 土地
- 2,600万円
-
尾道市栗原町
-
JR山陽新幹線新尾道
-
東京都中古一戸建て新着物件
-
-

-
- 中古一戸建て
- 8,980万円
-
練馬区南大泉4丁目
-
西武池袋・豊島線保谷駅
-
-
-

-
- 中古一戸建て
- 1,500万円
-
江東区大島4丁目
-
都営新宿線大島駅
-
-
-

-
- 中古一戸建て
- 2,280万円
-
八王子市弐分方町
-
JR中央本線西八王子駅
-
-
-

-
- 中古一戸建て
- 4,000万円
-
小平市小川町1丁目
-
西武拝島線東大和市駅
-
-
-

-
- 中古一戸建て
- 1,580万円
-
八王子市泉町
-
JR中央本線西八王子駅
-
-
-

-
- 中古一戸建て
- 9,280万円
-
世田谷区玉川台1丁目
-
東急田園都市線用賀駅
-
-
-

-
- 中古一戸建て
- 6,630万円
-
小平市上水南町4丁目
-
西武多摩湖線一橋学園駅
-
- お近くの店舗を探す
-
おすすめ物件
-
-

-
- 中古一戸建て
- 3,680万円
-
板橋区東新町2丁目
-
東武東上線ときわ台
-
-
-

-
- 中古一戸建て
- 6,599万円
-
練馬区西大泉1丁目
-
西武池袋・豊島線保谷
-
-
-

-
- 中古一戸建て
- 2,180万円
-
葛飾区新宿5丁目
-
JR千代田・常磐緩行線金町
-
-
-

-
- 中古一戸建て
- 700万円
-
青梅市大門1丁目
-
JR青梅線東青梅
-
-
-

-
- 中古一戸建て
- 6,980万円
-
江戸川区北葛西5丁目
-
都営新宿線船堀
-
-
-

-
- 中古一戸建て
- 3,480万円
-
八王子市石川町
-
JR中央本線八王子
-
-
-

-
- 中古一戸建て
- 3,480万円
-
足立区辰沼2丁目
-
東京メトロ千代田線北綾瀬
-
-
-

-
- 中古一戸建て
- 1,640万円
-
足立区西保木間1丁目
-
東武伊勢崎・大師線竹ノ塚
-
-
-

-
- 中古一戸建て
- 2,380万円
-
足立区辰沼2丁目
-
東京メトロ千代田線北綾瀬
-
-
-

-
- 中古一戸建て
- 7,180万円
-
練馬区関町南2丁目
-
西武新宿線上石神井
-































担当エージェント:野口力
☆JR中央線「日野」駅徒歩9分の平坦アプローチ
☆第一種低層住居専用地域の落ち着いた街並み
☆土地約147㎡・建物約102㎡のゆとりある規模感
☆ハウスメーカー〈セキスイ〉施工の安心品質
☆車種により2台駐車可能+カーポート1台分付
☆軽量鉄骨造ならではの耐久性と安定感
☆空室のためスムーズなご見学・お引渡しが可能
駅近の利便性を備えながら、
静かな住宅街でゆったり暮らせる希少な条件。
さらにハウスメーカー施工という
“長く安心して住める価値”が備わっています。
価格・立地・品質のバランスが整った、
本気でおすすめしたい一邸です。
ぜひ一度、現地でこの空気感をご体感ください。