未入居物件 府中市紅葉丘1丁目全2棟B号棟
NEW 01.31掲載情報更新日:2026年01月31日 次回更新予定日:2026年02月14日
- 4,280万円
-
- 借入ご希望金額
万円 - 借入期間
年 - 借入金利
% - 月々のお支払い金額
円
- 借入ご希望金額
※ 月々のお支払例は目安の試算となりますので、実際の金額とは異なる場合がございます。詳しくは店舗までお問合わせください。
- 府中市紅葉丘1丁目
-
西武多摩川線『多磨』 徒歩5分 (約400m)
未入居物件 府中市紅葉丘1丁目全2棟B号棟一戸建て | 物件情報
【仲介手数料50キャンペーン対象物件】仲介手数料が半額です。賢くお家を買うならハウスドゥ立川北で
・ローンシュミレーションからライフプランの設計まで無料で作成いたします。お家の見るチェックポイントや住宅ローンの事などなんでもお尋ねください。ご納得いただける物件が見つかるまでご提案させていただきます。ぜひ一度お越しください。お待ちしております。
物件の設備
- 電気
- 公営水道
- 公共下水
- 都市ガス
- コンロ三口
- システムキッチン
- ユニットバス
- 追焚機能
- 浴室暖房
- 浴室乾燥機
- 浴室に窓
- トイレ
- 温水洗浄便座
- 室内洗濯機置場
- 洗髪洗面化粧台
- 洗面所独立
- リビング階段
- ディンプルキー
- モニタ付インターホン
- 火災警報器/報知機
- 2面採光
- フローリング
- クローゼット
- 納戸
- 屋根裏収納
- シューズボックス
物件の特徴
- 小学校徒歩10分以内
- スーパーが近い
- 市街地が近い
- 都市近郊
- 通風良好
- 2階建
- 外壁サイディング
- バリアフリー
- 建築確認完了検査済証
- 新築
- 増改築設計図書
- 即入居可
物件詳細情報
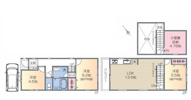
| 価格 | 4,280万円 | 間取り | 1LDK+S |
|---|---|---|---|
| 物件種別 | 中古一戸建て | ||
| 所在地 | 東京都府中市紅葉丘1丁目39-16 B号棟 | ||
| アクセス |
|
||
| 建物面積 | 69.2㎡ | 駐車場 | あり 普通:1台 |
| 築年月 | 2024年(令和6年)12月築 | ||
| 建物構造 | 木造 2階建 | 工法 | |
| 主要採光 | 南西向 | バルコニー | |
| 保証・評価 | |||
| リフォーム | |||
| 土地面積 | 58.5㎡(17.69坪) | 接道 | 北西側(公道)幅 約4.0m 間口 約4.75m |
| 私道 | セットバック | ||
| 地目 | 宅地 | 地勢 | |
| 権利 | 所有権 |
||
| 都市計画 | 市街化区域 |
用途地域 | 1種中高 |
| 建ぺい/容積率 | 60% / 200% | 土地国土法 | |
| 許可番号 | 建築基準法 | ||
| 法令制限 | |||
| 小学区 | 府中第十小学校 徒歩10分 (約750m) | 中学区 | 府中第二中学校 徒歩10分 (約790m) |
| 現況 | 完工済 | 引渡 | 即 |
| その他費用 | |||
| 備考 | ☆西武多摩川線「多磨」駅徒歩5分! セブンイレブン...徒歩約1分/ローソン…徒歩約6分/ファミリーマート…徒歩約5分/フーズマーケットさえき…徒歩約12分/さくらんぼ保育園…徒歩約7分/府中つくし幼稚園…徒歩約5分 府中紅葉丘郵便局…徒歩約2分/武蔵野森公園…約9分 |
||
| 物件番号 | 4578311 | 取引態様 | 媒介 |
取扱店舗情報
ハウスドゥ 立川北 株式会社シティリノベーション 店舗詳細ページへ
| 電話番号 | 042-537-9361 |
|---|---|
| 所在地 | 〒190-0004 東京都立川市柏町3-19-14 フレンテ1F |
| 営業時間 | 9:00~18:00 |
| 定休日 | GW、夏季、冬季 |
| 宅建免許番号 | 東京都知事(2)第100954号 |
| アクセス | 店舗への地図はこちら |

来店ご予約
東京都府中市で価格が似ている物件はこちら
- 東京都
マイページ物件数 - 5,145件
最近見た物件
東京都中古一戸建て新着物件
- お近くの店舗を探す
-
おすすめ物件
-
-

-
- 中古一戸建て
- 4,280万円
-
青梅市滝ノ上町
-
JR青梅線青梅
-
-
-

-
- 中古一戸建て
- 4,780万円
-
国分寺市光町3丁目
-
JR中央本線国立
-
-
-

-
- 中古一戸建て
- 1億3,748万円
-
世田谷区上馬3丁目
-
東急田園都市線駒沢大学
-
-
-

-
- 中古一戸建て
- 3,280万円
-
葛飾区西水元6丁目
-
JR千代田・常磐緩行線亀有
-
-
-

-
- 中古一戸建て
- 6,780万円
-
練馬区東大泉7丁目
-
西武池袋・豊島線大泉学園
-
-
-

-
- 中古一戸建て
- 4,400万円
-
足立区一ツ家1丁目
-
つくばエクスプレス六町
-
-
-

-
- 中古一戸建て
- 2,480万円
-
東久留米市南町4丁目
-
西武池袋・豊島線ひばりケ丘
-
-
-

-
- 中古一戸建て
- 3,870万円
-
足立区本木1丁目
-
日暮里舎人ライナー扇大橋
-
-
-

-
- 中古一戸建て
- 8,650万円
-
板橋区常盤台1丁目
-
東武東上線ときわ台
-
-
-

-
- 中古一戸建て
- 4,980万円
-
大田区東糀谷4丁目
-
京急空港線大鳥居
-













担当エージェント:板谷 和友樹
ハウスドゥ立川北のホームページをご覧頂きありがとうございます。
お客様の多くがお家を買うのに不安があるかと思われます。ハウスドゥではお客様の不安や問題解決に一つ一つ誠心誠意お答えいたします。また、お家探しに役立つ多くの物件に関する情報を掲載しております。
ハウスドゥ立川北ではお客様お一人お一人にあったご提案を心がけており、ローンシュミレーションや人工知能を使ったライフプランの作成(要予約)を行いお客様の不安を解決いたします
■頭金は必要なのか?
■ローンは払っていけるのか?
■どのタイミングで住み替えや引越しが出来るのか?etc
お気軽に相談できるハウスドゥ立川北へお問い合わせ下さい
◆ご予約方法◆
直接お電話ください。【0120-537-936】
メールでのご予約も承ります。お気軽にご来店ください。
物件によっては事前に鍵の手配が必要な場合がありますので、お早目にご連絡をいただけるとご案内がスムーズです。
◆ご案内方法◆
①ご自宅へお迎え②最寄駅や周辺地での待ち合わせ③ハウスドゥ立川北店へのご来店などご相談ください。
◆キッズスペースもご用意しております◆