吉川市中曽根1丁目 中古戸建
掲載情報更新日:2026年05月09日 次回更新予定日:2026年05月23日
- 2,890万円
-
- 借入ご希望金額
万円 - 借入期間
年 - 借入金利
% - 月々のお支払い金額
円
- 借入ご希望金額
※ 月々のお支払例は目安の試算となりますので、実際の金額とは異なる場合がございます。詳しくは店舗までお問合わせください。
- 吉川市中曽根1丁目
-
JR武蔵野線『吉川』 徒歩20分 (約1600m)
JR武蔵野線『吉川美南』 徒歩22分 (約1700m)
吉川市中曽根1丁目 中古戸建一戸建て | 物件情報
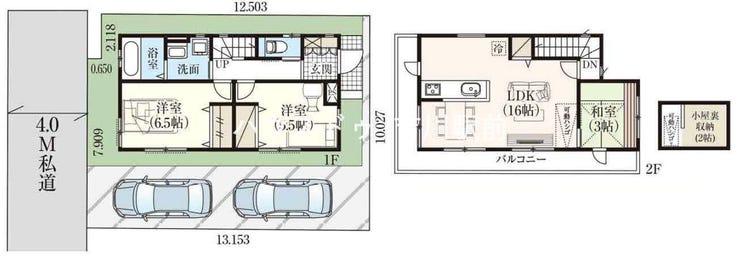
2階リビングの3LDK!L字型ワイドバルコニーと屋根裏収納付き!
2025年12月リフォーム完成済の3LDK!2階リビングで採光良好!L字型ワイドバルコニーと屋根裏収納を備え、収納力もしっかり確保!カースペース2台分!周辺施設も充実した利便性の高い環境です!
物件の設備
- 公営水道
- 公共下水
- プロパンガス
- 個別プロパン
- 浄水器
- カウンターキッチン
- システムキッチン
- バス
- ユニットバス
- バス1坪以上
- 追焚機能
- 浴室暖房
- 浴室乾燥機
- 浴室に窓
- トイレ
- 室内洗濯機置場
- 洗髪洗面化粧台
- 洗面所独立
- フローリング張替
- クローゼット2箇所
- 屋根裏収納
- シューズボックス
- バルコニー
- 2面バルコニー
物件の特徴
- 内装リフォーム済
- 2階建
- 即入居可
物件詳細情報
| 価格 | 2,890万円 | 間取り | 3LDK |
|---|---|---|---|
| 物件種別 | 中古一戸建て | ||
| 所在地 | 埼玉県吉川市中曽根1丁目 | ||
| アクセス |
|
||
| 建物面積 | 公76.18㎡ | 駐車場 | あり 普通:2台 |
| 築年月 | 2014年(平成26年)11月築 | ||
| 建物構造 | 木造 2階建 | 工法 | |
| 主要採光 | 南向 | バルコニー | |
| 保証・評価 | |||
| リフォーム | 【水回り】2025年12月 キッチン・浴室・トイレ・洗面 キッチン・浴室・洗面台・トイレコーティング 【内装】2025年12月 壁、天井 ・床 全室壁・天井クロス張替、2階和室畳表替え、1階和室→洋室に変更、全室スイッチ・コンセントパネル交換、インターホン交換、鍵交換、ハウスクリーニング 【その他】2025年12月 バルコニートップコート、防蜂処理 |
||
| 土地面積 | 公130.5㎡(39.47坪) | 接道 | 西側(私道)幅 約4.0m 間口 約7.90m |
| 私道 | セットバック | ||
| 地目 | 宅地 | 地勢 | |
| 権利 | 所有権 |
||
| 都市計画 | 市街化区域 |
用途地域 | 1種低層 |
| 建ぺい/容積率 | 50% / 80% | 土地国土法 | |
| 許可番号 | 建築基準法 | ||
| 法令制限 | 景観法 | ||
| 小学区 | 中曽根小学校 徒歩7分 (約500m) | 中学区 | 吉川中学校 徒歩37分 (約2900m) |
| 現況 | 空 | 引渡 | 即 |
| その他費用 | |||
| 周辺環境 | セブンイレブン 埼玉吉川南店 徒歩7分 (約510m) ドラッグセイムス 吉川けやき通り店 徒歩8分 (約590m) 中曽根公園 徒歩9分 (約660m) 吉川市立中曽根小学校 徒歩10分 (約800m) ビックエー 吉川高久店 徒歩11分 (約850m) 美南こころの森クリニック 徒歩14分 (約1050m) ビッグ・エー 吉川高富店 徒歩15分 (約1170m) 美南4丁目公園 徒歩16分 (約1240m) しまむら 吉川美南店 徒歩16分 (約1250m) 吉川市立吉川中学校 徒歩18分 (約1380m) |
||
| 備考 | 電波障害によるケーブルTV,共聴アンテナの申し込みはお客様の負担となります。 所有権移転登記手続きにおいて当社指定の司法書士のを利用していただきます。 図面と現況に相違がある場合は現況を優先とします。 本物件のカースペースには車種により駐車できない場合がございます。 JIO既存住宅かし保険では、構造・防水等の隠れた瑕疵によって生じた損害について、住建業者または検査事業者が補修または賠償した場合には被保険者である事業者へ保険金が支払われます。万が一、当社が倒産等の場合はJIOから買主様へ直接保険金が支払われます。 西側私道18㎡持分あり。一部通行掘削承諾書あり。 |
||
| 物件番号 | 4579969 | 取引態様 | 媒介 |
取扱店舗情報
ハウスドゥ 吉川駅前 不二光エステート株式会社 店舗詳細ページへ
| 電話番号 | 048-940-2747 |
|---|---|
| 所在地 | 〒342-0045 埼玉県吉川市木売1丁目9番地4-101 |
| 営業時間 | 10:00~18:30 |
| 定休日 | 水曜日、GW、夏季、年末年始 |
| 宅建免許番号 | 埼玉県知事(1)第25510号 |
| アクセス | 店舗への地図はこちら |

来店ご予約
埼玉県吉川市で価格が似ている物件はこちら
- 埼玉県
マイページ物件数 - 3,222件
最近見た物件
-
-

-
- 中古一戸建て
- 2,650万円
-
豊橋市多米東町3丁目
-
「多米東町二丁目」停 徒歩
-
-
-

-
- 新築一戸建て
- 2,890万円
-
甲府市中小河原町
-
JR中央本線甲府
-
-
-

-
- 中古一戸建て
- 2,930万円
-
豊橋市北山町
-
豊橋鉄道渥美線南栄
-
埼玉県中古一戸建て新着物件
- お近くの店舗を探す
-
おすすめ物件
-
-

-
- 中古一戸建て
- 1,680万円
-
上尾市泉台3丁目
-
JR高崎線桶川
-
-
-

-
- 中古一戸建て
- 1,630万円
-
吉川市吉川2丁目
-
JR武蔵野線吉川
-
-
-

-
- 中古一戸建て
- 1,350万円
-
北葛飾郡松伏町田中3丁目
-
東武伊勢崎・大師線北越谷
-
-
-

-
- 中古一戸建て
- 2,699万円
-
三郷市早稲田8丁目
-
JR武蔵野線三郷
-
-
-

-
- 中古一戸建て
- 2,699万円
-
さいたま市南区松本4丁目
-
JR武蔵野線西浦和
-
-
-

-
- 中古一戸建て
- 5,880万円
-
さいたま市中央区下落合4丁目
-
JR埼京線北与野
-
-
-

-
- 中古一戸建て
- 1,640万円
-
北葛飾郡杉戸町大字堤根
-
東武伊勢崎・大師線北春日部
-
-
-

-
- 中古一戸建て
- 2,600万円
-
入間市扇台6丁目
-
西武池袋・豊島線入間市
-
-
-

-
- 中古一戸建て
- 680万円
-
さいたま市南区大字大谷口
-
JR京浜東北・根岸線浦和
-
-
-

-
- 中古一戸建て
- 1,980万円
-
さいたま市南区大字大谷口
-
JR京浜東北・根岸線浦和
-




























担当エージェント:小船 有貴
2025年12月リフォーム完成済の3LDK!