本日ご案内可能 未使用戸建 菊池郡大津町大津 4号棟
掲載情報更新日:2026年04月09日 次回更新予定日:2026年04月23日
- 2,980万円
-
- 借入ご希望金額
万円 - 借入期間
年 - 借入金利
% - 月々のお支払い金額
円
- 借入ご希望金額
※ 月々のお支払例は目安の試算となりますので、実際の金額とは異なる場合がございます。詳しくは店舗までお問合わせください。
- 菊池郡大津町大字大津
-
JR豊肥本線『肥後大津』 徒歩42分 (約3300m)
JR豊肥本線『瀬田』 徒歩64分 (約5100m)
九州産交バス『美咲野』 徒歩9分 (約670m)
本日ご案内可能 未使用戸建 菊池郡大津町大津 4号棟一戸建て | 物件情報
《本日ご案内できます!》☆仲介手数料無料物件(95万円相当がお得!)お気軽にお問合せください♪
■【最安値保証】諸費用で損したくない方必見!熊本県全域の物件、どこよりも安く買えます◎
〈長期優良住宅〉国が認めた高品質で長持ちする家。税金や保険料の割引も最大級に受けられます。
〈省令準耐火構造〉火災に強く、安心感とともに火災保険料も大幅に抑えられます。
〈耐震等級3〉大きな地震から家族を守る、高水準の耐震性能。
〈断熱等性能等級5〉家中どこでも快適に。冷暖房代を3割カットできるかも!
■熊本で「一番安く、賢く」家を買うなら『ハウスドゥ熊本桜町』へ!
私たちは「物件価格+諸費用」の総額で地域一番の安さに挑戦しています。
1.【最安値保証】 諸費用を最小限に。お見積りのセカンドオピニオンも受付中。
2.【全物件ご紹介】 熊本県内の全物件が対象。窓口ひとつで家探しを完結。
3.【即日内覧ツアー】 1日で効率よく比較!スケジュール調整はすべてお任せください
4.【交渉力に自信】 「もう少し安ければ…」を現実に。売主様への価格交渉も得意です。
「自分たちの条件でいくら安くなる?」「住宅ローンが不安」といったご相談だけでもお気軽にどうぞ!
物件の設備
- 電気
- 上水道
- 公営水道
- 下水道
- 公共下水
- 側溝
- プロパンガス
- 個別プロパン
- 給湯
- 食器乾燥機
- 食器洗浄乾燥機
- IHクッキングヒータ
- コンロ三口
- グリル
- システムキッチン
- バス
- オートバス
- バス1坪以上
- 追焚機能
- トイレ
- 温水洗浄便座
- 室内洗濯機置場
- 洗髪洗面化粧台
- 洗面所独立
- 室内物干機
- エアコン
- 間接照明
- ダウンライト
- フットライト
- 人感照明センサー
- 省エネ給湯器
- モニタ付インターホン
- 火災警報器/報知機
- 複層ガラス
- 全居室複層ガラス
- 全室フローリング
- 24時間換気システム
- クローゼット
- ウォークインクローゼット
- 床下収納
- 全居室収納
- シューズボックス
- シューズインクローク
- 庭
- 南庭
物件の特徴
- 南向
- 2沿線利用可
- ゴルフ場が近い
- 閑静な住宅街
- 通風良好
- 陽当り良好
- 2階建
- デザイナーズ物件
- 即入居可
オープンハウス・イベント情報
開催日時:毎週土日祝 09:00~19:00
開催場所:熊本県菊池郡大津町
\\現地見学会ご予約受付中// ○平日・土日祝いつでも承ります!! 〇お仕事帰りもOK!早朝・19時以降も対応致します! ◆◇お問い合わせ◇◆ 電話:096-274-4666 または 見学予約フォームにて事前にご予約をお願いします♪ ◆◇見学のご予約◇◆ 事前にご希望日時をお申し…
物件詳細情報
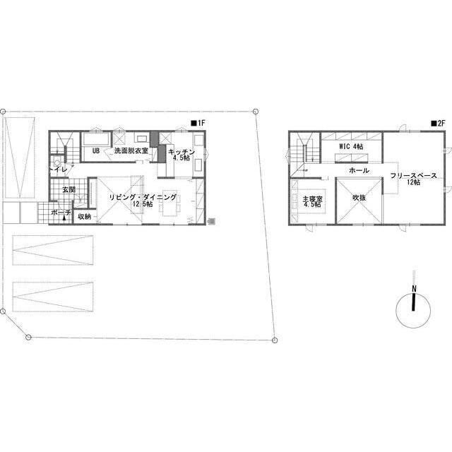
| 価格 | 2,980万円 | 間取り | 3LDK |
|---|---|---|---|
| 物件種別 | 中古一戸建て | ||
| 所在地 | 熊本県菊池郡大津町大字大津2399-17付近 4号棟 | ||
| アクセス |
|
||
| 建物面積 | 90.05㎡ | 駐車場 | あり 普通:2台 |
| 築年月 | 2023年(令和5年)06月築 | ||
| 建物構造 | 木造 2階建 | 工法 | |
| 主要採光 | 南向 | バルコニー | |
| 保証・評価 | |||
| リフォーム | |||
| 土地面積 | 公230.75㎡(69.80坪) | 接道 | |
| 私道 | セットバック | ||
| 地目 | 宅地 | 地勢 | |
| 権利 | 所有権 |
||
| 都市計画 | 非線引区域 |
用途地域 | 2種低層 |
| 建ぺい/容積率 | 50% / 100% | 土地国土法 | |
| 許可番号 | 建築基準法 | ||
| 法令制限 | |||
| 小学区 | 美咲野小学校 徒歩23分 (約1800m) | 中学区 | 大津北中学校 徒歩25分 (約2000m) |
| 現況 | 空 | 引渡 | 即 |
| その他費用 | |||
| 周辺環境 | 美咲野小学校 徒歩15分 (約1170m) 大津北中学校 徒歩28分 (約2170m) ぴちゅの森子ども園 徒歩13分 (約1010m) ローソン 大津美咲野店 徒歩6分 (約430m) メガセンタートライアル大津店 徒歩46分 (約3620m) のざわ医院 徒歩32分 (約2550m) 大津居島郵便局 徒歩36分 (約2860m) イオン大津ショッピングプラザ 徒歩42分 (約3290m) マクドナルド 熊本大津店 徒歩39分 (約3090m) 阿蘇大津ゴルフクラブ【アコーディア・ゴルフ】 徒歩86分 (約6850m) |
||
| 備考 | ・美咲野小学校まで徒歩15分(約1170m) ・大津北中学校まで徒歩28分(約2170m) ・ぴちゅの森子ども園まで徒歩13分(約1010m) ・ローソン 大津美咲野店まで徒歩6分(約430m) ・メガセンタートライアル大津店まで徒歩46分(約3620m) ・のざわ医院まで徒歩32分(約2550m) ・大津居島郵便局まで徒歩36分(約2860m) ・イオン大津ショッピングプラザまで徒歩42分(約3290m) ・マクドナルド 熊本大津店まで徒歩39分(約3090m) ・阿蘇大津ゴルフクラブ【アコーディア・ゴルフ】まで徒歩86分(約6850m) |
||
| 物件番号 | 4580449 | 取引態様 | 媒介 |
取扱店舗情報
ハウスドゥ 熊本桜町 株式会社Remado 店舗詳細ページへ
| 電話番号 | 096-274-4665 |
|---|---|
| 所在地 | 〒860-0805 熊本県熊本市中央区桜町1-25 |
| 営業時間 | 10:00~18:00 |
| 定休日 | 年末年始, 夏季休暇(お盆) |
| 宅建免許番号 | 熊本県知事(1)第5556号 |
| アクセス | 店舗への地図はこちら |

来店ご予約
熊本県菊池郡大津町で価格が似ている物件はこちら
- 熊本県
マイページ物件数 - 3,056件
最近見た物件
-
-

-
- 中古一戸建て
- 1,480万円
-
伊豆市柏久保
-
伊豆箱根鉄道駿豆線修善寺
-
-
-

-
- 土地
- 2,698万円
-
熊本市東区長嶺西1丁目
-
日赤病院北口
-
-
-

-
- 土地
- 50万円
-
土岐市泉町大富
-
JR中央本線土岐市
-
熊本県中古一戸建て新着物件
-
-

-
- 中古一戸建て
- 1,698万円
-
熊本市西区上高橋1丁目
-
JR九州新幹線熊本駅
-
-
-

-
- 中古一戸建て
- 1,548万円
-
熊本市北区植木町荻迫
-
JR鹿児島本線植木駅
-
-
-

-
- 中古一戸建て
- 2,098万円
-
熊本市西区島崎5丁目
-
JR鹿児島本線上熊本駅
-
-
-

-
- 中古一戸建て
- 2,398万円
-
熊本市北区清水東町
-
熊本電気鉄道八景水谷駅
-
-
-

-
- 中古一戸建て
- 1,998万円
-
熊本市南区幸田1丁目
-
JR鹿児島本線西熊本駅
-
-
-

-
- 中古一戸建て
- 1,398万円
-
宇土市走潟町
-
JR鹿児島本線宇土駅
-
-
-

-
- 中古一戸建て
- 590万円
-
上益城郡御船町大字滝尾
-
JR豊肥本線南熊本駅
-
- お近くの店舗を探す
-
おすすめ物件
-
-

-
- 中古一戸建て
- 2,790万円
-
合志市合生
-
熊本電気鉄道御代志
-
-
-

-
- 中古一戸建て
- 3,098万円
-
合志市幾久富
-
JR豊肥本線光の森
-
-
-

-
- 中古一戸建て
- 2,480万円
-
熊本市北区龍田8丁目
-
JR豊肥本線竜田口
-
-
-

-
- 中古一戸建て
- 1,798万円
-
熊本市東区小山5丁目
-
JR豊肥本線武蔵塚
-
-
-

-
- 中古一戸建て
- 2,398万円
-
熊本市南区野口1丁目
-
JR鹿児島本線西熊本
-
-
-

-
- 中古一戸建て
- 1,670万円
-
熊本市南区城南町藤山
-
JR三角線富合
-
-
-

-
- 中古一戸建て
- 2,570万円
-
合志市野々島
-
熊本電気鉄道御代志
-
-
-

-
- 中古一戸建て
- 3,498万円
-
菊池郡菊陽町光の森4丁目
-
JR豊肥本線光の森
-
-
-

-
- 中古一戸建て
- 5,500万円
-
熊本市北区楡木2丁目
-
JR豊肥本線武蔵塚
-
-
-

-
- 中古一戸建て
- 4,280万円
-
熊本市東区佐土原3丁目
-
熊本市健軍線健軍町
-























担当エージェント:藤原 章裕
【月々の支払い例】
2900万円借り入れの場合
月々58,384円(頭金・ボーナス払いなし)
金利0.780%の場合(SBI新生銀行、金利優遇有)
変動金利 返済期間50年
※あくまで一例。条件有。
【周辺環境】
・美咲野小学校まで徒歩15分(約1170m)
・大津北中学校まで徒歩28分(約2170m)
・ぴちゅの森子ども園まで徒歩13分(約1010m)
・ローソン 大津美咲野店まで徒歩6分(約430m)
・メガセンタートライアル大津店まで徒歩46分(約3620m)
・のざわ医院まで徒歩32分(約2550m)
・大津居島郵便局まで徒歩36分(約2860m)
・イオン大津ショッピングプラザまで徒歩42分(約3290m)
・マクドナルド 熊本大津店まで徒歩39分(約3090m)
・阿蘇大津ゴルフクラブ【アコーディア・ゴルフ】まで徒歩86分(約6850m)
お気軽にご相談ください!
お問い合わせは『ハウスドゥ熊本桜町』まで♪