【西八幡3丁目】内・外装リフォーム済
掲載情報更新日:2026年04月09日 次回更新予定日:2026年04月23日
- 2,390万円
-
- 借入ご希望金額
万円 - 借入期間
年 - 借入金利
% - 月々のお支払い金額
円
- 借入ご希望金額
※ 月々のお支払例は目安の試算となりますので、実際の金額とは異なる場合がございます。詳しくは店舗までお問合わせください。
- 平塚市西八幡3丁目
-
JR東海道本線『平塚』 バス乗車12分 古河電工入口 停 徒歩6分 (約450m)
【西八幡3丁目】内・外装リフォーム済一戸建て | 物件情報
■商業施設が充実した利便性の良いエリア
■平塚駅までのアクセス良好
■商業施設が充実した利便性の良いエリア
■カースペース1台分あり
■リフォーム済物件(2026年1月完工済)
※前面道路に都市ガス配管が通っていますが、本物件はプロパンガスとなります
変更の場合の費用負担は買主様負担となります(プロパンガス解約金を含む)
物件の設備
- 上水道
- 公営水道
- 下水道
- 公共下水
- プロパンガス
- 個別プロパン
- 浴室に窓
- トイレ
- トイレ2箇所
- 全居室6畳以上
- フローリング張替
物件の特徴
- 内装リフォーム済
- 外装リフォーム済
- 内外装リフォーム済
- 2階建
物件詳細情報
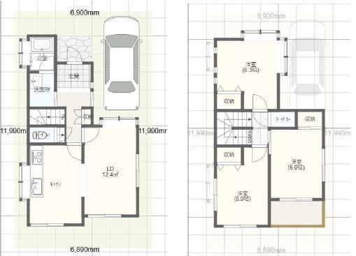
| 価格 | 2,390万円 | 間取り | 3LDK |
|---|---|---|---|
| 物件種別 | 中古一戸建て | ||
| 所在地 | 神奈川県平塚市西八幡3丁目 | ||
| アクセス |
|
||
| 建物面積 | 公78.07㎡ | 駐車場 | あり 普通:1台 |
| 築年月 | 1996年(平成8年)06月築 | ||
| 建物構造 | 木造 スレート葺 2階建 | 工法 | |
| 主要採光 | バルコニー | ||
| 保証・評価 | |||
| リフォーム | 【水回り】2026年01月 キッチン・浴室・トイレ・洗面・給湯器 【外装】2026年01月 外壁 ・屋根 【内装】2026年01月 壁、天井 ・床 ・全室クロス |
||
| 土地面積 | 公82.6㎡(24.98坪) | 接道 | 北側(公道)幅 約5.4m |
| 私道 | セットバック | ||
| 地目 | 宅地 | 地勢 | その他 |
| 権利 | 所有権 |
||
| 都市計画 | 市街化区域 |
用途地域 | 1種住居 |
| 建ぺい/容積率 | 60% / 200% | 土地国土法 | |
| 許可番号 | 建築基準法 | ||
| 法令制限 | |||
| 小学区 | 八幡小学校 徒歩10分 (約800m) | 中学区 | 神明中学校 徒歩8分 (約600m) |
| 現況 | 空 | 引渡 | 相談 |
| その他費用 | |||
| 周辺環境 | 八幡小学校 徒歩10分 (約800m) 神明中学校 徒歩8分 (約600m) 認定こども園大野幼稚園 徒歩8分 (約630m) ローソン+スリーエフ 西八幡4丁目店 徒歩3分 (約230m) いなげや 四之宮店 徒歩11分 (約870m) クリエイトS・D 東八幡店 徒歩10分 (約790m) 平塚市総合公園 徒歩12分 (約920m) |
||
| 備考 | ■平塚駅までのアクセス良好 ■商業施設が充実した利便性の良いエリア ■カースペース1台分あり ■リフォーム済物件(2026年1月完工済) ※前面道路に都市ガス配管が通っていますが、本物件はプロパンガスとなります 変更の場合の費用負担は買主様負担となります(プロパンガス解約金を含む) |
||
| 物件番号 | 4587021 | 取引態様 | 媒介 |
取扱店舗情報
| 電話番号 | 0463-24-8885 |
|---|---|
| 所在地 | 〒254-0073 神奈川県平塚市西八幡2丁目9-1 |
| 営業時間 | 9:00~18:00 |
| 定休日 | 第1・3火曜日、水曜日、年末年始 |
| 宅建免許番号 | 神奈川県知事(3)第28824号 |
| アクセス | 店舗への地図はこちら |

来店ご予約
神奈川県平塚市で価格が似ている物件はこちら
- 神奈川県
マイページ物件数 - 2,979件
最近見た物件
神奈川県中古一戸建て新着物件
-
-

-
- 中古一戸建て
- 5,480万円
-
川崎市幸区鹿島田3丁目
-
JR南武線平間駅
-
-
-

-
- 収益
- 1,020万円
-
横須賀市長坂3丁目
-
京急本線横須賀中央駅
-
-
-

-
- 中古一戸建て
- 1,290万円
-
横須賀市衣笠町
-
JR横須賀線衣笠駅
-
-
-

-
- 中古一戸建て
- 2,990万円
-
横須賀市長坂3丁目
-
JR横須賀線衣笠駅
-
-
-

-
- 中古一戸建て
- 898万円
-
横須賀市鴨居2丁目
-
京急本線浦賀駅
-
-
-

-
- 中古一戸建て
- 3,399万円
-
川崎市多摩区生田5丁目
-
小田急小田原線生田駅
-
-
-

-
- 中古一戸建て
- 680万円
-
川崎市宮前区西野川3丁目
-
横浜市営地下鉄グリーンライン北山田駅
-
- お近くの店舗を探す
-
おすすめ物件
-
-

-
- 中古一戸建て
- 3,480万円
-
横浜市南区永田東1丁目
-
京急本線井土ヶ谷
-
-
-

-
- 中古一戸建て
- 7,200万円
-
横浜市中区滝之上
-
JR根岸線山手
-
-
-

-
- 中古一戸建て
- 1億3,800万円
-
横浜市中区豆口台
-
JR京浜東北・根岸線山手
-
-
-

-
- 中古一戸建て
- 3,180万円
-
平塚市富士見町
-
JR東海道本線平塚
-
-
-

-
- 中古一戸建て
- 990万円
-
平塚市片岡
-
JR東海道本線平塚
-
-
-

-
- 中古一戸建て
- 4,480万円
-
川崎市川崎区渡田2丁目
-
JR東海道本線川崎
-
-
-

-
- 中古一戸建て
- 2,990万円
-
平塚市ふじみ野2丁目
-
JR東海道本線平塚
-






ハウスドゥ 湘南平塚(株式会社プレジャー)
[営業時間]9:00~18:00
[定休日]第1週・第3週の火曜日、及び毎週水曜日
JR東海道線「平塚」駅よりバス乗車6分
「八幡」停留所 目の前です。
●店舗前に5台分の駐車スペースがございます。
●平塚駅など近隣地への送迎いたします。
●キッズスペース、授乳室を完備しております。
お子様連れのお客様もご安心してご来店ください。
●すぐにご来店が難しいお客様もお気軽にご相談ください。