合志市須屋の中古戸建
NEW 02.08掲載情報更新日:2026年02月04日 次回更新予定日:2026年02月18日
- 4,240万円
-
- 借入ご希望金額
万円 - 借入期間
年 - 借入金利
% - 月々のお支払い金額
円
- 借入ご希望金額
※ 月々のお支払例は目安の試算となりますので、実際の金額とは異なる場合がございます。詳しくは店舗までお問合わせください。
- 合志市須屋
-
熊本電気鉄道『新須屋』 徒歩14分 (約1060m)
JR鹿児島本線『西里』 徒歩48分 (約3790m)
『城北校前』 徒歩4分 (約280m)
合志市須屋一戸建て | 物件情報
《一気見ツアー今すぐOK》☆仲介手数料無料物件(133万円相当がお得!)お気軽にお問合せください♪
【内覧ツアー×最安値保証】ネットの物件、すべて当社で紹介可能!交渉力で「理想の価格」を叶えます
当社は通常かかる仲介手数料(物件価格の3%+6万円)が無料(例:3000万円の場合、90万円相当)
売主様への価格交渉も得意なので、どこよりもお安くご購入いただけるよう徹底サポートします!
他社様でお見積もりを取った後でも大丈夫!もっと安く買えるのでは?そんな悩みは当社が解決します
【内覧ツアー】
熊本県内全域の気になる物件をすべて当社でご内覧いただける『内覧ツアー』を実施中☆
新築・中古・中古マンションも!見学されたい物件を1日で内覧可能♪
窓口を一つに絞れるから、手間も時間もかかりません。
【最安値保証】
\最 安 値 徹 底 宣 言/
他社様よりも必ずお得にご購入いただけることをお約束します
当社ではオプション費用(エアコン、網戸、太陽光等)もお客様に代わり相見積もりします
トータルの費用が100万円以上変わることも!
全国700店舗以上展開!
ハウスドゥだからこその豊富な物件数・情報量でお客様のお家選びをトータルサポートいたします!
物件の設備
- 電気
- オール電化
- 上水道
- 公営水道
- 下水道
- 公共下水
- 都市ガス
- 給湯
- 浄水器
- IHクッキングヒータ
- コンロ三口
- グリル
- カウンターキッチン
- システムキッチン
- バス
- ユニットバス
- オートバス
- バス1坪以上
- 追焚機能
- 浴室に窓
- トイレ
- 温水洗浄便座
- 室内洗濯機置場
- 洗髪洗面化粧台
- 洗面所独立
- エアコン3基
- 照明器具
- ダウンライト
- 太陽光発電システム
- 省エネ給湯器
- ディンプルキー
- ダブルロックキー
- モニタ付インターホン
- モニタ付オートロック
- LDK15畳以上
- 和室
- 2面採光
- 複層ガラス
- 全居室複層ガラス
- フローリング
- 24時間換気システム
- クローゼット
- 床下収納
- シューズボックス
物件の特徴
- 南向
- 耐震構造
- 2沿線利用可
- 前道6m以上
- 南側道路面す
- 緑豊かな住宅地
- スーパーが近い
- 閑静な住宅街
- 通風良好
- 陽当り良好
- 長期優良住宅
- BELS/省エネ基準適合
- 即入居可
物件詳細情報
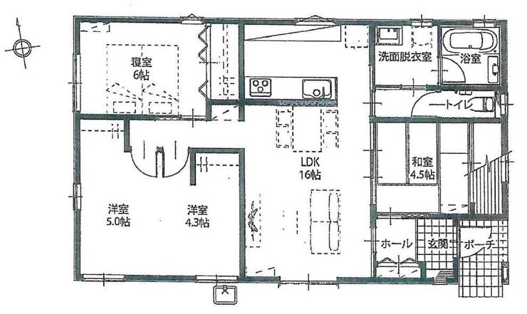
| 価格 | 4,240万円 | 間取り | 4LDK |
|---|---|---|---|
| 物件種別 | 中古一戸建て | ||
| 所在地 | 熊本県合志市須屋15番49 47号地 | ||
| アクセス |
|
||
| 建物面積 | 83.63㎡ | 駐車場 | あり 普通:3台 |
| 築年月 | 2024年(令和6年)03月築 | ||
| 建物構造 | 木造 1階建 | 工法 | |
| 主要採光 | 南西向 | バルコニー | |
| 保証・評価 | 長期優良住宅認定通知書 |
||
| リフォーム | |||
| 土地面積 | 202.24㎡(61.17坪) | 接道 | 南側幅 約6.0m |
| 私道 | セットバック | ||
| 地目 | 宅地 | 地勢 | |
| 権利 | 所有権 |
||
| 都市計画 | 用途地域 | 2種中高 | |
| 建ぺい/容積率 | 60% / 150% | 土地国土法 | |
| 許可番号 | 建築基準法 | ||
| 法令制限 | |||
| 小学区 | 西合志南小学校 徒歩19分 (約1500m) | 中学区 | 西合志南中学校 徒歩32分 (約2500m) |
| 現況 | 空 | 引渡 | 即 |
| その他費用 | |||
| 周辺環境 | 西合志南小学校 徒歩19分 (約1500m) 西合志南中学校 徒歩32分 (約2500m) リズム幼稚園 徒歩8分 (約610m) セブンイレブン合志西南中入口店 徒歩8分 (約600m) スーパーキッド 菊南店 徒歩6分 (約420m) 黒石簡易郵便局 徒歩11分 (約840m) ドン・キホーテ 合志店 徒歩9分 (約670m) ディスカウントドラッグコスモス 菊南店 徒歩9分 (約720m) ハローデイ 菊南店 徒歩9分 (約670m) |
||
| 備考 | ・西合志南小学校まで徒歩19分(約1500m) ・西合志南中学校まで徒歩32分(約2500m) ・リズム幼稚園まで徒歩8分(約610m) ・セブンイレブン合志西南中入口店まで徒歩8分(約600m) ・スーパーキッド 菊南店まで徒歩6分(約420m) ・ナカシマセブンクリニックまで徒歩19分(約1460m) ・黒石簡易郵便局まで徒歩11分(約840m) ・ドン・キホーテ 合志店まで徒歩9分(約670m) ・ディスカウントドラッグコスモス 菊南店まで徒歩9分(約720m) ・ハローデイ 菊南店まで徒歩9分(約670m) |
||
| 物件番号 | 4591043 | 取引態様 | 媒介 |
取扱店舗情報
ハウスドゥ 熊本桜町 株式会社Remado 店舗詳細ページへ
| 電話番号 | 096-274-4665 |
|---|---|
| 所在地 | 〒860-0805 熊本県熊本市中央区桜町1-25 |
| 営業時間 | 10:00~18:00 |
| 定休日 | 年末年始, 夏季休暇(お盆) |
| 宅建免許番号 | 熊本県知事(1)第5556号 |
| アクセス | 店舗への地図はこちら |

来店ご予約
熊本県合志市で価格が似ている物件はこちら
- 熊本県
マイページ物件数 - 2,972件
最近見た物件
-
-

-
- 新築一戸建て
- 4,298万円
-
福岡市南区鶴田4丁目
-
西鉄天神大牟田線高宮
-
-
-

-
- 新築一戸建て
- 3,580万円
-
豊田市桝塚西町南山
-
愛知環状鉄道北野桝塚
-
-
-

-
- 土地
- 1,855万円
-
豊橋市牛川通1丁目
-
豊橋鉄道東田本線競輪場前
-
熊本県中古一戸建て新着物件
-
-

-
- 中古一戸建て
- 2,498万円
-
合志市須屋
-
熊本電気鉄道新須屋駅
-
-
-

-
- 中古一戸建て
- 1,498万円
-
熊本市北区龍田弓削2丁目
-
JR豊肥本線武蔵塚駅
-
-
-

-
- 中古一戸建て
- 1,100万円
-
菊池郡大津町大字大林
-
JR豊肥本線瀬田駅
-
-
-

-
- 中古一戸建て
- 1,488万円
-
熊本市北区八景水谷3丁目
-
熊本電気鉄道堀川駅
-
-
-

-
- 中古一戸建て
- 4,240万円
-
合志市須屋
-
熊本電気鉄道新須屋駅
-
-
-

-
- 中古一戸建て
- 5,198万円
-
熊本市北区高平2丁目
-
熊本電気鉄道池田駅
-
-
-

-
- 中古一戸建て
- 3,948万円
-
合志市合生
-
熊本電気鉄道御代志駅
-
- お近くの店舗を探す
-
おすすめ物件
-
-

-
- 中古一戸建て
- 2,570万円
-
合志市野々島
-
熊本電気鉄道御代志
-
-
-

-
- 中古一戸建て
- 2,480万円
-
熊本市北区龍田8丁目
-
JR豊肥本線竜田口
-
-
-

-
- 中古一戸建て
- 2,698万円
-
熊本市東区月出6丁目
-
JR豊肥本線東海学園前
-
-
-

-
- 中古一戸建て
- 2,698万円
-
熊本市東区花立5丁目
-
熊本市健軍線健軍町
-
-
-

-
- 中古一戸建て
- 640万円
-
熊本市北区兎谷1丁目
-
熊本電気鉄道亀井
-
-
-

-
- 中古一戸建て
- 1,998万円
-
熊本市東区京塚本町
-
熊本市健軍線神水交差点
-
-
-

-
- 中古一戸建て
- 2,398万円
-
上益城郡益城町大字広崎
-
熊本市健軍線健軍町
-
-
-

-
- 中古一戸建て
- 3,198万円
-
熊本市東区上南部2丁目
-
JR豊肥本線竜田口
-
-
-

-
- 中古一戸建て
- 2,648万円
-
菊池郡菊陽町大字津久礼
-
JR豊肥本線三里木
-
-
-

-
- 中古一戸建て
- 2,350万円
-
熊本市北区楠4丁目
-
JR豊肥本線武蔵塚
-











担当エージェント:藤原 章裕
【月々の支払い例】
4300万円借り入れの場合
月々86,570円(頭金・ボーナス払いなし)
金利0.780%の場合(SBI新生銀行、金利優遇有)
変動金利 返済期間50年
※あくまで一例。条件有。
【周辺環境】
・西合志南小学校まで徒歩19分(約1500m)
・西合志南中学校まで徒歩32分(約2500m)
・リズム幼稚園まで徒歩8分(約610m)
・セブンイレブン合志西南中入口店まで徒歩8分(約600m)
・スーパーキッド 菊南店まで徒歩6分(約420m)
・ナカシマセブンクリニックまで徒歩19分(約1460m)
・黒石簡易郵便局まで徒歩11分(約840m)
・ドン・キホーテ 合志店まで徒歩9分(約670m)
・ディスカウントドラッグコスモス 菊南店まで徒歩9分(約720m)
・ハローデイ 菊南店まで徒歩9分(約670m)
いつでもお気軽にご連絡ください☆彡
お問い合わせは『ハウスドゥ熊本桜町』まで♪