宇都宮市さつき3丁目の中古戸建
掲載情報更新日:2026年04月10日 次回更新予定日:2026年04月24日
- 2,199万円
-
- 借入ご希望金額
万円 - 借入期間
年 - 借入金利
% - 月々のお支払い金額
円
- 借入ご希望金額
※ 月々のお支払例は目安の試算となりますので、実際の金額とは異なる場合がございます。詳しくは店舗までお問合わせください。
- 宇都宮市さつき3丁目
-
JR東北本線『雀宮』 徒歩28分 (約2200m)
宇都宮市さつき3丁目一戸建て | 物件情報
物件の設備
- 上水道
- 公営水道
- 下水道
- 公共下水
- 都市ガス
- 浴室に窓
- トイレ
- 室内洗濯機置場
- 和室
- 全居室6畳以上
- フローリング
- フローリング張替
- クローゼット
- クローゼット2箇所
- 全居室収納
- 南庭
物件の特徴
- 内装リフォーム済
- 外装リフォーム済
- 内外装リフォーム済
- 南向
- 全室南向
- 小学校徒歩10分以内
- 前道6m以上
- スーパーが近い
- 閑静な住宅街
- 2階建
物件詳細情報
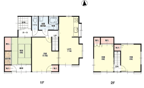
| 価格 | 2,199万円 | 間取り | 4LDK |
|---|---|---|---|
| 物件種別 | 中古一戸建て | ||
| 所在地 | 栃木県宇都宮市さつき3丁目 | ||
| アクセス |
|
||
| 建物面積 | 91.9㎡ | 駐車場 | あり 普通:2台 |
| 築年月 | 1980年(昭和55年)09月築 | ||
| 建物構造 | 木造 2階建 | 工法 | |
| 主要採光 | 南向 | バルコニー | |
| 保証・評価 | |||
| リフォーム | 【水回り】2026年01月 キッチン・浴室・トイレ・洗面・給湯器 雨樋交換 【外装】2026年01月 外壁 バルコニー撤去 【内装】2026年01月 壁、天井 ・床 ・建具 LDK一部壁撤去して建具新設、一部和室を洋室へ変更、畳表替え、玄関ドア交換、玄関収納撤去と交換、勝手口撤去 【その他】2026年01月 耐震補強工事、防蟻工事 |
||
| 土地面積 | 186.72㎡(56.48坪) | 接道 | 西側(公道)幅 約6.0m |
| 私道 | セットバック | ||
| 地目 | 宅地 | 地勢 | |
| 権利 | 所有権 |
||
| 都市計画 | 市街化区域 |
用途地域 | 1種中高 |
| 建ぺい/容積率 | 60% / 200% | 土地国土法 | |
| 許可番号 | 【開発】栃木県指令都第5-1-95号 | 建築基準法 | |
| 法令制限 | 景観法・宅地造成及び特定盛土等規制法・日影制限有・法22条区域・道路斜線制限・隣地斜線制限・敷地面積の最低限度制限(150㎡) | ||
| 小学区 | 雀宮南小学校 徒歩8分 (約600m) | 中学区 | 雀宮中学校 徒歩9分 (約700m) |
| 現況 | 空 | 引渡 | 相談 |
| その他費用 | |||
| 備考 | ※全居室南向きで日当たり良好 ※小中学校&買物施設が徒歩圏内に充実♪ ※耐震補強工事で安心・安全! ※2026年1月中旬リフォーム完了予定 ※司法書士は売主指定 ※現況と図面が異なる場合は、現況を優先 |
||
| 物件番号 | 4599279 | 取引態様 | 媒介 |
取扱店舗情報
| 電話番号 | 028-678-2888 |
|---|---|
| 所在地 | 〒320-0826 栃木県宇都宮市西原町466-1 |
| 営業時間 | 10:00~18:30 |
| 定休日 | 火曜日・水曜日 |
| 宅建免許番号 | 栃木県知事(2)第5075号 |
| アクセス | 店舗への地図はこちら |

来店ご予約
栃木県宇都宮市で価格が似ている物件はこちら
- 栃木県
マイページ物件数 - 5,239件
最近見た物件
-
-

-
- 中古マンション
- 1,690万円
-
名古屋市天白区大坪2丁目
-
名古屋市鶴舞線塩釜口
-
-
-

-
- 新築一戸建て
- 3,780万円
-
奈良市学園緑ヶ丘2丁目
-
近鉄難波・奈良線学園前
-
-
-

-
- 中古マンション
- 3,300万円
-
尾道市新浜1丁目
-
JR山陽本線尾道
-
栃木県中古一戸建て新着物件
-
-

-
- 中古一戸建て
- 1,280万円
-
下野市上大領
-
JR東北本線石橋駅
-
-
-

-
- 中古一戸建て
- 560万円
-
栃木市大平町新
-
東武日光線新大平下駅
-
-
-

-
- 中古一戸建て
- 2,580万円
-
下野市緑6丁目
-
JR東北本線自治医大駅
-
-
-

-
- 中古一戸建て
- 1,100万円
-
那須郡那須町大字高久乙
-
JR東北本線黒田原駅
-
-
-

-
- 中古一戸建て
- 2,500万円
-
宇都宮市若松原3丁目
-
JR東北本線雀宮駅
-
-
-

-
- 中古一戸建て
- 1,499万円
-
下都賀郡壬生町落合2丁目
-
東武宇都宮線国谷駅
-
-
-

-
- 中古一戸建て
- 2,199万円
-
下都賀郡壬生町大字壬生丁
-
東武宇都宮線国谷駅
-
- お近くの店舗を探す
-
おすすめ物件
-
-

-
- 中古一戸建て
- 3,280万円
-
宇都宮市西刑部町
-
関東バス【中央橋】
-
-
-

-
- 中古一戸建て
- 2,799万円
-
宇都宮市簗瀬3丁目
-
JR東北本線宇都宮
-
-
-

-
- 中古一戸建て
- 3,080万円
-
塩谷郡高根沢町大字平田
-
JR烏山線仁井田
-
-
-

-
- 中古一戸建て
- 1,980万円
-
宇都宮市下平出町
-
宇都宮芳賀ライト線平石中央小学校前
-
-
-

-
- 中古一戸建て
- 2,950万円
-
佐野市高萩町
-
JR両毛線佐野
-
-
-

-
- 中古一戸建て
- 2,780万円
-
宇都宮市石井町
-
宇都宮芳賀ライト線平石中央小学校前
-
-
-

-
- 中古一戸建て
- 3,680万円
-
宇都宮市中岡本町
-
JR東北本線岡本
-
-
-

-
- 中古一戸建て
- 2,780万円
-
芳賀郡益子町大字七井
-
真岡鉄道多田羅
-
-
-

-
- 中古一戸建て
- 1,798万円
-
宇都宮市鶴田町
-
JR日光線鶴田
-
-
-

-
- 中古一戸建て
- 6,280万円
-
宇都宮市山本3丁目
-
関東バス【青葉台】
-


