東大阪市花園東町1丁目の中古戸建
掲載情報更新日:2026年04月06日 次回更新予定日:2026年04月20日
- 1,880万円
-
- 借入ご希望金額
万円 - 借入期間
年 - 借入金利
% - 月々のお支払い金額
円
- 借入ご希望金額
※ 月々のお支払例は目安の試算となりますので、実際の金額とは異なる場合がございます。詳しくは店舗までお問合わせください。
- 東大阪市花園東町1丁目
-
近鉄難波・奈良線『東花園』 徒歩8分 (約640m)
近鉄難波・奈良線『河内花園』 徒歩8分 (約640m)
東大阪市花園東町1丁目一戸建て | 物件情報
河内花園駅徒歩6分! 4LDK+ガレージ付きのゆとりある戸建♪
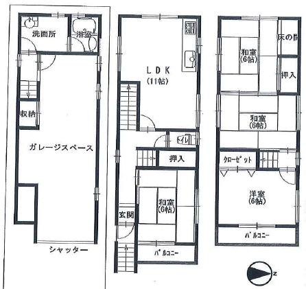
東大阪市花園東町1丁目の中古戸建、4LDK+ガレージスペース付きのゆとりある住まいです♪
近鉄奈良線「河内花園」駅徒歩6分で通勤通学にも便利な立地!
延床111.60㎡と広さがあり、LDK約11帖+和室や洋室をバランスよく配置した使いやすい間取りです☆
シャッター付きガレージスペースは車やバイク、自転車の保管にも便利♪
閑静な住宅街で住環境も良好です☆
空家につき即内覧可能!!
駅近×広さ×ガレージ付き戸建をお探しの方におすすめの一邸です♪
物件の設備
- 電気
- トイレ
- 全居室6畳以上
- フローリング張替
- バルコニー
- シャッター車庫
物件の特徴
- 内装リフォーム済
- 小学校徒歩10分以内
- 3階建以上
- 即入居可
物件詳細情報
| 価格 | 1,880万円 | 間取り | 4LDK |
|---|---|---|---|
| 物件種別 | 中古一戸建て | ||
| 所在地 | 大阪府東大阪市花園東町1丁目 | ||
| アクセス |
|
||
| 建物面積 | 111.6㎡ | 駐車場 | あり |
| 築年月 | 1993年(平成5年)06月築 | ||
| 建物構造 | 鉄骨 3階建 | 工法 | |
| 主要採光 | 東向 | バルコニー | |
| 保証・評価 | |||
| リフォーム | 【水回り】2026年02月 トイレ・洗面 洗面室床・壁張替え、洗面台新設、二階トイレ新設、 【内装】2026年02月 壁、天井 ・床 ・全室クロス 階段及びホール床・壁改装、LDK床・壁・天井張り替え、和室3畳表替え、3階洋室床・壁改装、2階及び3階ベランダ防水工事、全室クリーニング完了 |
||
| 土地面積 | 公68.74㎡(20.79坪) | 接道 | 東側(公道)幅 約4.0m 間口 約4.40m |
| 私道 | セットバック | ||
| 地目 | 宅地 | 地勢 | |
| 権利 | 所有権 |
||
| 都市計画 | 市街化区域 |
用途地域 | 1種中高 |
| 建ぺい/容積率 | 60% / 200% | 土地国土法 | |
| 許可番号 | 建築基準法 | ||
| 法令制限 | |||
| 小学区 | 花園北小学校 徒歩4分 (約300m) | 中学区 | 花園中学校 徒歩14分 (約1100m) |
| 現況 | 空 | 引渡 | 即 |
| その他費用 | |||
| 備考 | |||
| 物件番号 | 4608532 | 取引態様 | 媒介 |
取扱店舗情報
ハウスドゥ 河内永和北 アーキエステート株式会社 店舗詳細ページへ
| 電話番号 | 06-6720-9010 |
|---|---|
| 所在地 | 〒577-0055 大阪府東大阪市長栄寺5-21 |
| 営業時間 | 10:00~18:00 |
| 定休日 | 火・水曜日、年末年始 |
| 宅建免許番号 | 大阪府知事(1)第66482号 |
| アクセス | 店舗への地図はこちら |

来店ご予約
大阪府東大阪市で価格が似ている物件はこちら
- 大阪府
マイページ物件数 - 18,247件
最近見た物件
-
-

-
- 中古一戸建て
- 4,300万円
-
太田市粕川町
-
東武伊勢崎・大師線木崎
-
-
-

-
- 中古一戸建て
- 1,280万円
-
広島市中区吉島東1丁目
-
吉島二丁目 バス停
-
-
-

-
- 土地
- 900万円
-
札幌市清田区清田七条2丁目
-
清田7条2丁目
-
大阪府中古一戸建て新着物件
-
-

-
- 中古一戸建て
- 2,980万円
-
大阪市此花区酉島6丁目
-
JR桜島線安治川口駅
-
-
-

-
- 中古一戸建て
- 1,190万円
-
泉佐野市葵町1丁目
-
南海電鉄本線泉佐野駅
-
-
-

-
- 中古一戸建て
- 3,980万円
-
大阪市東成区大今里南6丁目
-
大阪市千日前線新深江駅
-
-
-

-
- 中古一戸建て
- 2,490万円
-
大阪市旭区今市1丁目
-
大阪市谷町線太子橋今市駅
-
-
-

-
- 中古一戸建て
- 580万円
-
堺市中区陶器北
-
南海電鉄高野線北野田駅
-
-
-

-
- 中古一戸建て
- 3,390万円
-
豊中市庄内西町2丁目
-
阪急電鉄宝塚線庄内駅
-
-
-

-
- 中古一戸建て
- 2,550万円
-
岸和田市土生町6丁目
-
JR阪和線東岸和田駅
-
- お近くの店舗を探す
-
おすすめ物件
-
-

-
- 中古一戸建て
- 1,650万円
-
和泉市黒鳥町2丁目
-
JR阪和線和泉府中
-
-
-

-
- 中古一戸建て
- 2,980万円
-
八尾市八尾木3丁目
-
JR関西本線志紀
-
-
-

-
- 中古一戸建て
- 1,680万円
-
豊中市城山町2丁目
-
阪急電鉄宝塚線曽根
-
-
-

-
- 中古一戸建て
- 2,780万円
-
大阪市西成区梅南1丁目
-
大阪市四つ橋線花園町
-
-
-

-
- 中古一戸建て
- 650万円
-
羽曳野市誉田7丁目
-
近鉄南大阪線道明寺
-
-
-

-
- 中古一戸建て
- 2,698万円
-
高槻市東五百住町3丁目
-
阪急電鉄京都線富田
-
-
-

-
- 中古一戸建て
- 1,490万円
-
高槻市八幡町
-
阪急電鉄京都線高槻市
-
-
-

-
- 中古一戸建て
- 1,230万円
-
東大阪市稲葉1丁目
-
近鉄難波・奈良線河内花園
-
-
-

-
- 中古一戸建て
- 1,780万円
-
堺市中区伏尾
-
南海電鉄泉北線泉ケ丘
-
-
-

-
- 中古一戸建て
- 590万円
-
大阪市住之江区安立4丁目
-
南海電鉄本線住ノ江
-

























担当エージェント:竹下 宗伺
本物件は土地約68.74㎡、延床111.60㎡の木造3階建4LDK中古戸建♪
市街化区域・第一種中高層住居専用地域内の落ち着いた住宅街に位置しています☆
シャッター付きガレージスペースがあり、大切なお車やバイクの保管も安心!!
各居室収納付きでファミリーにも使いやすい間取りです☆
近鉄奈良線利用で大阪市内へのアクセスも良好♪
周辺には生活施設や学校も揃っており、子育て世帯にもおすすめの住環境☆
空家のため即案内可能、住宅ローンのご相談もお気軽にお問い合わせください!!