木津川市州見台6丁目の中古戸建
NEW 02.22掲載情報更新日:2026年02月22日 次回更新予定日:2026年03月08日
- 3,200万円
-
- 借入ご希望金額
万円 - 借入期間
年 - 借入金利
% - 月々のお支払い金額
円
- 借入ご希望金額
※ 月々のお支払例は目安の試算となりますので、実際の金額とは異なる場合がございます。詳しくは店舗までお問合わせください。
- 木津川市州見台6丁目
-
近鉄京都線『高の原』 バス乗車15分 州見台七丁目東 停 徒歩4分 (約250m)
近鉄難波・奈良線『近鉄奈良』 バス乗車15分 州見台七丁目東 停 徒歩4分 (約250m)
JR片町線『木津』 バス乗車14分 州見台七丁目東 停 徒歩4分 (約250m)
木津川市州見台6丁目一戸建て | 物件情報
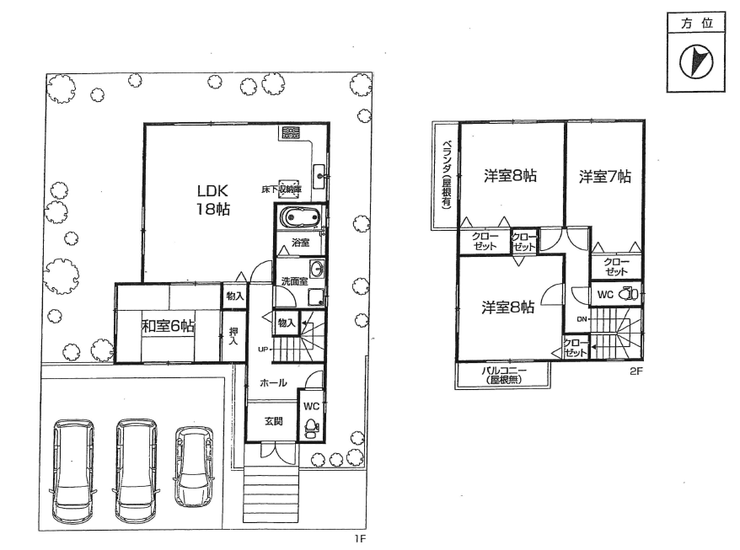
駐車場3台・駐輪スペースが確保された、隣家ともゆとりを設けた築浅の4LDK
\ゆとりと快適さを兼ね備えた築9年住宅/
■ 隣家との境界にゆとり有り
■ 駐車3台可+駐輪スペース有り
■ LDK広々18帖
■ 1階和室付き
■ 2階は7帖・8帖・8帖の洋室3部屋
■ 全室収納付き
■ 室内大変きれいにお使いです
ファミリー世帯に嬉しい広さと収納力。
駐車3台可能なゆとりの敷地で、来客時も安心です。
リビングは、家族の集まる場所だから、明るく、快適に過ごせるように2面採光で日当たり、風通し良好。
キッチンは、L型キッチンでコーナーにコンセントがあり炊飯器などの家電が置けるくらいの広さあります。
リビング横には和室6帖もあり、少し横になりたいときや、来客用のお部屋としても重宝すること間違いなし。
全居室収納完備で収納家具を減らして広々空間をお楽しみいただけるように工夫されています。
物件の設備
- 電気
- 公営水道
- 公共下水
- 都市ガス
- 食器乾燥機
- コンロ三口
- グリル
- 浴室暖房
- 浴室乾燥機
- 浴室に窓
- トイレ2箇所
- 室内洗濯機置場
- 火災警報器/報知機
- 和室
- 24時間換気システム
- クローゼット
- 床下収納
- 全居室収納
- 2面バルコニー
- 庭
物件の特徴
- 前道6m以上
- 2階建
物件詳細情報
| 価格 | 3,200万円 | 間取り | 4LDK |
|---|---|---|---|
| 物件種別 | 中古一戸建て | ||
| 所在地 | 京都府木津川市州見台6丁目 | ||
| アクセス |
|
||
| 建物面積 | 111.78㎡ | 駐車場 | あり 普通:2台 軽:1台 |
| 築年月 | 2017年(平成29年)05月築 | ||
| 建物構造 | 木造 2階建 | 工法 | |
| 主要採光 | バルコニー | ||
| 保証・評価 | |||
| リフォーム | |||
| 土地面積 | 公173.6㎡(52.51坪) | 接道 | 北側(公道)幅 約6.0m |
| 私道 | セットバック | ||
| 地目 | 宅地 | 地勢 | |
| 権利 | 所有権 |
||
| 都市計画 | 市街化区域 |
用途地域 | 2種中高 |
| 建ぺい/容積率 | 50% / 80% | 土地国土法 | |
| 許可番号 | 建築基準法 | ||
| 法令制限 | 日影制限有・第二種高度地区・砂防指定区域・木津南地区計画 | ||
| 小学区 | 州見台小学校 徒歩6分 (約450m) | 中学区 | 木津南中学校 徒歩17分 (約1300m) |
| 現況 | 居住中 | 引渡 | 相談 |
| その他費用 | |||
| 備考 | 駐車場においてあります物置2個は残地物になります。 | ||
| 物件番号 | 4610241 | 取引態様 | 専任 |
取扱店舗情報
| 電話番号 | 0774-64-5526 |
|---|---|
| 所在地 | 〒610-0361 京都府京田辺市河原北口19-2 |
| 営業時間 | 9:30~18:30 |
| 定休日 | 水曜日 |
| 宅建免許番号 | 京都府知事(1)第14866号 |
| アクセス | 店舗への地図はこちら |

来店ご予約
京都府木津川市で価格が似ている物件はこちら
- 京都府
マイページ物件数 - 4,435件
最近見た物件
-
-

-
- 新築一戸建て
- 3,090万円
-
名古屋市守山区川村町
-
ガイドウェイバス志段味線川宮
-
-
-

-
- 中古一戸建て
- 3,380万円
-
高知市口細山
-
JR土讃線高知商業前
-
-
-

-
- 新築一戸建て
- 3,450万円
-
香南市野市町西野
-
土佐くろしお鉄道ごめん・なはり線のいち
-
京都府中古一戸建て新着物件
-
-

-
- 中古一戸建て
- 2,780万円
-
京都市伏見区桃山紅雪町
-
京都市営地下鉄東西線六地蔵駅
-
-
-

-
- 中古一戸建て
- 1,380万円
-
長岡京市滝ノ町2丁目
-
阪急電鉄京都線西向日駅
-
-
-

-
- 中古一戸建て
- 1,880万円
-
京都市右京区常盤西町
-
京福北野線常盤駅
-
-
-

-
- 中古一戸建て
- 2,480万円
-
長岡京市滝ノ町2丁目
-
阪急電鉄京都線西向日駅
-
-
-

-
- 中古一戸建て
- 3,398万円
-
京都市右京区太秦安井東裏町
-
JR山陰本線花園駅
-
-
-

-
- 中古一戸建て
- 2,380万円
-
向日市鶏冠井町草田
-
阪急電鉄京都線西向日駅
-
-
-

-
- 中古一戸建て
- 6,480万円
-
向日市寺戸町北垣内
-
阪急電鉄京都線東向日駅
-
- お近くの店舗を探す
-
おすすめ物件
-
-

-
- 中古一戸建て
- 2,380万円
-
向日市鶏冠井町草田
-
阪急電鉄京都線西向日
-
-
-

-
- 中古一戸建て
- 2,880万円
-
相楽郡精華町大字植田小字新田
-
JR片町線祝園
-
-
-

-
- 中古一戸建て
- 2,500万円
-
舞鶴市字魚屋
-
JR舞鶴線西舞鶴
-
-
-

-
- 中古一戸建て
- 6,480万円
-
向日市寺戸町北垣内
-
阪急電鉄京都線東向日
-
-
-

-
- 中古一戸建て
- 4,180万円
-
京田辺市同志社山手4丁目
-
JR片町線JR三山木
-
-
-

-
- 中古一戸建て
- 1,380万円
-
長岡京市滝ノ町2丁目
-
阪急電鉄京都線西向日
-
-
-

-
- 中古一戸建て
- 1,580万円
-
京都市伏見区横大路貴船
-
京阪本線中書島
-
-
-

-
- 中古一戸建て
- 1,290万円
-
舞鶴市行永東町
-
JR舞鶴線東舞鶴
-
-
-

-
- 中古一戸建て
- 2,880万円
-
相楽郡精華町大字菱田小字宮川原
-
近鉄京都線狛田
-
-
-

-
- 中古一戸建て
- 1,050万円
-
長岡京市下海印寺横山
-
阪急電鉄京都線長岡天神
-


























担当エージェント:宮澤賢治
一文は一見にしかず!一度内覧にお越し下さい。