貝塚市東山4丁目の中古戸建
NEW 02.28掲載情報更新日:2026年02月28日 次回更新予定日:2026年03月14日
- 2,480万円
-
- 借入ご希望金額
万円 - 借入期間
年 - 借入金利
% - 月々のお支払い金額
円
- 借入ご希望金額
※ 月々のお支払例は目安の試算となりますので、実際の金額とは異なる場合がございます。詳しくは店舗までお問合わせください。
- 貝塚市東山4丁目
-
水間鉄道水間線『三ツ松』 徒歩7分 (約520m)
水間鉄道水間線『三ヶ山口』 徒歩7分 (約520m)
JR阪和線『和泉橋本』 徒歩47分 (約3760m)
貝塚市東山4丁目一戸建て | 物件情報
物件の設備
- 電気
- 上水道
- 下水道
- 都市ガス
- 給湯
- 食器洗浄乾燥機
- コンロ三口
- ガスコンロ付
- カウンターキッチン
- システムキッチン
- バス
- 追焚機能
- 浴室乾燥機
- トイレ
- 温水洗浄便座
- 室内洗濯機置場
- 洗面所独立
- モニタ付インターホン
- LDK20畳以上
- フローリング
- ウォークインクローゼット
物件詳細情報
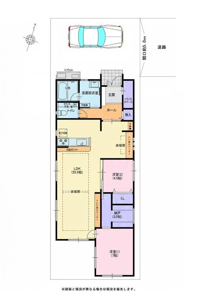
| 価格 | 2,480万円 | 間取り | 2LDK+S |
|---|---|---|---|
| 物件種別 | 中古一戸建て | ||
| 所在地 | 大阪府貝塚市東山4丁目 | ||
| アクセス |
|
||
| 建物面積 | 公89.02㎡ | 駐車場 | あり 普通:1台 |
| 築年月 | 2013年(平成25年)12月築 | ||
| 建物構造 | 木造 1階建 | 工法 | |
| 主要採光 | バルコニー | ||
| 保証・評価 | |||
| リフォーム | |||
| 土地面積 | 公164.55㎡(49.77坪) | 接道 | 北側(公道)幅 約5.0m 間口 約5.00m |
| 私道 | セットバック | ||
| 地目 | 宅地 | 地勢 | |
| 権利 | 所有権 |
||
| 都市計画 | 市街化区域 |
用途地域 | 準工業 |
| 建ぺい/容積率 | 60% / 200% | 土地国土法 | 届出不要 |
| 許可番号 | 建築基準法 | ||
| 法令制限 | 宅地造成工事規制区域・法22条区域・居住誘導区域・東山丘陸地区地区計画 | ||
| 小学区 | 東山小学校 徒歩5分 (約360m) | 中学区 | 第三中学校 徒歩7分 (約560m) |
| 現況 | 居住中 | 引渡 | 相談 |
| その他費用 | |||
| 周辺環境 | セブン-イレブン 貝塚東山店 徒歩2分 (約90m) 三ヶ山口駅 徒歩7分 (約520m) 三ッ松駅 徒歩7分 (約520m) ローソン 貝塚三ツ松店 徒歩8分 (約570m) ファミリーマート 貝塚東山店 徒歩7分 (約530m) オークワ 貝塚三ツ松店 徒歩11分 (約880m) サンディ 貝塚清児店 徒歩26分 (約2030m) マツゲン 貝塚鳥羽店 徒歩44分 (約3470m) 和泉橋本駅 徒歩47分 (約3760m) |
||
| 備考 | |||
| 物件番号 | 4617549 | 取引態様 | 媒介 |
取扱店舗情報
| 電話番号 | 072-493-7921 |
|---|---|
| 所在地 | 〒597-0071 大阪府貝塚市加神1丁目7-5 |
| 営業時間 | 9:00~19:00 |
| 定休日 | 水曜日、年末年始 |
| 宅建免許番号 | 大阪府知事(1)第65631号 |
| アクセス | 店舗への地図はこちら |

来店ご予約
大阪府貝塚市で価格が似ている物件はこちら
- 大阪府
マイページ物件数 - 17,605件
大阪府中古一戸建て新着物件
-
-

-
- 中古一戸建て
- 2,580万円
-
東大阪市下六万寺町3丁目
-
近鉄難波・奈良線瓢箪山駅
-
-
-

-
- 中古一戸建て
- 7,980万円
-
大阪市西成区天下茶屋3丁目
-
阪堺電気軌道阪堺線北天下茶屋駅
-
-
-

-
- 中古一戸建て
- 5,380万円
-
大阪市生野区鶴橋4丁目
-
近鉄大阪線鶴橋駅
-
-
-

-
- 中古一戸建て
- 3,680万円
-
大阪市城東区今福西5丁目
-
大阪市長堀鶴見緑地線蒲生四丁目駅
-
-
-

-
- 中古一戸建て
- 3,500万円
-
高石市加茂1丁目
-
南海電鉄本線高石駅
-
-
-

-
- 中古一戸建て
- 3,480万円
-
大阪市大正区泉尾3丁目
-
JR大阪環状線大正駅
-
-
-

-
- 中古一戸建て
- 3,200万円
-
大阪市住之江区南加賀屋4丁目
-
大阪市四つ橋線住之江公園駅
-
- お近くの店舗を探す
-
おすすめ物件
-
-

-
- 中古一戸建て
- 3,598万円
-
高槻市富田町6丁目
-
阪急電鉄京都線茨木市
-
-
-

-
- 中古一戸建て
- 2,580万円
-
大阪市住吉区山之内3丁目
-
JR阪和線杉本町
-
-
-

-
- 中古一戸建て
- 2,480万円
-
和泉市上町
-
JR阪和線北信太
-
-
-

-
- 中古一戸建て
- 850万円
-
大阪市平野区加美北1丁目
-
大阪市千日前線南巽
-
-
-

-
- 中古一戸建て
- 4,280万円
-
八尾市八尾木東3丁目
-
JR関西本線志紀
-
-
-

-
- 中古一戸建て
- 2,480万円
-
高槻市緑が丘2丁目
-
JR東海道線高槻
-
-
-

-
- 中古一戸建て
- 1,600万円
-
八尾市垣内4丁目
-
近鉄信貴線信貴山口
-
-
-

-
- 中古一戸建て
- 1,780万円
-
堺市中区伏尾
-
南海電鉄泉北線泉ケ丘
-
-
-

-
- 中古一戸建て
- 4,480万円
-
高槻市西冠1丁目
-
阪急電鉄京都線高槻市
-
-
-

-
- 中古一戸建て
- 2,890万円
-
高槻市西真上2丁目
-
JR東海道線高槻
-


