北区中十条4丁目の中古戸建
NEW 03.05掲載情報更新日:2026年03月05日 次回更新予定日:2026年03月19日
- 4,180万円
-
- 借入ご希望金額
万円 - 借入期間
年 - 借入金利
% - 月々のお支払い金額
円
- 借入ご希望金額
※ 月々のお支払例は目安の試算となりますので、実際の金額とは異なる場合がございます。詳しくは店舗までお問合わせください。
- 北区中十条4丁目
-
JR京浜東北・根岸線『東十条』 徒歩7分 (約560m)
JR埼京線『赤羽』 徒歩16分 (約1280m)
北区中十条4丁目一戸建て | 物件情報
中十条4丁目戸建 交通アクセス:JR京浜東北線「東十条」駅徒歩7分好立地。
中十条4丁目に位置する戸建住宅のご紹介です。JR京浜東北線「東十条」駅まで徒歩7分、さらに複数路線が乗り入れるターミナル駅「赤羽」駅へも徒歩16分と、2駅利用可能な利便性の高い立地が魅力です。都心主要エリアへのアクセスが良好で、通勤・通学はもちろん、休日のお出かけにも快適な交通環境が整っています。周辺にはスーパーやコンビニ、飲食店など生活利便施設が点在し、日常のお買い物にも困りません。また、落ち着いた住宅街に位置しており、静かで住み心地の良い住環境が広がっています。赤羽エリアも生活圏内となるため、商業施設や多彩なグルメを気軽に楽しめる点も魅力の一つです。利便性と住環境のバランスが取れた中十条4丁目の戸建住宅で、快適な新生活を始めてみてはいかがでしょうか。
物件の設備
- 上水道
- 公営水道
- 都市ガス
- トイレ
- 室内洗濯機置場
物件の特徴
- セットバック要
- 高台に立地
- 通風良好
- 陽当り良好
- 2階建
物件詳細情報
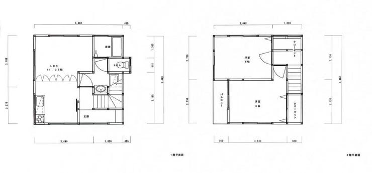
| 価格 | 4,180万円 | 間取り | 2LDK |
|---|---|---|---|
| 物件種別 | 中古一戸建て | ||
| 所在地 | 東京都北区中十条4丁目 | ||
| アクセス |
|
||
| 建物面積 | 公56.65㎡ | 駐車場 | なし |
| 築年月 | 1979年(昭和54年)01月築 | ||
| 建物構造 | 木造 2階建 | 工法 | |
| 主要採光 | 北向 | バルコニー | |
| 保証・評価 | |||
| リフォーム | |||
| 土地面積 | 実49.01㎡(14.82坪) | 接道 | 北側(公道)幅 約3.9m |
| 私道 | 別:公4.44㎡ | セットバック | 要:0.85㎡ |
| 地目 | 宅地 | 地勢 | |
| 権利 | 所有権 |
||
| 都市計画 | 市街化区域 |
用途地域 | 1種住居 |
| 建ぺい/容積率 | 60% / 160% | 土地国土法 | |
| 許可番号 | 建築基準法 | ||
| 法令制限 | がけ条例 | ||
| 小学区 | 東十条小学校 徒歩9分 (約650m) | 中学区 | 十条富士見中学校 徒歩19分 (約1500m) |
| 現況 | 賃貸中 | 引渡 | 相談 |
| その他費用 | |||
| 周辺環境 | うぃず東十条保育園 徒歩10分 (約740m) 富士見銀座 徒歩7分 (約550m) 八木病院 徒歩9分 (約690m) ファミリーマート東十条店 徒歩9分 (約720m) 成立学園 徒歩11分 (約830m) 東十条郵便局 徒歩9分 (約710m) 東十条どうぶつ病院 徒歩10分 (約750m) サンベビー保育園 徒歩10分 (約750m) 東十条さかい糖尿病・内科クリニック 徒歩10分 (約760m) |
||
| 備考 | ※私道面積は、負担割合で按分した面積です。 ※契約不適合責任免責、設備の修復義務免責 |
||
| 物件番号 | 4623671 | 取引態様 | 媒介 |
取扱店舗情報
| 電話番号 | 03-6903-8151 |
|---|---|
| 所在地 | 〒114-0001 東京都北区東十条5丁目4-10 |
| 営業時間 | 10:00~18:00 |
| 定休日 | 火曜日、水曜日、夏季休暇、年末年始 |
| 宅建免許番号 | 東京都知事(1)第107690号 |
| アクセス | 店舗への地図はこちら |

来店ご予約
- 東京都
マイページ物件数 - 5,203件
東京都中古一戸建て新着物件
- お近くの店舗を探す
-
おすすめ物件
-
-

-
- 中古一戸建て
- 5,980万円
-
大田区大森西4丁目
-
京急本線大森町
-
-
-

-
- 中古一戸建て
- 2,200万円
-
足立区東六月町
-
東武伊勢崎・大師線竹ノ塚
-
-
-

-
- 中古一戸建て
- 1億3,248万円
-
世田谷区上馬3丁目
-
東急田園都市線駒沢大学
-
-
-

-
- 中古一戸建て
- 7,380万円
-
三鷹市上連雀9丁目
-
JR中央本線三鷹
-
-
-

-
- 中古一戸建て
- 3,680万円
-
板橋区東新町2丁目
-
東武東上線ときわ台
-
-
-

-
- 中古一戸建て
- 1億7,997万円
-
世田谷区瀬田2丁目
-
東急田園都市線二子玉川
-
-
-

-
- 中古一戸建て
- 9,280万円
-
世田谷区桜1丁目
-
小田急小田原線経堂
-
-
-

-
- 中古一戸建て
- 3,280万円
-
葛飾区西水元6丁目
-
JR千代田・常磐緩行線亀有
-
-
-

-
- 中古一戸建て
- 3,290万円
-
日野市平山6丁目
-
京王線平山城址公園
-
-
-

-
- 中古一戸建て
- 2,600万円
-
北区上十条5丁目
-
JR京浜東北・根岸線東十条
-



















通勤・通学に便利な立地が魅力の 中十条4丁目戸建。
2駅利用可能&複数路線アクセスで、都心への移動もスムーズです。
周辺は落ち着いた住宅街ながら、商店街や生活利便施設も充実。
毎日のお買い物から外食まで、暮らしやすさを実感していただけます。
戸建ならではの独立性と、都心近接の利便性を兼ね備えた一邸。
「駅近×戸建」をお探しの方には、ぜひ一度ご覧いただきたい物件です。