戸建 城東区今福西1丁目
NEW 03.07掲載情報更新日:2026年03月07日 次回更新予定日:2026年03月21日
- 3,298万円
-
- 借入ご希望金額
万円 - 借入期間
年 - 借入金利
% - 月々のお支払い金額
円
- 借入ご希望金額
※ 月々のお支払例は目安の試算となりますので、実際の金額とは異なる場合がございます。詳しくは店舗までお問合わせください。
- 大阪市城東区今福西1丁目
-
大阪市今里筋線『蒲生四丁目』 徒歩2分 (約160m)
JRおおさか東線『鴫野』 徒歩13分 (約1000m)
京阪本線『野江』 徒歩17分 (約1300m)
戸建 城東区今福西1丁目一戸建て | 物件情報
月々9.0万円~ 蒲生四丁目駅徒歩2分 4沿線3駅利用可 即内見可
☆月々9.0万円~
☆3階建て戸建
☆最寄駅から京橋駅まで3分
☆4沿線3駅利用可
☆近隣に学校、幼稚園、保育園、公園あり
☆複数スーパーあり
【内覧会開催中】
本日ご案内可能な場合もございます。
複数件併せてご内見も可能♪
他の掲載物件もまとめてご内見頂けます。気になる物件をお教え下さい。
☆0120ー684-571
お気軽にお電話ください♪
☆立地のポイント
【蒲生四丁目駅】徒歩約2分
【JR鴫野駅】徒歩約13分
【京阪野江駅】徒歩約17分
物件の特徴
- 3階建以上
- 即入居可
物件詳細情報
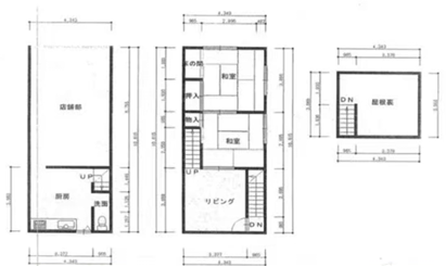
| 価格 | 3,298万円 | 間取り | 4LDK |
|---|---|---|---|
| 物件種別 | 中古一戸建て | ||
| 所在地 | 大阪府大阪市城東区今福西1丁目 | ||
| アクセス |
|
||
| 建物面積 | 103.42㎡ | 駐車場 | なし |
| 築年月 | 1950年(昭和25年)01月築 | ||
| 建物構造 | 木造 3階建 | 工法 | |
| 主要採光 | バルコニー | ||
| 保証・評価 | |||
| リフォーム | |||
| 土地面積 | 73.84㎡(22.33坪) | 接道 | |
| 私道 | セットバック | ||
| 地目 | 宅地 | 地勢 | |
| 権利 | 所有権 |
||
| 都市計画 | 市街化区域 |
用途地域 | 商業 |
| 建ぺい/容積率 | 80% / 400% | 土地国土法 | |
| 許可番号 | 建築基準法 | ||
| 法令制限 | |||
| 小学区 | 鯰江小学校 徒歩3分 (約240m) | 中学区 | 鯰江中学校 徒歩7分 (約560m) |
| 現況 | 空 | 引渡 | 即 |
| その他費用 | |||
| 周辺環境 | クローバー保育園 城東 徒歩2分 (約100m) 大阪市立鯰江小学校 徒歩3分 (約240m) 大阪市立鯰江中学校 徒歩7分 (約560m) 蒲生四丁目駅 徒歩4分 (約260m) 城東商店街 徒歩2分 (約100m) ツルハドラッグ 蒲生四丁目駅前店 徒歩4分 (約290m) 関西スーパー 蒲生店 徒歩6分 (約440m) パントリー蒲生 徒歩5分 (約400m) 業務用食品館 城東中央店 徒歩9分 (約650m) サンコー 今福店 徒歩8分 (約620m) |
||
| 備考 | ※築年数不詳 ・城東商店街まで徒歩2分(約100m) ・クローバー保育園 城東まで徒歩2分(約100m) ・大阪市立鯰江小学校まで徒歩3分(約240m) ・蒲生四丁目駅まで徒歩4分(約260m) ・ツルハドラッグ 蒲生四丁目駅前店まで徒歩4分(約290m) ・関西スーパー 蒲生店まで徒歩6分(約440m) ・パントリー蒲生まで徒歩5分(約400m) ・大阪市立鯰江中学校まで徒歩7分(約560m) ・業務用食品館 城東中央店まで徒歩9分(約650m) ・サンコー 今福店まで徒歩8分(約620m) |
||
| 物件番号 | 4627904 | 取引態様 | 媒介 |
取扱店舗情報
| 電話番号 | 050-5805-9447 |
|---|---|
| 所在地 | 〒536-0006 大阪府大阪市城東区野江4丁目10-13 クリエイト野江内代1F |
| 営業時間 | 10:00~19:00 |
| 定休日 | なし |
| 宅建免許番号 | 国土交通大臣(1)第10706号 |
| アクセス | 店舗への地図はこちら |

来店ご予約
- 大阪府
マイページ物件数 - 17,766件
最近見た物件
-
-

-
- 新築一戸建て
- 3,490万円
-
みよし市三好町八和田
-
名古屋市鶴舞線赤池
-
-
-

-
- 中古一戸建て
- 1,749万円
-
小城市小城町畑田
-
JR唐津線小城
-
-
-

-
- 土地
- 1,100万円
-
倉敷市中島
-
水島臨海鉄道西富井
-
大阪府中古一戸建て新着物件
-
-

-
- 中古一戸建て
- 240万円
-
大阪市平野区平野市町2丁目
-
JR関西本線平野駅
-
-
-

-
- 中古一戸建て
- 3,690万円
-
大阪市生野区新今里6丁目
-
近鉄難波・奈良線今里駅
-
-
-

-
- 中古一戸建て
- 590万円
-
大阪市住之江区安立4丁目
-
南海電鉄本線住ノ江駅
-
-
-

-
- 中古一戸建て
- 1,180万円
-
松原市天美西3丁目
-
近鉄南大阪線河内天美駅
-
-
-

-
- 中古一戸建て
- 3,480万円
-
大阪市阿倍野区晴明通
-
阪堺電気軌道上町線東天下茶屋駅
-
-
-

-
- 中古一戸建て
- 948万円
-
松原市天美東7丁目
-
近鉄南大阪線河内天美駅
-
-
-

-
- 中古一戸建て
- 1,880万円
-
高槻市日向町
-
阪急電鉄京都線高槻市駅
-
- お近くの店舗を探す
-
おすすめ物件
-
-

-
- 中古一戸建て
- 2,980万円
-
八尾市栄町2丁目
-
JR関西本線八尾
-
-
-

-
- 中古一戸建て
- 2,498万円
-
泉大津市下条町
-
南海電鉄本線泉大津
-
-
-

-
- 中古一戸建て
- 1,280万円
-
門真市江端町
-
JR片町線住道
-
-
-

-
- 中古一戸建て
- 2,480万円
-
高槻市緑が丘2丁目
-
JR東海道線高槻
-
-
-

-
- 中古一戸建て
- 2,798万円
-
高槻市東五百住町3丁目
-
阪急電鉄京都線富田
-
-
-

-
- 中古一戸建て
- 498万円
-
堺市中区深井北町
-
JR阪和線上野芝
-
-
-

-
- 中古一戸建て
- 2,780万円
-
泉大津市豊中町3丁目
-
JR阪和線和泉府中
-
-
-

-
- 中古一戸建て
- 1,700万円
-
高槻市津之江町2丁目
-
JR東海道線高槻
-
-
-

-
- 中古一戸建て
- 3,680万円
-
八尾市相生町1丁目
-
JR関西本線八尾
-
-
-

-
- 中古一戸建て
- 698万円
-
羽曳野市誉田7丁目
-
近鉄南大阪線道明寺
-









担当エージェント:尾関 親代
最寄り駅から京橋まで3分の好立地!
通勤通学に便利な4沿線3駅利用可!
落ち着いた住環境でファミリー層にも単身者にも◎♪
住宅ローン相談会開催中です!
ぜひお気軽にお問い合わせください!
※築年数不詳