八尾市安中町7丁目中古戸建
掲載情報更新日:2026年04月16日 次回更新予定日:2026年04月30日
- 1,350万円
-
- 借入ご希望金額
万円 - 借入期間
年 - 借入金利
% - 月々のお支払い金額
円
- 借入ご希望金額
※ 月々のお支払例は目安の試算となりますので、実際の金額とは異なる場合がございます。詳しくは店舗までお問合わせください。
- 八尾市安中町7丁目
-
JR関西本線『八尾』 徒歩10分 (約800m)
八尾市安中町7丁目中古戸建一戸建て | 物件情報
JR関西本線【八尾駅】徒歩約10分!
■駐車スペースあり♪(ワゴン車可能!)
■LDK約12帖の広々空間♪
■和室1部屋♪
■クローゼット3カ所♪
■床下収納あり♪
物件の設備
- 電気
- 上水道
- 下水道
- 都市ガス
- システムキッチン
- バス
- 浴室に窓
- トイレ
- 室内洗濯機置場
- 洗面所独立
- モニタ付インターホン
- 和室
- フローリング
- 一部フローリング
- クローゼット3箇所
- 床下収納
物件の特徴
- 整備された歩道
- 緑豊かな住宅地
- 閑静な住宅街
- 通風良好
- 陽当り良好
- 2階建
- 平坦地
- 即入居可
物件詳細情報
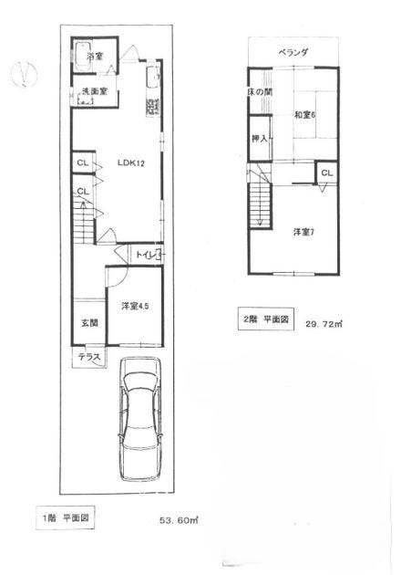
| 価格 | 1,350万円 | 間取り | 3LDK |
|---|---|---|---|
| 物件種別 | 中古一戸建て | ||
| 所在地 | 大阪府八尾市安中町7丁目 | ||
| アクセス |
|
||
| 建物面積 | 83.32㎡ | 駐車場 | あり 普通:1台 |
| 築年月 | 1972年(昭和47年)01月築 | ||
| 建物構造 | 木造 2階建 | 工法 | |
| 主要採光 | バルコニー | ||
| 保証・評価 | |||
| リフォーム | |||
| 土地面積 | 84㎡(25.41坪) | 接道 | 北側(公道)幅 約4.0m |
| 私道 | セットバック | ||
| 地目 | 宅地 | 地勢 | |
| 権利 | 所有権 |
||
| 都市計画 | 市街化区域 |
用途地域 | 1種住居 |
| 建ぺい/容積率 | 60% / 200% | 土地国土法 | |
| 許可番号 | 建築基準法 | ||
| 法令制限 | 準防火地域・埋蔵文化財包蔵地 | ||
| 小学区 | 中学区 | ||
| 現況 | 空 | 引渡 | 即 |
| その他費用 | |||
| 周辺環境 | 八尾市立高美南小学校 徒歩9分 (約720m) 八尾市立高美中学校 徒歩13分 (約970m) ローソン 八尾陽光園二丁目店 徒歩8分 (約630m) サンディ 陽光園店 徒歩5分 (約380m) プラチナ薬局 八尾店 徒歩6分 (約480m) 貴島中央病院 徒歩6分 (約410m) 八尾南本町郵便局 徒歩5分 (約370m) ゆうちょ銀行 八尾店 徒歩10分 (約790m) 安中ひかりこども園 徒歩5分 (約390m) 明美公園 徒歩5分 (約380m) |
||
| 備考 | 売主の契約不適合責任免責 | ||
| 物件番号 | 4631208 | 取引態様 | 媒介 |
取扱店舗情報
| 電話番号 | 072-973-6177 |
|---|---|
| 所在地 | 〒581-0801 大阪府八尾市山城町2丁目1-28 山城ビル1F |
| 営業時間 | 9:00~18:00 |
| 定休日 | 水曜日、年末年始 |
| 宅建免許番号 | 大阪府知事(1)第64057号 |
| アクセス | 店舗への地図はこちら |

来店ご予約
大阪府八尾市で価格が似ている物件はこちら
- 大阪府
マイページ物件数 - 18,437件
大阪府中古一戸建て新着物件
-
-

-
- 中古一戸建て
- 1,098万円
-
阪南市自然田
-
JR阪和線和泉鳥取駅
-
-
-

-
- 中古一戸建て
- 1,680万円
-
八尾市恩智北町4丁目
-
近鉄大阪線恩智駅
-
-
-

-
- 中古一戸建て
- 1,998万円
-
和泉市伯太町1丁目
-
JR阪和線信太山駅
-
-
-

-
- 中古一戸建て
- 1億円
-
吹田市竹見台2丁目
-
北大阪急行南北線桃山台駅
-
-
-

-
- 中古一戸建て
- 3,298万円
-
大阪市平野区長吉出戸2丁目
-
大阪市谷町線出戸駅
-
-
-

-
- 中古一戸建て
- 680万円
-
豊中市小曽根5丁目
-
大阪市御堂筋線江坂駅
-
-
-

-
- 中古一戸建て
- 3,180万円
-
泉南郡熊取町紺屋2丁目
-
JR阪和線熊取駅
-
- お近くの店舗を探す
-
おすすめ物件
-
-

-
- 中古一戸建て
- 1,180万円
-
門真市江端町
-
JR片町線住道
-
-
-

-
- 中古一戸建て
- 7,580万円
-
泉大津市東雲町
-
南海電鉄本線泉大津
-
-
-

-
- 中古一戸建て
- 4,280万円
-
八尾市八尾木東3丁目
-
JR関西本線志紀
-
-
-

-
- 中古一戸建て
- 1,680万円
-
豊中市城山町2丁目
-
阪急電鉄宝塚線曽根
-
-
-

-
- 中古一戸建て
- 2,550万円
-
茨木市庄1丁目
-
JR東海道線JR総持寺
-
-
-

-
- 中古一戸建て
- 2,480万円
-
泉大津市板原町1丁目
-
JR阪和線和泉府中
-
-
-

-
- 中古一戸建て
- 1,600万円
-
八尾市垣内4丁目
-
近鉄信貴線信貴山口
-
-
-

-
- 中古一戸建て
- 3,680万円
-
高槻市芝生町2丁目
-
JR東海道線摂津富田
-
-
-

-
- 中古一戸建て
- 3,750万円
-
八尾市神宮寺4丁目
-
近鉄大阪線恩智
-
-
-

-
- 中古一戸建て
- 1,050万円
-
高槻市東五百住町2丁目
-
阪急電鉄京都線富田
-













担当エージェント:桑原 良太
弊社は不動産売買専門の仲介会社とし、全国700店舗展開中のハウスドゥ近鉄八尾北でございます。
購入・売却に関する様々なご相談承っております。
弊社は他社様が掲載されている物件でもご紹介可能です。お気軽にご相談くださいませ。