広島市南区西蟹屋4丁目の中古戸建
NEW 03.10掲載情報更新日:2026年03月10日 次回更新予定日:2026年03月24日
- 2,680万円
-
- 借入ご希望金額
万円 - 借入期間
年 - 借入金利
% - 月々のお支払い金額
円
- 借入ご希望金額
※ 月々のお支払例は目安の試算となりますので、実際の金額とは異なる場合がございます。詳しくは店舗までお問合わせください。
- 広島市南区西蟹屋4丁目
-
JR山陽本線『広島』 徒歩11分 (約880m)
『西蟹屋バス停』 徒歩3分 (約240m)
広島市南区西蟹屋4丁目一戸建て | 物件情報
物件の設備
- 公営水道
- 公共下水
- プロパンガス
- トイレ2箇所
- 室内洗濯機置場
物件の特徴
- 3階建以上
物件詳細情報
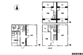
| 価格 | 2,680万円 | 間取り | 4LDK |
|---|---|---|---|
| 物件種別 | 中古一戸建て | ||
| 所在地 | 広島県広島市南区西蟹屋4丁目 | ||
| アクセス |
|
||
| 建物面積 | 107.91㎡ | 駐車場 | あり 軽:1台 |
| 築年月 | 1984年(昭和59年)09月築 | ||
| 建物構造 | 鉄骨 3階建 | 工法 | |
| 主要採光 | バルコニー | ||
| 保証・評価 | |||
| リフォーム | |||
| 土地面積 | 66.41㎡(20.08坪) | 接道 | 北西側(私道)幅 約2.6m |
| 私道 | セットバック | ||
| 地目 | 宅地 | 地勢 | |
| 権利 | 所有権 |
||
| 都市計画 | 市街化区域 |
用途地域 | 近隣商業(一部近隣商業 含む) |
| 建ぺい/容積率 | 60%(一部80% 含む) / 200%(一部300% 含む) | 土地国土法 | |
| 許可番号 | 建築基準法 | ||
| 法令制限 | |||
| 小学区 | 荒神町小学校 徒歩4分 (約290m) | 中学区 | 段原中学校 徒歩18分 (約1400m) |
| 現況 | 空 | 引渡 | 相談 |
| その他費用 | |||
| 備考 | 希少立地 室内程度良好 JR広島駅徒歩圏内 小学校徒歩4分 コストコ徒歩7分 収納豊富 開口部が明るい室内 売主の契約不適合責任は免責 別途地番443-11(公衆用道路7.51㎡)あり 現状有姿 |
||
| 物件番号 | 4631509 | 取引態様 | 媒介 |
取扱店舗情報
| 電話番号 | 082-250-3900 |
|---|---|
| 所在地 | 〒734-0014 広島県広島市南区宇品西6丁目6-3 |
| 営業時間 | 9:00~18:00 |
| 定休日 | 水曜日 |
| 宅建免許番号 | 広島県知事(13)第3975号 |
| アクセス | 店舗への地図はこちら |

来店ご予約
広島県広島市南区で価格が似ている物件はこちら
- 広島県
マイページ物件数 - 4,851件
最近見た物件
-
-

-
- 中古一戸建て
- 4,780万円
-
茨木市上野町
-
JR東海道線茨木
-
-
-

-
- 土地
- 3,600万円
-
石巻市茜平3丁目
-
JR仙石線石巻あゆみ野
-
-
-

-
- 中古一戸建て
- 999万円
-
四日市市楠町南五味塚
-
近鉄名古屋線楠
-
広島県中古一戸建て新着物件
-
-

-
- 中古一戸建て
- 1,499万円
-
福山市瀬戸町大字地頭分
-
JR山陽本線備後赤坂駅
-
-
-

-
- 中古一戸建て
- 2,680万円
-
広島市南区西蟹屋4丁目
-
JR山陽本線広島駅
-
-
-

-
- 中古一戸建て
- 300万円
-
府中市土生町
-
JR福塩線府中駅
-
-
-

-
- 中古一戸建て
- 1,930万円
-
三原市西野1丁目
-
JR山陽本線三原駅
-
-
-

-
- 中古一戸建て
- 990万円
-
安芸郡熊野町川角4丁目
-
芸陽バス広島~熊野方面さくら野団地下バス停
-
-
-

-
- 中古一戸建て
- 2,650万円
-
東広島市西条町田口
-
JR山陽本線西条駅
-
-
-

-
- 中古一戸建て
- 1,600万円
-
福山市古野上町
-
JR山陽本線福山駅
-
- お近くの店舗を探す
-
おすすめ物件
-
-

-
- 中古一戸建て
- 200万円
-
尾道市久保町
-
旭が丘団地バス停
-
-
-

-
- 中古一戸建て
- 2,499万円
-
福山市加茂町字中野
-
JR山陽本線福山
-
-
-

-
- 中古一戸建て
- 2,300万円
-
福山市新涯町6丁目
-
JR山陽本線東福山
-
-
-

-
- 中古一戸建て
- 300万円
-
尾道市御調町大蔵
-
本村バス停
-
-
-

-
- 中古一戸建て
- 500万円
-
尾道市久山田町
-
JR山陽新幹線新尾道
-
-
-

-
- 中古一戸建て
- 390万円
-
福山市神辺町字西中条
-
井原鉄道湯野
-
-
-

-
- 中古一戸建て
- 3,300万円
-
福山市柳津町
-
JR山陽本線松永
-
-
-

-
- 中古一戸建て
- 1,100万円
-
福山市神辺町大字新湯野
-
井原鉄道湯野
-
-
-

-
- 中古一戸建て
- 2,990万円
-
福山市箕島町
-
JR山陽本線東福山
-
-
-

-
- 中古一戸建て
- 2,399万円
-
福山市柳津町5丁目
-
JR山陽本線松永
-


