日高郡みなべ町芝の中古戸建
掲載情報更新日:2026年04月29日 次回更新予定日:2026年05月13日
- 1,000万円
-
- 借入ご希望金額
万円 - 借入期間
年 - 借入金利
% - 月々のお支払い金額
円
- 借入ご希望金額
※ 月々のお支払例は目安の試算となりますので、実際の金額とは異なる場合がございます。詳しくは店舗までお問合わせください。
- 日高郡みなべ町芝
-
JR紀勢本線『南部』 徒歩8分 (約600m)
日高郡みなべ町芝一戸建て | 物件情報
☆月々2.8万円~ 即内見可!
☆月々2.8万円~
☆陽当たり良好!
☆東南の角地
☆駐車場あり(2台まで可)
☆木造住宅+店舗事務所付物件
☆複数スーパー、ドラッグストア、ホームセンター、郵便局等あり 利便性のある立地
【内覧会開催中】
本日ご案内可能な場合もございます。
複数件併せてご内見も可能♪
他の掲載物件もまとめてご内見頂けます。気になる物件をお教え下さい。
☆立地のポイント
【南部駅】徒歩約8分
物件の設備
- 電気
- 上水道
- 浄化槽
- プロパンガス
物件の特徴
- 2階建
物件詳細情報
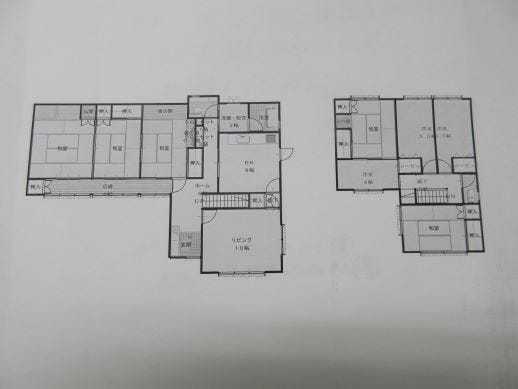
| 価格 | 1,000万円 | 間取り | 9DK |
|---|---|---|---|
| 物件種別 | 中古一戸建て | ||
| 所在地 | 和歌山県日高郡みなべ町芝 | ||
| アクセス |
|
||
| 建物面積 | 199.44㎡ | 駐車場 | あり |
| 築年月 | 1978年(昭和53年)03月築 | ||
| 建物構造 | 木造 2階建 | 工法 | |
| 主要採光 | バルコニー | ||
| 保証・評価 | |||
| リフォーム | |||
| 土地面積 | 公374.64㎡(113.32坪) | 接道 | 南西側(公道)幅 約4.0m 間口 約13.00m 南東側(私道)幅 約2.0m 間口 約28.50m |
| 私道 | セットバック | 無 | |
| 地目 | 宅地 | 地勢 | 平坦 |
| 権利 | 所有権 |
||
| 都市計画 | 非線引区域 |
用途地域 | |
| 建ぺい/容積率 | 70% / 200% | 土地国土法 | |
| 許可番号 | 建築基準法 | ||
| 法令制限 | |||
| 小学区 | 南部小学校 徒歩10分 (約750m) | 中学区 | 南部中学校 徒歩12分 (約950m) |
| 現況 | 空 | 引渡 | 相談 |
| その他費用 | |||
| 備考 | |||
| 物件番号 | 4632161 | 取引態様 | 媒介 |
取扱店舗情報
| 電話番号 | 050-5805-9447 |
|---|---|
| 所在地 | 〒536-0006 大阪府大阪市城東区野江4丁目10-13 クリエイト野江内代1F |
| 営業時間 | 10:00~19:00 |
| 定休日 | なし |
| 宅建免許番号 | 国土交通大臣(1)第10706号 |
| アクセス | 店舗への地図はこちら |

来店ご予約
- 和歌山県
マイページ物件数 - 697件
最近見た物件
和歌山県中古一戸建て新着物件
-
-

-
- 中古一戸建て
- 380万円
-
新宮市仲之町2丁目
-
JR紀勢本線新宮駅
-
-
-

-
- 中古一戸建て
- 350万円
-
和歌山市紀三井寺
-
JR紀勢本線黒江駅
-
-
-

-
- 中古一戸建て
- 500万円
-
田辺市上秋津
-
JR紀勢本線紀伊田辺駅
-
-
-

-
- 中古一戸建て
- 300万円
-
東牟婁郡那智勝浦町大字北浜3丁目
-
JR紀勢本線紀伊勝浦駅
-
-
-

-
- 中古一戸建て
- 215万円
-
和歌山市杭ノ瀬
-
JR紀勢本線宮前駅
-
-
-

-
- 中古一戸建て
- 1,080万円
-
和歌山市弘西
-
JR阪和線紀伊駅
-
-
-

-
- 中古一戸建て
- 280万円
-
伊都郡かつらぎ町大字広浦
-
JR和歌山線笠田駅
-
- お近くの店舗を探す
-












担当エージェント:尾関 親代
落ち着いた住環境でファミリー層にも単身者にも◎♪
住宅ローン相談会開催中です!
ぜひお気軽にお問い合わせください!