練馬区石神井台6丁目の中古戸建
NEW 03.12掲載情報更新日:2026年03月12日 次回更新予定日:2026年03月26日
- 3,450万円
-
- 借入ご希望金額
万円 - 借入期間
年 - 借入金利
% - 月々のお支払い金額
円
- 借入ご希望金額
※ 月々のお支払例は目安の試算となりますので、実際の金額とは異なる場合がございます。詳しくは店舗までお問合わせください。
- 練馬区石神井台6丁目
-
西武池袋・豊島線『大泉学園』 徒歩17分 (約1360m)
練馬区石神井台6丁目一戸建て | 物件情報
オーナーチェンジ物件!現在居住中(法人契約)!屋根裏物置!
【物件アピール】
オーナーチェンジ物件
現在居住中(法人契約)
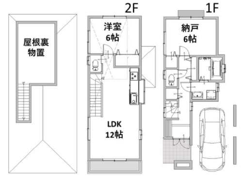
屋根裏物置あり
物件の設備
- トイレ2箇所
- 室内洗濯機置場
- 洗髪洗面化粧台
- 洗面所独立
- クローゼット
- 納戸
- 屋根裏収納
- シューズボックス
物件の特徴
- 2階建
物件詳細情報
| 価格 | 3,450万円 | 間取り | 1LDK |
|---|---|---|---|
| 物件種別 | 中古一戸建て | ||
| 所在地 | 東京都練馬区石神井台6丁目 | ||
| アクセス |
|
||
| 建物面積 | 62.91㎡ | 駐車場 | なし |
| 築年月 | 2006年(平成18年)10月築 | ||
| 建物構造 | 木造 2階建 | 工法 | |
| 主要採光 | バルコニー | ||
| 保証・評価 | |||
| リフォーム | |||
| 土地面積 | 64.39㎡(19.47坪) | 接道 | 東側(公道)幅 約4.0m 間口 約5.30m |
| 私道 | セットバック | ||
| 地目 | 宅地 | 地勢 | |
| 権利 | 所有権 |
||
| 都市計画 | 市街化区域 |
用途地域 | 1種住居 |
| 建ぺい/容積率 | 60% / 160% | 土地国土法 | |
| 許可番号 | 建築基準法 | ||
| 法令制限 | 高度地区・防火地域 | ||
| 小学区 | 中学区 | ||
| 現況 | 居住中 | 引渡 | 未記入 |
| その他費用 | |||
| 周辺環境 | ファミリーマート石神井台6丁目店 徒歩4分 (約250m) 石神井台六郵便局 徒歩4分 (約250m) 大泉生協病院 徒歩4分 (約250m) まいばすけっと石神井台5丁目店 徒歩4分 (約320m) クリエイト練馬石神井台店 徒歩6分 (約410m) 練馬区立上石神井北小学校 徒歩6分 (約460m) 石神井台8丁目児童遊園 徒歩10分 (約730m) ライフ石神井台店 徒歩10分 (約790m) 練馬区立あさがお児童遊園 徒歩11分 (約870m) |
||
| 備考 | オーナーチェンジ物件 ・居住中(法人契約) ・家賃160000円 ・年間収入1920000円 ・表面利回り 約5.57% |
||
| 物件番号 | 4632893 | 取引態様 | 媒介 |
取扱店舗情報
| 電話番号 | 03-3928-8080 |
|---|---|
| 所在地 | 〒177-0044 東京都練馬区上石神井4丁目30-2 |
| 営業時間 | 10:00~18:00 |
| 定休日 | 年末年始 |
| 宅建免許番号 | 東京都知事(1)第105887号 |
| アクセス | 店舗への地図はこちら |

来店ご予約
- 東京都
マイページ物件数 - 5,425件
最近見た物件
-
-

-
- 新築一戸建て
- 3,090万円
-
春日井市岩成台9丁目
-
JR中央本線高蔵寺
-
-
-

-
- 新築一戸建て
- 5,790万円
-
調布市深大寺北町2丁目
-
京王線調布
-
-
-

-
- 土地
- 1,780万円
-
瀬戸市山手町
-
名鉄瀬戸線水野
-
東京都中古一戸建て新着物件
-
-

-
- 中古一戸建て
- 6,199万円
-
八王子市西片倉3丁目
-
JR横浜線八王子みなみ野駅
-
-
-

-
- 中古一戸建て
- 7,150万円
-
武蔵野市緑町1丁目
-
JR中央本線三鷹駅
-
-
-

-
- 中古一戸建て
- 1,500万円
-
昭島市大神町1丁目
-
JR青梅線昭島駅
-
-
-

-
- 中古一戸建て
- 1,500万円
-
江東区大島4丁目
-
都営新宿線大島駅
-
-
-

-
- 中古一戸建て
- 1,640万円
-
足立区西保木間1丁目
-
東武伊勢崎・大師線竹ノ塚駅
-
-
-

-
- 中古一戸建て
- 3,980万円
-
足立区本木2丁目
-
東京メトロ千代田線北千住駅
-
-
-

-
- 中古一戸建て
- 4,790万円
-
足立区入谷1丁目
-
日暮里舎人ライナー舎人駅
-
- お近くの店舗を探す
-
おすすめ物件
-
-

-
- 中古一戸建て
- 3,780万円
-
足立区佐野2丁目
-
東京メトロ千代田線北綾瀬
-
-
-

-
- 中古一戸建て
- 1,998万円
-
八王子市川町
-
JR中央本線西八王子
-
-
-

-
- 中古一戸建て
- 1億7,997万円
-
世田谷区瀬田2丁目
-
東急田園都市線二子玉川
-
-
-

-
- 中古一戸建て
- 1億9,600万円
-
世田谷区成城8丁目
-
小田急小田原線成城学園前
-
-
-

-
- 中古一戸建て
- 1億3,248万円
-
世田谷区上馬3丁目
-
東急田園都市線駒沢大学
-
-
-

-
- 中古一戸建て
- 1,580万円
-
青梅市畑中1丁目
-
JR青梅線青梅
-
-
-

-
- 中古一戸建て
- 3,280万円
-
葛飾区西水元6丁目
-
JR千代田・常磐緩行線亀有
-
-
-

-
- 中古一戸建て
- 7,180万円
-
練馬区関町南2丁目
-
西武新宿線上石神井
-
-
-

-
- 中古一戸建て
- 4,680万円
-
葛飾区東水元2丁目
-
JR千代田・常磐緩行線金町
-
-
-

-
- 中古一戸建て
- 3,690万円
-
足立区辰沼2丁目
-
東京メトロ千代田線北綾瀬
-




お客様からのお問い合わせを心よりお待ちしております。