松山市中央2丁目の中古戸建
掲載情報更新日:2026年05月02日 次回更新予定日:2026年05月16日
- 4,500万円
-
- 借入ご希望金額
万円 - 借入期間
年 - 借入金利
% - 月々のお支払い金額
円
- 借入ご希望金額
※ 月々のお支払例は目安の試算となりますので、実際の金額とは異なる場合がございます。詳しくは店舗までお問合わせください。
- 松山市中央2丁目
-
伊予鉄道高浜線『衣山』 徒歩6分 (約480m)
JR予讃線『三津浜』 車6分(約2.5km)
『衣山駅前 バス停』 徒歩6分 (約450m)
松山市中央2丁目一戸建て | 物件情報
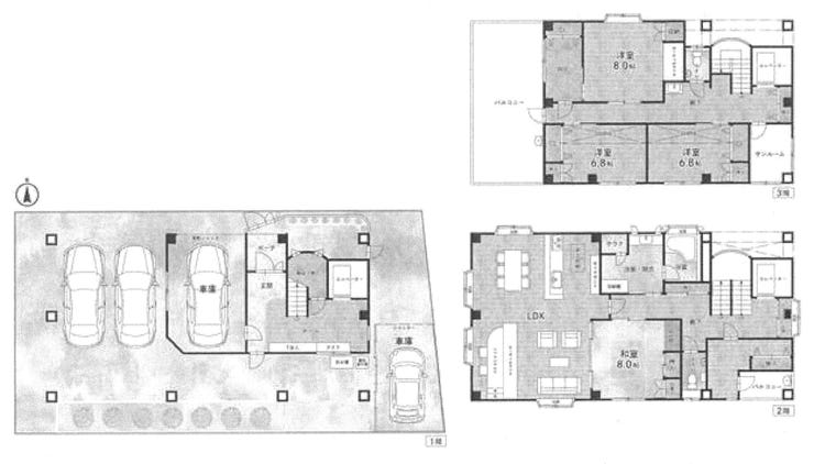
■オール電化 ■ホームエレベーター・サウナ・電動シャッター付き ■駐車4台可
★★当社の強みは『住宅ローン提案力』です★★
住宅ローンのことならどのようなことでもお気軽にご相談下さい。
「審査に通るか不安」
「どの金融機関を選べばいいか分からない」
「住宅ローン商品の選び方が分からない」
「車のローンがあるけど大丈夫?」
「年齢がネックになっている」
皆様のご不安やお悩みを一緒に解決します!
もちろん強引な営業は行いません。
公平中立な立場でお客様に合った金融機関をご提案させていただきます。
物件の設備
- 電気
- オール電化
- 上水道
- 公営水道
- 浄化槽
- 個別浄化槽
- 食器洗浄乾燥機
- IHクッキングヒータ
- コンロ三口
- グリル
- カウンターキッチン
- システムキッチン
- オープンキッチン
- バス
- バス1坪以上
- 追焚機能
- 浴室暖房
- 浴室乾燥機
- 浴室に窓
- サウナ
- トイレ2箇所
- 温水洗浄便座
- 室内洗濯機置場
- 洗髪洗面化粧台
- ホームエレベーター
- 和室
- 全居室6畳以上
- 出窓
- 電動シャッター
- クローゼット
- ウォークインクローゼット
- 納戸
- 床下収納
- サンルーム
- エレベーター
物件の特徴
- 南向
- 2沿線利用可
- スーパーが近い
- 閑静な住宅街
- 市街地が近い
- 3階建以上
- 平坦地
- 整形地
物件詳細情報
| 価格 | 4,500万円 | 間取り | 4LDK+S |
|---|---|---|---|
| 物件種別 | 中古一戸建て | ||
| 所在地 | 愛媛県松山市中央2丁目 | ||
| アクセス |
|
||
| 建物面積 | 233.74㎡ | 駐車場 | あり 普通:4台 |
| 築年月 | 2003年(平成15年)07月築 | ||
| 建物構造 | 鉄骨 3階建 | 工法 | |
| 主要採光 | バルコニー | ||
| 保証・評価 | |||
| リフォーム | |||
| 土地面積 | 公198.4㎡(60.01坪) | 接道 | 北側(公道)幅 約4.6m 間口 約18.80m |
| 私道 | セットバック | ||
| 地目 | 宅地 | 地勢 | 平坦 |
| 権利 | 所有権 |
||
| 都市計画 | 市街化区域 |
用途地域 | 準工業 |
| 建ぺい/容積率 | 60% / 200% | 土地国土法 | |
| 許可番号 | 建築基準法 | ||
| 法令制限 | |||
| 小学区 | 清水小学校 徒歩26分 (約2080m) | 中学区 | 勝山中学校 徒歩25分 (約1990m) |
| 現況 | 空 | 引渡 | 相談 |
| その他費用 | |||
| 周辺環境 | パルティ・フジ 衣山 徒歩9分 (約650m) ローソン 松山衣山店 徒歩4分 (約320m) ラ・ムー 松山中央店 徒歩4分 (約270m) 西松屋 フレスポ松山店 徒歩4分 (約270m) 衣山駅 徒歩6分 (約480m) ドラッグコスモス 久万ノ台店 徒歩9分 (約700m) マルナカ 美沢店 徒歩12分 (約910m) 松山第一病院 徒歩11分 (約830m) 清水小学校 徒歩26分 (約2080m) 勝山中学校 徒歩25分 (約1990m) |
||
| 備考 | ■オール電化 ■ホームエレベーター・サウナ・電動シャッター付き ■外壁は焼付タイル貼り ■前面道路幅員4.6mに暗渠水路部分が含まれます |
||
| 物件番号 | 4637639 | 取引態様 | 媒介 |
取扱店舗情報
ハウスドゥ!松山北店 株式会社D'sエステート 店舗詳細ページへ
| 電話番号 | 089-925-2149 |
|---|---|
| 所在地 | 〒791-8013 愛媛県松山市山越6丁目2-21 |
| 営業時間 | 9:00~18:00 |
| 定休日 | 年末年始 |
| 宅建免許番号 | 愛媛県知事(4)第5043号 |
| アクセス | 店舗への地図はこちら |

来店ご予約
愛媛県松山市で価格が似ている物件はこちら
- 愛媛県
マイページ物件数 - 3,666件
最近見た物件
-
-

-
- 新築一戸建て
- 3,390万円
-
春日井市白山町6丁目
-
JR中央本線高蔵寺
-
-
-

-
- 中古一戸建て
- 4,298万円
-
太宰府市高雄5丁目
-
西鉄天神大牟田線朝倉街道
-
-
-

-
- 土地
- 718万円
-
鹿児島市吉野町
-
菖蒲谷バス停
-
愛媛県中古一戸建て新着物件
- お近くの店舗を探す
-
おすすめ物件
-
-

-
- 中古一戸建て
- 280万円
-
伊予市稲荷
-
JR予讃線伊予市
-
-
-

-
- 中古一戸建て
- 1,600万円
-
松山市鴨川2丁目
-
伊予鉄道本町線本町六丁目
-
-
-

-
- 中古一戸建て
- 2,990万円
-
東温市南方
-
伊予鉄道横河原線横河原
-
-
-

-
- 中古一戸建て
- 1,690万円
-
松山市来住町
-
伊予鉄道横河原線北久米
-
-
-

-
- 中古一戸建て
- 2,450万円
-
松山市衣山5丁目
-
伊予鉄道高浜線衣山
-
-
-

-
- 中古一戸建て
- 1,500万円
-
松山市空港通7丁目
-
伊予鉄道郡中線鎌田
-
-
-

-
- 中古一戸建て
- 2,850万円
-
松山市吉藤2丁目
-
伊予鉄道環状線木屋町
-
-
-

-
- 中古一戸建て
- 2,650万円
-
松山市堀江町
-
JR予讃線堀江
-
-
-

-
- 中古一戸建て
- 3,150万円
-
松山市別府町
-
アイテムえひめ前 バス停
-
-
-

-
- 中古一戸建て
- 3,300万円
-
松山市中村5丁目
-
伊予鉄道横河原線いよ立花
-


























ご見学可能です。お気軽にお問い合わせ下さいませ。