貝塚市東山7丁目の中古戸建
NEW 03.17掲載情報更新日:2026年03月17日 次回更新予定日:2026年03月31日
- 2,780万円
-
- 借入ご希望金額
万円 - 借入期間
年 - 借入金利
% - 月々のお支払い金額
円
- 借入ご希望金額
※ 月々のお支払例は目安の試算となりますので、実際の金額とは異なる場合がございます。詳しくは店舗までお問合わせください。
- 貝塚市東山7丁目
-
水間鉄道水間線『三ヶ山口』 徒歩7分 (約560m)
貝塚市東山7丁目一戸建て | 物件情報
●2018年築の築浅物件♪ ●床暖房3ヶ所ございます! ●駐車3台可(車種による)
●LDKはゆったり約18帖です♪ ●玄関にとても便利なクロークがございます♪
物件の設備
- 電気
- 上水道
- 公共下水
- 都市ガス
- 浄水器
- 食器洗浄乾燥機
- カウンターキッチン
- システムキッチン
- バス1坪以上
- 追焚機能
- 浴室乾燥機
- トイレ2箇所
- 温水洗浄便座
- 洗髪洗面化粧台
- 床暖房
- 火災警報器/報知機
- LDK18畳以上
- 複層ガラス
- 24時間換気システム
- 床下収納
物件の特徴
- 前道6m以上
- 2階建
物件詳細情報
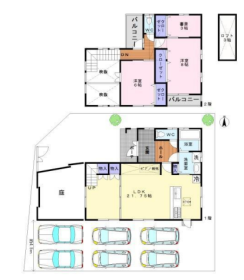
| 価格 | 2,780万円 | 間取り | 3LDK |
|---|---|---|---|
| 物件種別 | 中古一戸建て | ||
| 所在地 | 大阪府貝塚市東山7丁目 | ||
| アクセス |
|
||
| 建物面積 | 公92.94㎡ | 駐車場 | あり |
| 築年月 | 2018年(平成30年)05月築 | ||
| 建物構造 | 木造 ルーフィング茸 2階建 | 工法 | |
| 主要採光 | バルコニー | ||
| 保証・評価 | |||
| リフォーム | |||
| 土地面積 | 公153.01㎡(46.28坪) | 接道 | 西側(公道)幅 約6.0m 間口 約7.50m |
| 私道 | セットバック | ||
| 地目 | 宅地 | 地勢 | 平坦 |
| 権利 | 所有権 |
||
| 都市計画 | 市街化区域 |
用途地域 | 1種住居 |
| 建ぺい/容積率 | 60% / 200% | 土地国土法 | |
| 許可番号 | 建築基準法 | ||
| 法令制限 | |||
| 小学区 | 東山小学校 徒歩4分 (約290m) | 中学区 | 第三中学校 徒歩5分 (約400m) |
| 現況 | 居住中 | 引渡 | 相談 |
| その他費用 | |||
| 備考 | ●2018年築の築浅物件です♪ ●LDKはゆったり約18帖! ●南向きバルコニー ●床暖房3ヶ所ございます。 ●並列駐車3台可(車種による) ●セブンーイレブン 貝塚東山店まで約160m ●東山こども園まで約230m ●ファミリーマート 貝塚東山店まで約500m ●コーナン 貝塚東山店まで約600m ・現況有姿でのお引き渡し(現状有姿売買) |
||
| 物件番号 | 4641743 | 取引態様 | 媒介 |
取扱店舗情報
ハウスドゥ 泉佐野日根野 株式会社ファイン・サポート 店舗詳細ページへ
| 電話番号 | 072-447-6624 |
|---|---|
| 所在地 | 〒598-0021 大阪府泉佐野市日根野4288-1-103 |
| 営業時間 | 10:00~19:00 |
| 定休日 | 水曜日 |
| 宅建免許番号 | 大阪府知事(6)第47889号 |
| アクセス | 店舗への地図はこちら |

来店ご予約
大阪府貝塚市で価格が似ている物件はこちら
- 大阪府
マイページ物件数 - 18,116件
最近見た物件
-
-

-
- 中古一戸建て
- 3,180万円
-
川西市南野坂2丁目
-
阪急電鉄宝塚線川西能勢口
-
大阪府中古一戸建て新着物件
-
-

-
- 中古一戸建て
- 980万円
-
大阪市此花区酉島3丁目
-
阪神電鉄阪神なんば線伝法駅
-
-
-

-
- 中古一戸建て
- 800万円
-
大阪市此花区酉島2丁目
-
阪神電鉄阪神なんば線伝法駅
-
-
-

-
- 中古一戸建て
- 3,880万円
-
大阪市東淀川区豊里2丁目
-
大阪市今里筋線だいどう豊里駅
-
-
-

-
- 中古一戸建て
- 1,950万円
-
大阪市東淀川区菅原2丁目
-
阪急電鉄京都線淡路駅
-
-
-

-
- 中古一戸建て
- 6,500万円
-
大阪市東淀川区大桐4丁目
-
大阪市今里筋線瑞光四丁目駅
-
-
-

-
- 中古一戸建て
- 2,680万円
-
堺市西区浜寺石津町東4丁
-
南海電鉄本線石津川駅
-
-
-

-
- 中古一戸建て
- 4,980万円
-
大阪市東淀川区大桐4丁目
-
大阪市今里筋線だいどう豊里駅
-
- お近くの店舗を探す
-
おすすめ物件
-
-

-
- 中古一戸建て
- 5,100万円
-
大阪市住之江区西加賀屋3丁目
-
大阪市四つ橋線北加賀屋
-
-
-

-
- 中古一戸建て
- 2,180万円
-
摂津市鳥飼新町2丁目
-
大阪モノレール南摂津
-
-
-

-
- 中古一戸建て
- 790万円
-
泉南郡熊取町山の手台3丁目
-
JR阪和線熊取
-
-
-

-
- 中古一戸建て
- 690万円
-
泉佐野市日根野
-
JR阪和線日根野
-
-
-

-
- 中古一戸建て
- 3,980万円
-
高槻市真上町3丁目
-
JR東海道線高槻
-
-
-

-
- 中古一戸建て
- 1,050万円
-
高槻市東五百住町2丁目
-
阪急電鉄京都線富田
-
-
-

-
- 中古一戸建て
- 2,980万円
-
八尾市八尾木3丁目
-
JR関西本線志紀
-
-
-

-
- 中古一戸建て
- 1,490万円
-
東大阪市中小阪1丁目
-
近鉄難波・奈良線河内小阪
-
-
-

-
- 中古一戸建て
- 1,680万円
-
豊中市城山町2丁目
-
阪急電鉄宝塚線曽根
-
-
-

-
- 中古一戸建て
- 2,380万円
-
泉大津市寿町
-
南海電鉄本線松ノ浜
-



