中古戸建 堺市美原区大保
掲載情報更新日:2026年05月04日 次回更新予定日:2026年05月18日
- 3,800万円
-
- 借入ご希望金額
万円 - 借入期間
年 - 借入金利
% - 月々のお支払い金額
円
- 借入ご希望金額
※ 月々のお支払例は目安の試算となりますので、実際の金額とは異なる場合がございます。詳しくは店舗までお問合わせください。
- 堺市美原区大保
-
南海電鉄高野線『萩原天神』 車11分(約3.7km)
南海電鉄高野線『北野田』 車16分(約5.7km)
近鉄南大阪線『河内松原』 車11分(約4.6km)
中古戸建 堺市美原区大保一戸建て | 物件情報
★土地広々・部屋数多数★
★土地広々・部屋数多数★
●オススメポイント●
・駐車約7台可能
・部屋数多数で用途様々
・隣接建物距離2m以上♪
物件の設備
- 電気
- 公営水道
- 公共下水
- 都市ガス
- 給湯
- バス
- 浴室に窓
- トイレ
- 洗面所独立
- 和室
- フローリング
- ハイルーフ駐車可能
物件の特徴
- 整備された歩道
- 緑豊かな住宅地
- スーパーが近い
- 閑静な住宅街
- 通風良好
- 陽当り良好
- 2階建
- 角地
- 平坦地
- 即入居可
物件詳細情報
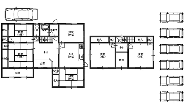
| 価格 | 3,800万円 | 間取り | 6DK |
|---|---|---|---|
| 物件種別 | 中古一戸建て | ||
| 所在地 | 大阪府堺市美原区大保 | ||
| アクセス |
|
||
| 建物面積 | 公135.41㎡ | 駐車場 | あり 普通:7台 |
| 築年月 | 1981年(昭和56年)06月築 | ||
| 建物構造 | 木造 2階建 | 工法 | |
| 主要採光 | バルコニー | ||
| 保証・評価 | |||
| リフォーム | |||
| 土地面積 | 公606.42㎡(183.44坪) | 接道 | |
| 私道 | セットバック | ||
| 地目 | 宅地 | 地勢 | |
| 権利 | 所有権 |
||
| 都市計画 | 用途地域 | ||
| 建ぺい/容積率 | 土地国土法 | ||
| 許可番号 | 建築基準法 | ||
| 法令制限 | |||
| 小学区 | 美原北小学校 徒歩5分 (約400m) | 中学区 | 美原中学校 徒歩20分 (約1600m) |
| 現況 | 空 | 引渡 | 即 |
| その他費用 | |||
| 周辺環境 | 美原北こども園 徒歩5分 (約360m) 堺市立美原中学校 徒歩21分 (約1610m) セブン-イレブン 堺真福寺店 徒歩9分 (約710m) ファミリーマート 美原今井店 徒歩10分 (約790m) ホームセンタームサシ 徒歩11分 (約870m) ビバモール美原南インター店 徒歩13分 (約1000m) 美原区役所 徒歩13分 (約1000m) MEGAドン・キホーテ 松原店 徒歩22分 (約1730m) ららぽーと堺 徒歩19分 (約1460m) |
||
| 備考 | ・美原北こども園まで徒歩5分(約360m) ・堺市立美原中学校まで徒歩21分(約1610m) ・セブン-イレブン 堺真福寺店まで徒歩9分(約710m) ・ファミリーマート 美原今井店まで徒歩10分(約790m) ・ホームセンタームサシまで徒歩11分(約870m) ・ビバモール美原南インター店まで徒歩13分(約1000m) ・美原区役所まで徒歩13分(約1000m) ・MEGAドン・キホーテ 松原店まで徒歩22分(約1730m) ・ららぽーと堺まで徒歩19分(約1460m) |
||
| 物件番号 | 4649910 | 取引態様 | 媒介 |
取扱店舗情報
ハウスドゥ 松原阿保 Tacoo home株式会社 店舗詳細ページへ
| 電話番号 | 072-247-5294 |
|---|---|
| 所在地 | 〒580-0043 大阪府松原市阿保1丁目4-11コーポイン松原102 |
| 営業時間 | 平日:10:00~20:00/土日祝:9:00~20:00 |
| 定休日 | 水曜日 |
| 宅建免許番号 | 大阪府知事(1)第65754号 |
| アクセス | 店舗への地図はこちら |

来店ご予約
- 大阪府
マイページ物件数 - 18,985件
最近見た物件
-
-

-
- 中古一戸建て
- 3,233万円
-
浜松市中央区葵西1丁目
-
「大竹医院」停
-
-
-

-
- 中古一戸建て
- 1,599万円
-
山陽小野田市大字西高泊烏帽子岩前
-
JR山陽本線小野田
-
-
-

-
- 中古一戸建て
- 4,180万円
-
奈良市学園南1丁目
-
近鉄難波・奈良線菖蒲池
-
大阪府中古一戸建て新着物件
-
-

-
- 中古一戸建て
- 450万円
-
守口市梶町3丁目
-
大阪市谷町線大日駅
-
-
-

-
- 中古一戸建て
- 580万円
-
堺市堺区中之町東4丁
-
南海電鉄高野線堺東駅
-
-
-

-
- 中古一戸建て
- 1,830万円
-
堺市堺区中安井町3丁
-
南海電鉄高野線堺東駅
-
-
-

-
- 中古一戸建て
- 2,580万円
-
寝屋川市緑町
-
京阪本線香里園駅
-
-
-

-
- 中古一戸建て
- 1,980万円
-
大阪市都島区大東町1丁目
-
JRおおさか東線城北公園通駅
-
-
-

-
- 中古一戸建て
- 3,780万円
-
大阪市東淀川区下新庄4丁目
-
阪急電鉄千里線下新庄駅
-
-
-

-
- 中古一戸建て
- 2,980万円
-
大阪市西成区天下茶屋2丁目
-
大阪市堺筋線天下茶屋駅
-
- お近くの店舗を探す
-
おすすめ物件
-
-

-
- 中古一戸建て
- 5,100万円
-
大阪市住之江区西加賀屋3丁目
-
大阪市四つ橋線北加賀屋
-
-
-

-
- 中古一戸建て
- 1,350万円
-
泉南市樽井2丁目
-
南海電鉄本線樽井
-
-
-

-
- 中古一戸建て
- 3,750万円
-
八尾市神宮寺4丁目
-
近鉄大阪線恩智
-
-
-

-
- 中古一戸建て
- 1,380万円
-
八尾市高砂町2丁目
-
近鉄難波・奈良線河内花園
-
-
-

-
- 中古一戸建て
- 780万円
-
堺市北区長曽根町
-
大阪市御堂筋線なかもず
-
-
-

-
- 中古一戸建て
- 1,490万円
-
摂津市鳥飼野々3丁目
-
大阪モノレール南摂津
-
-
-

-
- 中古一戸建て
- 2,780万円
-
八尾市西山本町4丁目
-
近鉄大阪線河内山本
-
-
-

-
- 中古一戸建て
- 5,480万円
-
高槻市富田丘町
-
阪急電鉄京都線富田
-
-
-

-
- 中古一戸建て
- 4,690万円
-
大阪市住吉区山之内1丁目
-
南海電鉄高野線我孫子前
-
-
-

-
- 中古一戸建て
- 4,770万円
-
茨木市総持寺1丁目
-
阪急電鉄京都線総持寺
-







担当エージェント:福田 亜翔
【複数件併せてのご案内可能です】気になるあのマンション、エリア内・沿線近くの物件などお客様のご要望に沿った物件を一度にご紹介いたします♪