戸建 門真市三ツ島4丁目
NEW 03.26掲載情報更新日:2026年04月02日 次回更新予定日:2026年04月16日
- 1,980万円
-
- 借入ご希望金額
万円 - 借入期間
年 - 借入金利
% - 月々のお支払い金額
円
- 借入ご希望金額
※ 月々のお支払例は目安の試算となりますので、実際の金額とは異なる場合がございます。詳しくは店舗までお問合わせください。
- 門真市三ツ島4丁目
-
大阪市長堀鶴見緑地線『門真南』 徒歩13分 (約1000m)
戸建 門真市三ツ島4丁目一戸建て | 物件情報
月々5.4万円~ 11帖の広々リビング 門真南駅徒歩13分 即内見可
☆月々5.4万円~
☆最寄駅から京橋駅まで12分
☆リビングフローリング・畳・窓ガラス(1階、2階)・浴室扉交換済み
☆11帖LDK
☆駐車場1台
☆近隣に学校、幼稚園、保育園、公園あり
☆複数スーパーあり
【内覧会開催中】
本日ご案内可能な場合もございます。
複数件併せてご内見も可能♪
他の掲載物件もまとめてご内見頂けます。気になる物件をお教え下さい。
☆0120ー684-571
お気軽にお電話ください♪
☆立地のポイント
【門真南駅】徒歩約13分
物件の設備
- 公営水道
- 公共下水
- プロパンガス
- コンロ三口
- システムキッチン
- オートバス
- 追焚機能
- 浴室乾燥機
- モニタ付インターホン
物件の特徴
- 2階建
- 即入居可
物件詳細情報
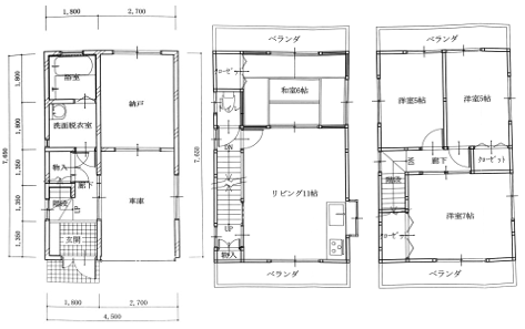
| 価格 | 1,980万円 | 間取り | 4LDK |
|---|---|---|---|
| 物件種別 | 中古一戸建て | ||
| 所在地 | 大阪府門真市三ツ島4丁目 | ||
| アクセス |
|
||
| 建物面積 | 103.26㎡ | 駐車場 | なし |
| 築年月 | 2003年(平成15年)10月築 | ||
| 建物構造 | 木造 2階建 | 工法 | |
| 主要採光 | バルコニー | ||
| 保証・評価 | |||
| リフォーム | |||
| 土地面積 | 58.4㎡(17.66坪) | 接道 | |
| 私道 | セットバック | ||
| 地目 | 宅地 | 地勢 | |
| 権利 | 所有権 |
||
| 都市計画 | 市街化区域 |
用途地域 | 準工業 |
| 建ぺい/容積率 | 70% / 200% | 土地国土法 | |
| 許可番号 | 建築基準法 | ||
| 法令制限 | |||
| 小学区 | 二島小学校 徒歩10分 (約800m) | 中学区 | 第七中学校 徒歩15分 (約1180m) |
| 現況 | 空 | 引渡 | 即 |
| その他費用 | |||
| 周辺環境 | 門真市立二島小学校 徒歩10分 (約800m) 門真市立第七中学校 徒歩15分 (約1180m) まるとく市場 門真南店 徒歩11分 (約810m) 長堀鶴見緑地線 門真南駅 徒歩14分 (約1080m) 食品館アプロプラス門真店 徒歩17分 (約1350m) |
||
| 備考 | ※契約不適合責任免責 プロパンガス |
||
| 物件番号 | 4652133 | 取引態様 | 媒介 |
取扱店舗情報
| 電話番号 | 050-5805-9447 |
|---|---|
| 所在地 | 〒536-0006 大阪府大阪市城東区野江4丁目10-13 クリエイト野江内代1F |
| 営業時間 | 10:00~19:00 |
| 定休日 | なし |
| 宅建免許番号 | 国土交通大臣(1)第10706号 |
| アクセス | 店舗への地図はこちら |

来店ご予約
大阪府門真市で価格が似ている物件はこちら
- 大阪府
マイページ物件数 - 18,069件
大阪府中古一戸建て新着物件
-
-

-
- 中古一戸建て
- 2,580万円
-
泉大津市春日町
-
南海電鉄本線泉大津駅
-
-
-

-
- 中古一戸建て
- 1億1,000万円
-
大阪市天王寺区大道2丁目
-
JR大阪環状線寺田町駅
-
-
-

-
- 中古一戸建て
- 1,880万円
-
和泉市池田下町
-
南海電鉄泉北線和泉中央駅
-
-
-

-
- 中古一戸建て
- 1,780万円
-
大阪市此花区伝法4丁目
-
阪神電鉄阪神なんば線伝法駅
-
-
-

-
- 中古一戸建て
- 1億1,800万円
-
大阪市西区新町4丁目
-
大阪市長堀鶴見緑地線西長堀駅
-
-
-

-
- 中古一戸建て
- 2,100万円
-
大阪市港区港晴4丁目
-
大阪市中央線大阪港駅
-
-
-

-
- 中古一戸建て
- 4,498万円
-
大阪市港区市岡元町2丁目
-
大阪市中央線弁天町駅
-
- お近くの店舗を探す
-
おすすめ物件
-
-

-
- 中古一戸建て
- 498万円
-
堺市中区深井北町
-
JR阪和線上野芝
-
-
-

-
- 中古一戸建て
- 2,398万円
-
泉大津市下条町
-
南海電鉄本線泉大津
-
-
-

-
- 中古一戸建て
- 2,550万円
-
茨木市庄1丁目
-
JR東海道線JR総持寺
-
-
-

-
- 中古一戸建て
- 4,680万円
-
大阪市住吉区遠里小野6丁目
-
南海電鉄高野線我孫子前
-
-
-

-
- 中古一戸建て
- 2,280万円
-
和泉市上町
-
JR阪和線北信太
-
-
-

-
- 中古一戸建て
- 1,600万円
-
八尾市垣内4丁目
-
近鉄信貴線信貴山口
-
-
-

-
- 中古一戸建て
- 2,980万円
-
八尾市栄町2丁目
-
JR関西本線八尾
-
-
-

-
- 中古一戸建て
- 2,580万円
-
大阪市住吉区山之内3丁目
-
JR阪和線杉本町
-
-
-

-
- 中古一戸建て
- 2,850万円
-
摂津市鳥飼新町1丁目
-
大阪モノレール沢良宜
-
-
-

-
- 中古一戸建て
- 2,798万円
-
高槻市東五百住町3丁目
-
阪急電鉄京都線富田
-






































担当エージェント:尾関 親代
最寄り駅から京橋まで12分の好立地!
落ち着いた住環境でファミリー層にも単身者にも◎♪
住宅ローン相談会開催中です!
ぜひお気軽にお問い合わせください!
※契約不適合責任免責
プロパンガス