和歌山市和歌浦東2丁目の中古戸建
掲載情報更新日:2026年05月09日 次回更新予定日:2026年05月23日
- 580万円
-
- 借入ご希望金額
万円 - 借入期間
年 - 借入金利
% - 月々のお支払い金額
円
- 借入ご希望金額
※ 月々のお支払例は目安の試算となりますので、実際の金額とは異なる場合がございます。詳しくは店舗までお問合わせください。
- 和歌山市和歌浦東2丁目
-
JR紀勢本線『紀三井寺』 徒歩23分 (約1800m)
JR紀勢本線『宮前』 徒歩43分 (約3400m)
和歌山市和歌浦東2丁目一戸建て | 物件情報
月々1.6万円~ 即内見可!
※マウスを乗せると画像が切り替わります。
☆月々1.6万円~
☆陽当たり良好!
☆近隣に学校、幼稚園、保育園、公園あり
☆周辺に業務スーパー、コンビニ、郵便局あり 利便性のある立地
【内覧会開催中】
本日ご案内可能な場合もございます。
複数件併せてご内見も可能♪
他の掲載物件もまとめてご内見頂けます。気になる物件をお教え下さい。
☆立地のポイント
【紀三井寺駅】徒歩約23分
【宮前駅】徒歩約43分
物件の特徴
- 2階建
- 即入居可
物件詳細情報
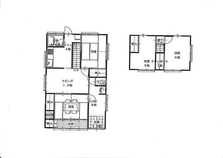
| 価格 | 580万円 | 間取り | 5DK |
|---|---|---|---|
| 物件種別 | 中古一戸建て | ||
| 所在地 | 和歌山県和歌山市和歌浦東2丁目 | ||
| アクセス |
|
||
| 建物面積 | 87.87㎡ | 駐車場 | なし |
| 築年月 | 1969年(昭和44年)05月築 | ||
| 建物構造 | 木造 2階建 | 工法 | |
| 主要採光 | バルコニー | ||
| 保証・評価 | |||
| リフォーム | |||
| 土地面積 | 120.39㎡(36.41坪) | 接道 | |
| 私道 | セットバック | ||
| 地目 | 宅地 | 地勢 | 平坦 |
| 権利 | 所有権 |
||
| 都市計画 | 市街化区域 |
用途地域 | 1種中高 |
| 建ぺい/容積率 | 60% / 200% | 土地国土法 | |
| 許可番号 | 建築基準法 | ||
| 法令制限 | |||
| 小学区 | 和歌浦小学校 徒歩13分 (約1000m) | 中学区 | 明和中学校 徒歩15分 (約1200m) |
| 現況 | 空 | 引渡 | 即 |
| その他費用 | |||
| 備考 | |||
| 物件番号 | 4656781 | 取引態様 | 媒介 |
取扱店舗情報
| 電話番号 | 050-5805-9447 |
|---|---|
| 所在地 | 〒536-0006 大阪府大阪市城東区野江4丁目10-13 クリエイト野江内代1F |
| 営業時間 | 10:00~19:00 |
| 定休日 | なし |
| 宅建免許番号 | 国土交通大臣(1)第10706号 |
| アクセス | 店舗への地図はこちら |

来店ご予約
和歌山県和歌山市で価格が似ている物件はこちら
![]()
![]()
-
- 中古一戸建て 2023.12.08
-
-
- 600万円
-
和歌山市有家
-
和歌山電鐵貴志川線「日前宮駅」まで徒歩14分
- 4DK
-
-
- 中古一戸建て 2023.12.08
-
-
- 520万円
-
和歌山市有本
-
JR阪和線「紀伊中ノ島駅」まで徒歩11分
- 5DK
-
-
- 中古一戸建て 2023.12.08
-
-
- 570万円
-
和歌山市粟
-
南海電気鉄道加太線「紀ノ川駅」まで徒歩20分
- 3DK
-
-
- 中古一戸建て 2023.12.11
-
-
- 490万円
-
和歌山市田尻
-
JR紀勢本線「宮前駅」まで徒歩12分
- 5DK
-
-
- 中古一戸建て 2024.05.03
-
-
- 580万円
-
和歌山市禰宜
-
JR和歌山線「千旦駅」まで徒歩21分
- 3LDK+S
-
-
- 中古一戸建て 2024.09.13
-
-
- 550万円
-
和歌山市和歌浦東1丁目
-
JR紀勢本線「紀三井寺駅」まで徒歩30分
- 5DK
-
-
- 中古一戸建て 2024.10.25
-
-
- 530万円
-
和歌山市中之島
-
JR紀勢本線「紀和駅」まで徒歩6分
- 4K
-
-
- 中古一戸建て 2024.12.15
-
-
- 480万円
-
和歌山市塩屋5丁目
-
JR紀勢本線「紀三井寺駅」まで徒歩27分
- 3DK
-
-
- 中古一戸建て 2024.12.16
-
-
- 500万円
-
和歌山市田尻
-
和歌山電鐵貴志川線「竈山駅」まで徒歩13分
- 5DK
-
-
- 中古一戸建て 2024.12.16
-
-
- 490万円
-
和歌山市六十谷
-
JR阪和線「六十谷駅」まで徒歩8分
- 4DK
-
-
- 中古一戸建て 2025.02.23
-
-
- 570万円
-
和歌山市六十谷
-
JR阪和線「六十谷駅」まで徒歩18分
- 3LDK
-
-
- 中古一戸建て 2025.03.02
-
-
- 600万円
-
和歌山市西浜
-
南海電鉄和歌山港線「和歌山港駅」まで徒歩41分
- 5LDK
-
-
- 中古一戸建て 2025.03.20
-
-
- 600万円
-
和歌山市金谷
-
JR和歌山線「布施屋駅」まで徒歩20分
- 5DK
-
-
- 中古一戸建て 2025.03.23
-
-
- 500万円
-
和歌山市川辺
-
JR和歌山線「布施屋駅」まで徒歩27分
- 8DK+S
-
-
- 事業用・収益 2025.03.26
-
-
- 490万円
-
和歌山市木ノ本
-
南海電気鉄道加太線「八幡前駅」まで徒歩17分
- 4LDK
-
-
- 中古一戸建て 2025.04.04
-
-
- 500万円
-
和歌山市吉礼
-
和歌山電鐵貴志川線「吉礼駅」まで徒歩6分
- 8DK
-
-
- 中古一戸建て 2025.04.20
-
-
- 650万円
-
和歌山市加太
-
南海電気鉄道加太線「加太駅」まで徒歩5分
- 4DK
-
-
- 中古一戸建て 2025.04.21
-
-
- 600万円
-
和歌山市西庄
-
南海電気鉄道加太線「二里ヶ浜駅」まで徒歩4分
- 5DK
-
-
- 中古一戸建て 2025.04.21
-
-
- 550万円
-
和歌山市島橋北ノ丁
-
南海電気鉄道加太線「東松江駅」まで徒歩10分
- 5DK
-
-
- 中古一戸建て 2025.05.16
-
-
- 580万円
-
和歌山市大谷
-
南海電鉄本線「紀ノ川駅」まで徒歩27分
- 4DK
-
-
- 中古一戸建て 2025.05.16
-
-
- 480万円
-
和歌山市坂田
-
和歌山電鐵貴志川線「竈山駅」まで徒歩12分
- 4LDK
-
-
- 中古一戸建て 2025.06.23
-
-
- 650万円
-
和歌山市西田井
-
JR阪和線「紀伊駅」まで徒歩25分
- 3LDK
-
-
- 中古一戸建て 2025.07.02
-
-
- 480万円
-
和歌山市鳴神
-
和歌山電鐵貴志川線「日前宮駅」まで徒歩19分
- 4DK+S
-
-
- 中古一戸建て 2025.07.04
-
-
- 630万円
-
和歌山市田尻
-
JR紀勢本線「宮前駅」まで徒歩26分
- 4DK
-
-
- 中古一戸建て 2025.07.16
-
-
- 590万円
-
和歌山市木ノ本
-
南海電気鉄道加太線「八幡前駅」まで徒歩24分
- 4DK
-
-
- 中古一戸建て 2025.08.07
-
-
- 480万円
-
和歌山市和歌浦東3丁目
-
JR紀勢本線「紀三井寺駅」まで徒歩22分
- 3DK
-
-
- 中古一戸建て 2025.10.02
-
-
- 600万円
-
和歌山市直川
-
JR阪和線「六十谷駅」まで徒歩19分
- 5DK+S
-
-
- 中古一戸建て 2025.10.06
-
-
- 500万円
-
和歌山市毛見
-
JR紀勢本線「黒江駅」まで徒歩29分
- 7DK
-
-
- 中古一戸建て 2025.10.23
-
-
- 560万円
-
和歌山市園部
-
JR阪和線「六十谷駅」まで徒歩21分
- 4LDK
-
-
- 中古一戸建て 2025.10.24
-
-
- 680万円
-
和歌山市野崎
-
南海電気鉄道加太線「東松江駅」まで徒歩20分
- 3LDK
-
-
- 中古一戸建て 2025.10.30
-
-
- 650万円
-
和歌山市狐島
-
南海電気鉄道加太線「東松江駅」まで徒歩18分
- 6DK
-
-
- 中古一戸建て 2025.11.02
-
-
- 580万円
-
和歌山市西浜
-
南海電鉄和歌山港線「和歌山港駅」まで徒歩40分
- 5LDK
-
-
- 中古一戸建て 2025.11.02
-
-
- 530万円
-
和歌山市中之島
-
JR紀勢本線「紀和駅」まで徒歩6分
- 4K
-
-
- 中古一戸建て 2025.11.20
-
-
- 580万円
-
和歌山市大谷
-
南海電気鉄道加太線「紀ノ川駅」まで徒歩25分
- 4DK
-
-
- 中古一戸建て 2025.11.23
-
-
- 600万円
-
和歌山市直川
-
JR阪和線「六十谷駅」まで徒歩19分
- 5DK+S
-
-
- 中古一戸建て 2025.12.07
-
-
- 570万円
-
和歌山市六十谷
-
JR阪和線「六十谷駅」まで徒歩18分
- 3LDK
-
-
- 中古一戸建て 2025.12.14
-
-
- 480万円
-
和歌山市松島
-
JR和歌山線「田井ノ瀬駅」まで徒歩24分
- 4LDK+S
-
-
- 中古一戸建て 2025.12.15
-
-
- 600万円
-
和歌山市大谷
-
南海電気鉄道加太線「紀ノ川駅」まで徒歩27分
- 4LDK
-
-
- 中古一戸建て 2025.12.18
-
-
- 490万円
-
和歌山市木ノ本
-
南海電気鉄道加太線「八幡前駅」まで徒歩18分
- 4LDK
-
-
- 中古一戸建て 2026.01.04
-
-
- 550万円
-
和歌山市和歌浦東1丁目
-
JR紀勢本線「紀三井寺駅」まで徒歩30分
- 5DK
-
-
- 中古一戸建て 2026.01.22
-
-
- 500万円
-
和歌山市田尻
-
和歌山電鐵貴志川線「竈山駅」まで徒歩13分
- 5DK
-
-
- 中古一戸建て 2026.01.26
-
-
- 530万円
-
和歌山市土入
-
南海電気鉄道加太線「東松江駅」まで徒歩10分
- 4DK+S
-
-
- 中古一戸建て 2026.02.01
-
-
- 498万円
-
和歌山市松江東4丁目
-
南海電気鉄道加太線「東松江駅」まで徒歩4分
- 3DK
-
-
- 中古一戸建て 2026.02.11
-
-
- 600万円
-
和歌山市粟
-
南海電鉄本線「紀ノ川駅」まで徒歩22分
- 7DK
-
-
- 中古一戸建て 2026.03.01
-
-
- 620万円
-
和歌山市北島
-
南海電気鉄道加太線「東松江駅」まで徒歩27分
- 3LDK
-
-
- 中古一戸建て 2026.03.11
-
-
- 600万円
-
和歌山市有家
-
和歌山電鐵貴志川線「田中口駅」まで徒歩13分
- 4DK
-
-
- 中古一戸建て 2026.04.12
-
-
- 500万円
-
和歌山市加太
-
南海電気鉄道加太線「加太駅」まで徒歩3分
- 7DK
-
-
-
中古一戸建て
2026.05.13
-
-
- 580万円
-
和歌山市野崎
-
南海電気鉄道加太線「東松江駅」まで徒歩20分
- 5DK
-
-
中古一戸建て
2026.05.13
- 和歌山県
マイページ物件数 - 694件
最近見た物件
-
-

-
- 中古マンション
- 3,398万円
-
多摩市諏訪4丁目
-
京王相模原線京王永山
-
-
-

-
- 中古マンション
- 1億2,990万円
-
大阪市阿倍野区阿倍野筋1丁目
-
大阪市谷町線阿倍野
-
-
-

-
- 中古一戸建て
- 390万円
-
赤磐市下仁保
-
西山団地東バス停
-
和歌山県中古一戸建て新着物件
-
-

-
- 中古一戸建て
- 690万円
-
和歌山市園部
-
JR阪和線六十谷駅
-
-
-

-
- 中古一戸建て
- 580万円
-
和歌山市野崎
-
南海電気鉄道加太線東松江駅
-
-
-

-
- 中古一戸建て
- 180万円
-
有田郡有田川町大字歓喜寺
-
JR紀勢本線藤並駅
-
-
-

-
- 中古一戸建て
- 380万円
-
新宮市仲之町2丁目
-
JR紀勢本線新宮駅
-
-
-

-
- 中古一戸建て
- 300万円
-
東牟婁郡那智勝浦町大字北浜3丁目
-
JR紀勢本線紀伊勝浦駅
-
-
-

-
- 中古一戸建て
- 200万円
-
海南市名高
-
JR紀勢本線海南駅
-
-
-

-
- 中古一戸建て
- 2,280万円
-
和歌山市冬野
-
JR紀勢本線黒江駅
-
- お近くの店舗を探す
-



















担当エージェント:尾関 親代
落ち着いた住環境でファミリー層にも単身者にも◎♪
住宅ローン相談会開催中です!
ぜひお気軽にお問い合わせください!