和泉市東阪本町 中古戸建
掲載情報更新日:2026年05月09日 次回更新予定日:2026年05月23日
- 1,950万円
-
- 借入ご希望金額
万円 - 借入期間
年 - 借入金利
% - 月々のお支払い金額
円
- 借入ご希望金額
※ 月々のお支払例は目安の試算となりますので、実際の金額とは異なる場合がございます。詳しくは店舗までお問合わせください。
- 和泉市東阪本町
-
南海電鉄泉北線『光明池』 徒歩32分 (約2560m)
南海電鉄泉北線『和泉中央』 徒歩36分 (約2880m)
和泉市東阪本町 中古戸建一戸建て | 物件情報
車2台OKの角地。暮らしも仕事も広がる5LDK+事務所有。事務所、サロン等、住居として活用できます
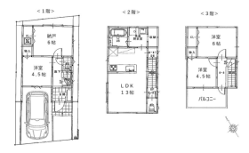
南側約8m・西側約4.9mの公道に面した開放感ある角地に建つ、ゆとりの5LDK住宅です。LDKは約20帖と広く、家族が集まりやすい快適な空間を確保。和室約8帖や洋室5~8帖など、用途に合わせて使い分けられる居室が揃い、ライフスタイルの変化にも柔軟に対応できます。さらに事務所スペースも備えており、在宅ワークや自宅での小規模事業など、多様な働き方をサポートします。
土地面積は約134.50㎡、建物は延べ129.18㎡とボリュームがあり、敷地内には車2台を駐車できるスペースを確保。南向きのため日当たりが良く、風通しも良好です。周辺は「和泉市立芦部小学校区」「和泉市立郷荘中学校区」に属し、子育て世帯にも安心の住環境が整っています。都市ガス引込済み、上下水道完備、オール電化と設備面も充実し、日々の暮らしを快適に支えます。
現況居住中のため内覧には事前予約が必要ですが、住まいと仕事の両立を考える方や、広さと利便性を求める方に特におすすめの物件です。
物件の設備
- 電気
- オール電化
- 上水道
- 公営水道
- 下水道
- 公共下水
- 側溝
- 給湯
- 食器乾燥機
- 食器洗浄乾燥機
- IHクッキングヒータ
- グリル
- オープンキッチン
- バス
- オートバス
- 追焚機能
- 浴室乾燥機
- 浴室に窓
- トイレ2箇所
- 室内洗濯機置場
- 洗髪洗面化粧台
- 洗面所独立
- モニタ付インターホン
- LDK20畳以上
- 和室
- 和室8畳以上
- 出窓
- フローリング
- クローゼット3箇所
- 床下収納
- 全居室収納
物件の特徴
- 前道6m以上
- 南側道路面す
- 閑静な住宅街
- 通風良好
- 陽当り良好
- 2階建
- 角地
物件詳細情報
| 価格 | 1,950万円 | 間取り | 5LDK |
|---|---|---|---|
| 物件種別 | 中古一戸建て | ||
| 所在地 | 大阪府和泉市東阪本町 | ||
| アクセス |
|
||
| 建物面積 | 公129.18㎡ | 駐車場 | あり 普通:1台 軽:1台 |
| 築年月 | 2002年(平成14年)01月築 | ||
| 建物構造 | 木造 2階建 | 工法 | |
| 主要採光 | バルコニー | ||
| 保証・評価 | |||
| リフォーム | |||
| 土地面積 |
公134.5㎡(40.68坪) 持分:1/1 |
接道 | 南側(公道)幅 約8.0m 間口 約15.14m 西側(公道)幅 約4.9m 間口 約5.05m |
| 私道 | セットバック | 無 | |
| 地目 | 宅地 | 地勢 | 平坦 |
| 権利 | 所有権 |
||
| 都市計画 | 市街化区域 |
用途地域 | 準工業 |
| 建ぺい/容積率 | 60% / 200% | 土地国土法 | 届出不要 |
| 許可番号 | 建築基準法 | ||
| 法令制限 | 景観法・宅地造成工事規制区域 | ||
| 小学区 | 中学区 | ||
| 現況 | 居住中 | 引渡 | 相談 |
| その他費用 | |||
| 備考 | |||
| 物件番号 | 4657506 | 取引態様 | 専任媒介 |
取扱店舗情報
ハウスドゥ 岸和田春木駅前 株式会社むすび不動産 店舗詳細ページへ
| 電話番号 | 072-489-4088 |
|---|---|
| 所在地 | 〒596-0006 大阪府岸和田市春木若松町13番27号1A |
| 営業時間 | 9:00~19:00 |
| 定休日 | 水曜日、年末年始 |
| 宅建免許番号 | 大阪府知事(1)第64937号 |
| アクセス | 店舗への地図はこちら |

来店ご予約
大阪府和泉市で価格が似ている物件はこちら
- 大阪府
マイページ物件数 - 18,999件
最近見た物件
大阪府中古一戸建て新着物件
-
-

-
- 中古一戸建て
- 50万円
-
守口市馬場町2丁目
-
京阪本線滝井駅
-
-
-

-
- 中古一戸建て
- 1,290万円
-
八尾市安中町7丁目
-
JR関西本線八尾駅
-
-
-

-
- 中古一戸建て
- 1,200万円
-
泉南郡熊取町東和苑
-
JR阪和線熊取駅
-
-
-

-
- 中古一戸建て
- 2,780万円
-
東大阪市俊徳町5丁目
-
JRおおさか東線JR長瀬駅
-
-
-

-
- 中古一戸建て
- 1,380万円
-
八尾市高砂町2丁目
-
近鉄大阪線近鉄八尾駅
-
-
-

-
- 中古一戸建て
- 8,980万円
-
大阪市天王寺区上本町7丁目
-
近鉄大阪線大阪上本町駅
-
-
-

-
- 中古一戸建て
- 3,499万円
-
三島郡島本町東大寺2丁目
-
阪急電鉄京都線水無瀬駅
-
- お近くの店舗を探す
-
おすすめ物件
-
-

-
- 中古一戸建て
- 680万円
-
泉南郡熊取町小垣内1丁目
-
JR阪和線熊取
-
-
-

-
- 中古一戸建て
- 780万円
-
堺市北区長曽根町
-
大阪市御堂筋線なかもず
-
-
-

-
- 中古一戸建て
- 2,580万円
-
大阪市住吉区山之内3丁目
-
JR阪和線杉本町
-
-
-

-
- 中古一戸建て
- 5,480万円
-
高槻市富田丘町
-
阪急電鉄京都線富田
-
-
-

-
- 中古一戸建て
- 2,320万円
-
高槻市赤大路町
-
JR東海道線摂津富田
-
-
-

-
- 中古一戸建て
- 1,350万円
-
高石市西取石7丁目
-
JR阪和線北信太
-
-
-

-
- 中古一戸建て
- 1,980万円
-
門真市四宮5丁目
-
京阪本線萱島
-
-
-

-
- 中古一戸建て
- 490万円
-
大阪市住之江区御崎6丁目
-
大阪市四つ橋線住之江公園
-
-
-

-
- 中古一戸建て
- 1,780万円
-
寝屋川市国松町
-
京阪本線香里園
-
-
-

-
- 中古一戸建て
- 3,680万円
-
高槻市芝生町2丁目
-
JR東海道線摂津富田
-







担当エージェント:高野 勝太
南西角地の5LDK住宅に事務所スペースを備えた多用途物件です。車2台駐車可能で日当たりも良好。暮らしと仕事を両立できる住まいをぜひご覧ください。