戸建 大阪市城東区東中浜6丁目
掲載情報更新日:2026年05月09日 次回更新予定日:2026年05月23日
- 2,480万円
-
- 借入ご希望金額
万円 - 借入期間
年 - 借入金利
% - 月々のお支払い金額
円
- 借入ご希望金額
※ 月々のお支払例は目安の試算となりますので、実際の金額とは異なる場合がございます。詳しくは店舗までお問合わせください。
- 大阪市城東区東中浜6丁目
-
大阪市中央線『緑橋』 徒歩8分 (約640m)
大阪市今里筋線『緑橋』 徒歩8分 (約640m)
JRおおさか東線『鴫野』 徒歩18分 (約1440m)
戸建 大阪市城東区東中浜6丁目一戸建て | 物件情報
月々7万円~ 緑橋駅徒歩8分! 3沿線3駅利用! 即内見可!
☆月々7万円~
☆最寄駅から京橋駅まで8分
☆3沿線3駅利用可
☆陽当たり良好!
☆駐車場1台&ハイルーフ車可!
☆近隣に学校、幼稚園、保育園、公園あり
☆複数スーパーあり
【内覧会開催中】
本日ご案内可能な場合もございます。
複数件併せてご内見も可能♪
他の掲載物件もまとめてご内見頂けます。気になる物件をお教え下さい。
☆0120ー684-571
お気軽にお電話ください♪
☆立地のポイント
【地下鉄中央線・今里筋線/緑橋駅】徒歩約8分
【JRおおさか東線/鴫野駅】徒歩約18分
物件の設備
- 電気
- 公営水道
- 公共下水
- 都市ガス
- 給湯
物件の特徴
- 3階建以上
- 即入居可
物件詳細情報
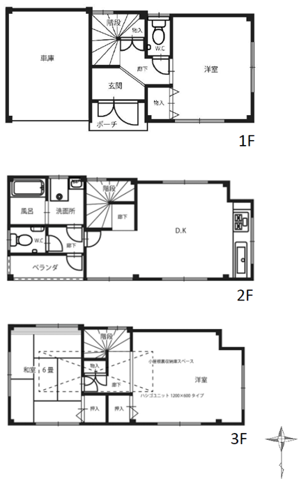
| 価格 | 2,480万円 | 間取り | 3LDK |
|---|---|---|---|
| 物件種別 | 中古一戸建て | ||
| 所在地 | 大阪府大阪市城東区東中浜6丁目 | ||
| アクセス |
|
||
| 建物面積 | 77.67㎡ | 駐車場 | なし |
| 築年月 | 1997年(平成9年)02月築 | ||
| 建物構造 | 鉄骨 3階建 | 工法 | |
| 主要採光 | バルコニー | ||
| 保証・評価 | |||
| リフォーム | |||
| 土地面積 | 公40.04㎡(12.11坪) | 接道 | |
| 私道 | セットバック | 無 | |
| 地目 | 宅地 | 地勢 | 平坦 |
| 権利 | 所有権 |
||
| 都市計画 | 市街化区域 |
用途地域 | 1種住居 |
| 建ぺい/容積率 | 80% / 200% | 土地国土法 | |
| 許可番号 | 建築基準法 | ||
| 法令制限 | |||
| 小学区 | 東中浜小学校 徒歩4分 (約290m) | 中学区 | 城東中学校 徒歩9分 (約690m) |
| 現況 | 空 | 引渡 | 即 |
| その他費用 | |||
| 周辺環境 | ゆめみ保育園 徒歩3分 (約220m) 大阪市立東中浜小学校 徒歩4分 (約290m) おおさかパルコープ東中浜店 徒歩6分 (約430m) フレンドタウン深江橋 徒歩7分 (約510m) 大阪市立城東中学校 徒歩9分 (約690m) ライフ深江橋店 徒歩12分 (約900m) 大阪市立城東幼稚園 徒歩13分 (約1030m) ゆりかご保育園 徒歩13分 (約970m) 生鮮&業務スーパーボトルワールドOK深江橋店 徒歩15分 (約1130m) |
||
| 備考 | |||
| 物件番号 | 4658069 | 取引態様 | 媒介 |
取扱店舗情報
| 電話番号 | 050-5805-9447 |
|---|---|
| 所在地 | 〒536-0006 大阪府大阪市城東区野江4丁目10-13 クリエイト野江内代1F |
| 営業時間 | 10:00~19:00 |
| 定休日 | なし |
| 宅建免許番号 | 国土交通大臣(1)第10706号 |
| アクセス | 店舗への地図はこちら |

来店ご予約
大阪府大阪市城東区で価格が似ている物件はこちら
- 大阪府
マイページ物件数 - 19,120件
最近見た物件
-
-

-
- 新築一戸建て
- 4,380万円
-
札幌市東区伏古八条3丁目
-
札幌市東豊線元町
-
-
-

-
- 中古一戸建て
- 210万円
-
岩見沢市北本町東2丁目
-
JR函館本線岩見沢
-
-
-

-
- 新築一戸建て
- 2,880万円
-
南城市佐敷字佐敷
-
佐敷バス停
-
大阪府中古一戸建て新着物件
-
-

-
- 中古一戸建て
- 2,080万円
-
八尾市弓削町南3丁目
-
JR関西本線志紀駅
-
-
-

-
- 中古一戸建て
- 580万円
-
泉南市新家
-
JR阪和線新家駅
-
-
-

-
- 中古一戸建て
- 1,650万円
-
阪南市緑ヶ丘2丁目
-
JR阪和線和泉鳥取駅
-
-
-

-
- 中古一戸建て
- 1,500万円
-
東大阪市若江東町2丁目
-
近鉄難波・奈良線若江岩田駅
-
-
-

-
- 中古一戸建て
- 4,000万円
-
大阪市住之江区西加賀屋3丁目
-
大阪市四つ橋線北加賀屋駅
-
-
-

-
- 中古一戸建て
- 8,800万円
-
吹田市千里山西5丁目
-
阪急電鉄千里線千里山駅
-
-
-

-
- 中古一戸建て
- 2,490万円
-
藤井寺市国府2丁目
-
近鉄南大阪線土師ノ里駅
-
- お近くの店舗を探す
-
おすすめ物件
-
-

-
- 中古一戸建て
- 3,299万円
-
高槻市津之江町3丁目
-
阪急電鉄京都線富田
-
-
-

-
- 中古一戸建て
- 2,250万円
-
岸和田市下野町1丁目
-
南海電鉄本線春木
-
-
-

-
- 中古一戸建て
- 3,680万円
-
大阪市住吉区我孫子西1丁目
-
JR阪和線我孫子町
-
-
-

-
- 中古一戸建て
- 3,780万円
-
高槻市宮田町1丁目
-
JR東海道線摂津富田
-
-
-

-
- 中古一戸建て
- 1,980万円
-
高石市千代田2丁目
-
南海電鉄高師ノ浜線高師浜
-
-
-

-
- 中古一戸建て
- 3,750万円
-
八尾市神宮寺4丁目
-
近鉄大阪線恩智
-
-
-

-
- 中古一戸建て
- 1,450万円
-
高石市取石1丁目
-
JR阪和線富木
-
-
-

-
- 中古一戸建て
- 1,780万円
-
堺市中区伏尾
-
南海電鉄泉北線泉ケ丘
-
-
-

-
- 中古一戸建て
- 730万円
-
泉南郡熊取町山の手台3丁目
-
JR阪和線熊取
-
-
-

-
- 中古一戸建て
- 1,490万円
-
摂津市鳥飼野々3丁目
-
大阪モノレール南摂津
-







担当エージェント:尾関 親代
京橋まで8分の好立地!
通勤通学に便利な3沿線3駅利用可!
落ち着いた住環境でファミリー層にも単身者にも◎♪
住宅ローン相談会開催中です!
ぜひお気軽にお問い合わせください!