守口市佐太中町4丁目中古戸建
NEW 03.30掲載情報更新日:2026年04月09日 次回更新予定日:2026年04月23日
- 1,800万円
-
- 借入ご希望金額
万円 - 借入期間
年 - 借入金利
% - 月々のお支払い金額
円
- 借入ご希望金額
※ 月々のお支払例は目安の試算となりますので、実際の金額とは異なる場合がございます。詳しくは店舗までお問合わせください。
- 守口市佐太中町4丁目
-
大阪市谷町線『大日』 徒歩20分 (約1600m)
大阪モノレール『大日』 徒歩20分 (約1600m)
京阪本線『古川橋』 徒歩34分 (約2720m)
守口市佐太中町4丁目中古戸建一戸建て | 物件情報
■北東角地 ■大阪メトロ谷町線、大阪モノレール【大日駅】が利用可能♪
*---*---*---*〇ここに注目〇*---*---*--*
〇物件特徴
・イオンモール大日までお車で約5分の好立地
スーパー、ドラッグストアや専門店、映画館等が充実した商業施設!
日用品のお買い物や休日のお出かけに便利です♪
穏やかな雰囲気が漂う閑静な住宅街
お問い合わせはハウスドゥ城北公園まで♪
*---*---*---**---*----*---**---*---*---*
物件の設備
- バス
- トイレ
- 洗面所独立
- 和室
- 全居室収納
物件の特徴
- 2沿線利用可
- 緑豊かな住宅地
- スーパーが近い
- 閑静な住宅街
- 市街地が近い
- 都市近郊
- 2階建
- 角地
- 平坦地
- 即入居可
物件詳細情報
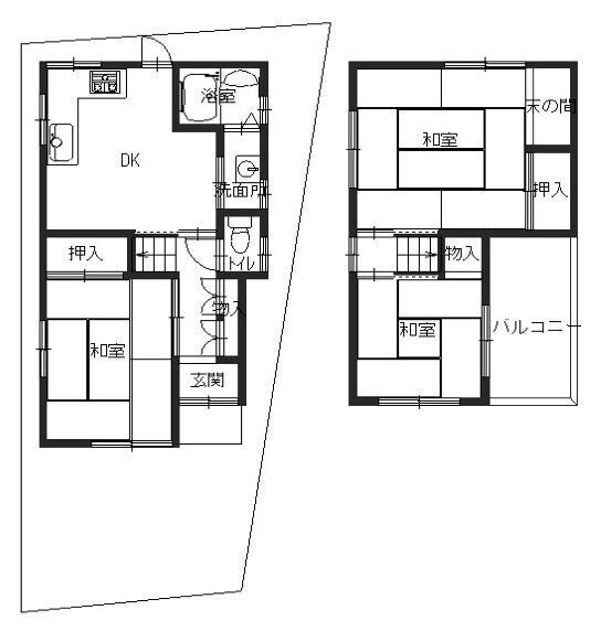
| 価格 | 1,800万円 | 間取り | 3DK |
|---|---|---|---|
| 物件種別 | 中古一戸建て | ||
| 所在地 | 大阪府守口市佐太中町4丁目 | ||
| アクセス |
|
||
| 建物面積 | 57.55㎡ | 駐車場 | なし |
| 築年月 | 1978年(昭和53年)02月築 | ||
| 建物構造 | 木造 2階建 | 工法 | |
| 主要採光 | 東向 | バルコニー | |
| 保証・評価 | |||
| リフォーム | |||
| 土地面積 | 64.54㎡(19.52坪) | 接道 | 東側(私道)幅 約4.7m 間口 約4.40m |
| 私道 | セットバック | 無 | |
| 地目 | 宅地 | 地勢 | 平坦 |
| 権利 | 所有権 |
||
| 都市計画 | 市街化区域 |
用途地域 | 1種住居 |
| 建ぺい/容積率 | 60% / 188% | 土地国土法 | |
| 許可番号 | 建築基準法 | ||
| 法令制限 | 準防火地域 | ||
| 小学区 | 佐太小学校 徒歩5分 (約350m) | 中学区 | 庭窪中学校 徒歩5分 (約350m) |
| 現況 | 空 | 引渡 | 即 |
| その他費用 | |||
| 周辺環境 | 守口市立佐太小学校 徒歩7分 (約560m) 守口市立庭窪中学校 徒歩5分 (約330m) ローソン 守口佐太中町店 徒歩3分 (約240m) 阪急オアシス 守口店 徒歩7分 (約530m) キリン堂 守口佐太中町店 徒歩7分 (約560m) なかむら眼科 徒歩9分 (約690m) 守口佐太郵便局 徒歩6分 (約460m) 関西みらい銀行 金田支店 徒歩10分 (約750m) ポッポ保育園 徒歩3分 (約240m) 佐太中町4丁目児童公園 徒歩5分 (約350m) |
||
| 備考 | |||
| 物件番号 | 4658683 | 取引態様 | 媒介 |
取扱店舗情報
| 電話番号 | 06-6167-8666 |
|---|---|
| 所在地 | 〒535-0005 大阪府大阪市旭区赤川2丁目2-4 PHOERME城北公園1階 |
| 営業時間 | 9:00~18:00 |
| 定休日 | |
| 宅建免許番号 | 大阪府知事(1)第64057号 |
| アクセス | 店舗への地図はこちら |

来店ご予約
大阪府守口市で価格が似ている物件はこちら
- 大阪府
マイページ物件数 - 18,224件
最近見た物件
大阪府中古一戸建て新着物件
-
-

-
- 中古一戸建て
- 2,490万円
-
大阪市旭区今市1丁目
-
大阪市谷町線太子橋今市駅
-
-
-

-
- 中古一戸建て
- 580万円
-
堺市中区陶器北
-
南海電鉄高野線北野田駅
-
-
-

-
- 中古一戸建て
- 3,390万円
-
豊中市庄内西町2丁目
-
阪急電鉄宝塚線庄内駅
-
-
-

-
- 中古一戸建て
- 2,550万円
-
岸和田市土生町6丁目
-
JR阪和線東岸和田駅
-
-
-

-
- 中古一戸建て
- 2,478万円
-
堺市中区八田北町
-
南海電鉄泉北線深井駅
-
-
-

-
- 中古一戸建て
- 4,899万円
-
箕面市牧落1丁目
-
阪急電鉄箕面線牧落駅
-
-
-

-
- 中古一戸建て
- 2,180万円
-
大阪市旭区清水1丁目
-
京阪本線千林駅
-
- お近くの店舗を探す
-
おすすめ物件
-
-

-
- 中古一戸建て
- 1,980万円
-
東大阪市稲葉1丁目
-
近鉄難波・奈良線河内花園
-
-
-

-
- 中古一戸建て
- 3,180万円
-
高槻市淀の原町
-
阪急電鉄京都線上牧
-
-
-

-
- 中古一戸建て
- 2,680万円
-
八尾市高美町3丁目
-
JR関西本線八尾
-
-
-

-
- 中古一戸建て
- 1,350万円
-
泉南市樽井2丁目
-
南海電鉄本線樽井
-
-
-

-
- 中古一戸建て
- 2,850万円
-
摂津市鳥飼新町1丁目
-
大阪モノレール沢良宜
-
-
-

-
- 中古一戸建て
- 5,100万円
-
大阪市住之江区西加賀屋3丁目
-
大阪市四つ橋線北加賀屋
-
-
-

-
- 中古一戸建て
- 2,480万円
-
泉大津市板原町1丁目
-
JR阪和線和泉府中
-
-
-

-
- 中古一戸建て
- 3,680万円
-
大阪市東住吉区東田辺1丁目
-
大阪市谷町線駒川中野
-
-
-

-
- 中古一戸建て
- 2,498万円
-
神戸市灘区千旦通1丁目
-
阪神電鉄本線大石
-
-
-

-
- 中古一戸建て
- 2,980万円
-
八尾市栄町2丁目
-
JR関西本線八尾
-






担当エージェント:舛谷 尚丸
弊社は不動産売買専門の仲介会社とし、全国700店舗展開中のハウスドゥ城北公園でございます。
大阪市、守口市、門真市、東大阪市、八尾市を中心に物件のご提案をさせていただいております。
購入・売却に関する様々なご相談承っております。
弊社は他社様が掲載されている物件でもご紹介可能です。お気軽にご相談くださいませ。