高崎市箕郷町矢原の中古戸建
掲載情報更新日:2026年05月10日 次回更新予定日:2026年05月24日
- 3,800万円
-
- 借入ご希望金額
万円 - 借入期間
年 - 借入金利
% - 月々のお支払い金額
円
- 借入ご希望金額
※ 月々のお支払例は目安の試算となりますので、実際の金額とは異なる場合がございます。詳しくは店舗までお問合わせください。
- 高崎市箕郷町矢原
-
JR上越線『井野』 徒歩117分 (約9300m)
高崎市箕郷町矢原一戸建て | 物件情報
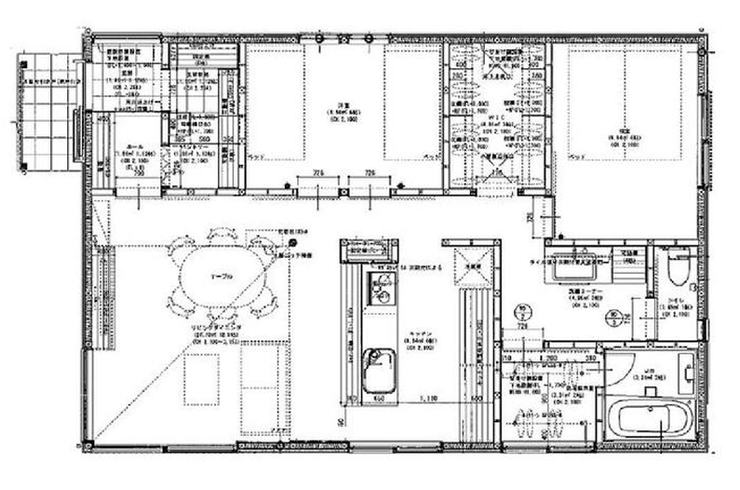
ワンフロアで心地よく暮らす、木のぬくもりに包まれる平屋
20帖のゆとりあるLDKに、開放感あふれるアイランドキッチン。料理をしながら家族やゲストとの会話が弾み、自然と人が集まる空間です。室内は木のぬくもりと自然素材を感じられる落ち着いた雰囲気で、日々の暮らしにやさしい安らぎをプラス。平屋ならではのスムーズな動線で、家事や移動もストレスフリーです。ウォークインクローゼットや土間収納も備え、アウトドア用品や日用品もすっきり収納可能。シンプルで豊かな暮らしを叶える一邸です。
◎新築・中古問わず幅広くご紹介可能です!他社様の掲載物件もご案内できることが多いため、「これ気になる!」と思ったら、ハウスドゥ高崎倉賀野までお気軽にご相談ください(*^^*)
物件の設備
- 電気
- オール電化
- 上水道
- 浄化槽
- 側溝
- 食器洗浄乾燥機
- IHクッキングヒータ
- カウンターキッチン
- システムキッチン
- アイランドキッチン
- バス1坪以上
- 追焚機能
- タンクレストイレ
- 洗髪洗面化粧台
- モニタ付インターホン
- LDK15畳以上
- LDK18畳以上
- LDK20畳以上
- 3面採光
- ウォークインクローゼット
- シューズインクローク
物件の特徴
- 前道6m以上
- 閑静な住宅街
- 通風良好
- 陽当り良好
- 前面棟無
- 整形地
物件詳細情報
| 価格 | 3,800万円 | 間取り | 2LDK |
|---|---|---|---|
| 物件種別 | 中古一戸建て | ||
| 所在地 | 群馬県高崎市箕郷町矢原 | ||
| アクセス |
|
||
| 建物面積 | 公79.49㎡ | 駐車場 | あり |
| 築年月 | 2024年(令和6年)02月築 | ||
| 建物構造 | 木造 1階建 | 工法 | |
| 主要採光 | 南向 | バルコニー | |
| 保証・評価 | |||
| リフォーム | |||
| 土地面積 | 公240.28㎡(72.68坪) | 接道 | 北側(公道)幅 約10.9m |
| 私道 | セットバック | ||
| 地目 | 宅地 | 地勢 | |
| 権利 | 所有権 |
||
| 都市計画 | 非線引区域 |
用途地域 | 指定無 |
| 建ぺい/容積率 | 70% / 200% | 土地国土法 | |
| 許可番号 | 建築基準法 | ||
| 法令制限 | |||
| 小学区 | 箕郷東小学校 徒歩3分 (約245m) | 中学区 | 箕郷中学校 徒歩9分 (約648m) |
| 現況 | 空 | 引渡 | 相談 |
| その他費用 | |||
| 備考 | ■周辺環境■ フレッセイ箕郷店 距離:1,388m とりせん箕郷店 距離:2,091m ローソン高崎箕郷町西明屋店 距離:875m 高崎市立箕郷第一保育園 距離:1,059m 二之沢会二之沢病院 距離:1,688m みねはら公園 距離:600m |
||
| 物件番号 | 4659197 | 取引態様 | 媒介 |
取扱店舗情報
ハウスドゥ 高崎倉賀野 株式会社未来ワーク 店舗詳細ページへ
| 電話番号 | 027-386-4447 |
|---|---|
| 所在地 | 〒370-1201 群馬県高崎市倉賀野町4573-1 |
| 営業時間 | 10:00~18:00 |
| 定休日 | 水曜日 |
| 宅建免許番号 | 群馬県知事(1)第7819号 |
| アクセス | 店舗への地図はこちら |

来店ご予約
群馬県高崎市で価格が似ている物件はこちら
- 群馬県
マイページ物件数 - 2,743件
最近見た物件
-
-

-
- 新築一戸建て
- 3,590万円
-
熊本市東区沼山津4丁目
-
熊本市健軍線健軍町
-
-
-

-
- 中古マンション
- 2,490万円
-
倉敷市幸町
-
JR山陽本線倉敷
-
-
-

-
- 新築一戸建て
- 3,398万円
-
大津市雄琴5丁目
-
JR湖西線おごと温泉
-
群馬県中古一戸建て新着物件
-
-

-
- 中古一戸建て
- 1,150万円
-
太田市藪塚町
-
東武桐生線藪塚駅
-
-
-

-
- 中古一戸建て
- 180万円
-
桐生市境野町3丁目
-
東武桐生線新桐生駅
-
-
-

-
- 中古一戸建て
- 48万円
-
みどり市大間々町大間々
-
東武桐生線赤城駅
-
-
-

-
- 中古一戸建て
- 2,480万円
-
高崎市三ツ寺町
-
JR上越線井野駅
-
-
-

-
- 中古一戸建て
- 790万円
-
藤岡市藤岡
-
JR八高線群馬藤岡駅
-
-
-

-
- 中古一戸建て
- 98万円
-
みどり市大間々町大間々
-
上毛電気鉄道上毛線赤城駅
-
-
-

-
- 中古一戸建て
- 1,699万円
-
高崎市新町
-
JR高崎線新町駅
-
- お近くの店舗を探す
-
おすすめ物件
-
-

-
- 中古一戸建て
- 1,400万円
-
邑楽郡邑楽町大字篠塚
-
東武小泉線東小泉
-
-
-

-
- 中古一戸建て
- 1,200万円
-
高崎市金古町
-
JR上越線群馬総社
-
-
-

-
- 中古一戸建て
- 1,980万円
-
高崎市棟高町
-
湘南新宿ライン高海井野
-
-
-

-
- 中古一戸建て
- 2,500万円
-
伊勢崎市境新栄
-
東武伊勢崎・大師線境町
-
-
-

-
- 中古一戸建て
- 800万円
-
館林市羽附町
-
東武伊勢崎・大師線館林
-
-
-

-
- 中古一戸建て
- 870万円
-
邑楽郡明和町中谷
-
東武伊勢崎・大師線川俣
-
-
-

-
- 中古一戸建て
- 1,980万円
-
邑楽郡大泉町東小泉2丁目
-
東武小泉線東小泉
-
-
-

-
- 中古一戸建て
- 1,749万円
-
高崎市中里町
-
JR上越線群馬総社
-
-
-

-
- 中古一戸建て
- 780万円
-
高崎市剣崎町
-
JR信越本線群馬八幡
-
-
-

-
- 中古一戸建て
- 3,880万円
-
安中市秋間みのりが丘
-
JR北陸新幹線安中榛名
-















担当エージェント:松原幸之介
ハウスドゥ高崎倉賀野では、皆様との出会いを大切にしております。マイホームというビックイベント全力でサポートさせていただきます♪