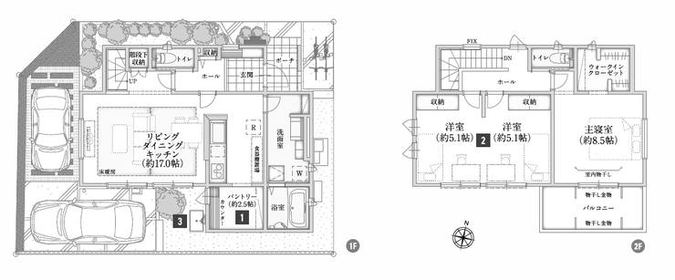
【菫平】天井高さ2.6mの開放的な間取り
NEW 04.06掲載情報更新日:2026年04月06日 次回更新予定日:2026年04月20日
- 5,090万円
-
- 借入ご希望金額
万円 - 借入期間
年 - 借入金利
% - 月々のお支払い金額
円
- 借入ご希望金額
※ 月々のお支払例は目安の試算となりますので、実際の金額とは異なる場合がございます。詳しくは店舗までお問合わせください。
- 平塚市菫平
-
JR東海道本線『平塚』 徒歩21分 (約1680m)
JR東海道本線『平塚』 バス乗車8分 すみれ平局前 停 徒歩4分 (約320m)
【菫平】天井高さ2.6mの開放的な間取り一戸建て | 物件情報
【菫平】天井高さ2.6mの開放的な間取り
■総区画数33区画の大型分譲地
■メンテナンスコスト削減、外壁総タイル
■太陽光発電システム搭載
■1階天井高さ2.6mの開放的な間取り
■リビング床暖房付
■カースペース2台分駐車可能(車種による)
※ゴミ集積所の共有持ち分有
物件の設備
- 電気
- オール電化
- 公営水道
- 公共下水
- 食器洗浄乾燥機
- カウンターキッチン
- システムキッチン
- オートバス
- 追焚機能
- 浴室暖房
- 浴室乾燥機
- 浴室に窓
- トイレ2箇所
- 温水洗浄便座
- 室内洗濯機置場
- 洗髪洗面化粧台
- 洗面所独立
- 室内物干機
- 床暖房
- 照明器具
- 太陽光発電システム
- 非接触型ICカードキー
- モニタ付インターホン
- LDK15畳以上
- 天井高2.5m以上
- 複層ガラス
- 全居室複層ガラス
- 24時間換気システム
- ウォークインクローゼット
- シューズボックス
物件の特徴
- 24工法
- 小学校徒歩10分以内
- 前道6m以上
- 2階建
物件詳細情報
| 価格 | 5,090万円 | 間取り | 2LDK |
|---|---|---|---|
| 物件種別 | 中古一戸建て | ||
| 所在地 | 神奈川県平塚市菫平 33号棟 | ||
| アクセス |
|
||
| 建物面積 | 公99.37㎡ | 駐車場 | あり 普通:1台 軽:1台 |
| 築年月 | 2024年(令和6年)05月築 | ||
| 建物構造 | 木造 2階建 | 工法 | 2×4工法 |
| 主要採光 | バルコニー | ||
| 保証・評価 | |||
| リフォーム | |||
| 土地面積 | 公113.05㎡(34.19坪) | 接道 | 北側(公道)幅 約6.0m |
| 私道 | セットバック | ||
| 地目 | 宅地 | 地勢 | |
| 権利 | 所有権 |
||
| 都市計画 | 市街化区域 |
用途地域 | 1種中高 |
| 建ぺい/容積率 | 60% / 200% | 土地国土法 | |
| 許可番号 | 建築基準法 | ||
| 法令制限 | 景観法・準防火地域 | ||
| 小学区 | 花水小学校 徒歩5分 (約350m) | 中学区 | 浜岳中学校 徒歩6分 (約450m) |
| 現況 | 完工済 | 引渡 | 相談 |
| その他費用 | |||
| 周辺環境 | 花水小学校 徒歩5分 (約350m) 浜岳中学校 徒歩6分 (約450m) 平塚学園花水幼稚園 徒歩5分 (約370m) セブンイレブン 虹ケ浜店 徒歩4分 (約250m) しまむらストアー すみれ平店 徒歩4分 (約280m) マツモトキヨシ 平塚花水台店 徒歩5分 (約400m) スーパービバホーム湘南平塚店 徒歩16分 (約1250m) |
||
| 備考 | ■総区画数33区画の大型分譲地 ■メンテナンスコスト削減、外壁総タイル ■太陽光発電システム搭載 ■1階天井高さ2.6mの開放的な間取り ■リビング床暖房付 ■カースペース2台分駐車可能(車種による) ※ゴミ集積所の共有持ち分有 |
||
| 物件番号 | 4667713 | 取引態様 | 媒介 |
取扱店舗情報
| 電話番号 | 0463-24-8885 |
|---|---|
| 所在地 | 〒254-0073 神奈川県平塚市西八幡2丁目9-1 |
| 営業時間 | 9:00~18:00 |
| 定休日 | 第1・3火曜日、水曜日、年末年始 |
| 宅建免許番号 | 神奈川県知事(3)第28824号 |
| アクセス | 店舗への地図はこちら |

来店ご予約
神奈川県平塚市で価格が似ている物件はこちら
- 神奈川県
マイページ物件数 - 2,979件
神奈川県中古一戸建て新着物件
-
-

-
- 中古一戸建て
- 2,080万円
-
横須賀市平作7丁目
-
JR横須賀線衣笠駅
-
-
-

-
- 中古一戸建て
- 3,097万円
-
厚木市戸室4丁目
-
小田急小田原線本厚木駅
-
-
-

-
- 中古一戸建て
- 3,780万円
-
横須賀市ハイランド4丁目
-
京急久里浜線京急久里浜駅
-
-
-

-
- 中古一戸建て
- 5,480万円
-
川崎市幸区鹿島田3丁目
-
JR南武線平間駅
-
-
-

-
- 収益
- 1,020万円
-
横須賀市長坂3丁目
-
京急本線横須賀中央駅
-
-
-

-
- 中古一戸建て
- 1,290万円
-
横須賀市衣笠町
-
JR横須賀線衣笠駅
-
-
-

-
- 中古一戸建て
- 2,990万円
-
横須賀市長坂3丁目
-
JR横須賀線衣笠駅
-
- お近くの店舗を探す
-
おすすめ物件
-
-

-
- 中古一戸建て
- 7,200万円
-
横浜市中区滝之上
-
JR根岸線山手
-
-
-

-
- 中古一戸建て
- 980万円
-
平塚市片岡
-
JR東海道本線平塚
-
-
-

-
- 中古一戸建て
- 1億3,800万円
-
横浜市中区豆口台
-
JR京浜東北・根岸線山手
-
-
-

-
- 中古一戸建て
- 2,990万円
-
平塚市ふじみ野2丁目
-
JR東海道本線平塚
-
-
-

-
- 中古一戸建て
- 3,180万円
-
平塚市富士見町
-
JR東海道本線平塚
-
-
-

-
- 中古一戸建て
- 3,480万円
-
横浜市南区永田東1丁目
-
京急本線井土ヶ谷
-
-
-

-
- 中古一戸建て
- 4,480万円
-
川崎市川崎区渡田2丁目
-
JR東海道本線川崎
-




ハウスドゥ 湘南平塚(株式会社プレジャー)
[営業時間]9:00~18:00
[定休日]第1週・第3週の火曜日、及び毎週水曜日
JR東海道線「平塚」駅よりバス乗車6分
「八幡」停留所 目の前です。
●店舗前に5台分の駐車スペースがございます。
●平塚駅など近隣地への送迎いたします。
●キッズスペース、授乳室を完備しております。
お子様連れのお客様もご安心してご来店ください。
●すぐにご来店が難しいお客様もお気軽にご相談ください。